南郡涵云轩(2025南郡涵云轩)首页网站-杭州西溪湿地旁合院南郡涵云轩2025年最新楼盘详情-南郡涵云轩户型-配套

搜狐焦点随州站

2025-06-13 09:40:39

购房群

买房如何避坑,加入购房群,看看他们怎么说

立即进群

杭州西湖西溪湿地旁南郡涵云轩🔻售楼热线:☎ 400 832 8823「售楼处」☎〢网上售楼中心〢🔻

➖➖➖➖➖➖➖➖➖➖➖➖➖➖➖➖➖➖➖➖➖➖➖➖➖➖➖➖➖

🔻◆置业顾问:☎ 156 0653 2539「微信同步」☎〢🔻专业一对一热情服务〢◆看房需要提前电话预约,避免可能案场无人接待!◆提前预约可享内部优惠〢匠心钜制-恭迎您的品鉴〢

提供全天候直通售楼处服务,以及置业顾问1对1服务,方便客户预约看房。

⑉⑉⑉ıllı⑉🔻南郡涵云轩售楼处(周一至周日 9:00--18:00)一对一咨询🔻看房需要提前电话预约,避免可能案场无人接待!提前预约可享内部优惠〢匠心钜制-恭迎您的品鉴⑉ıllı⑉⑉

涵雲軒独栋院落,地上三层+地下二层,建筑面积约340-580㎡,作为新一代“超改善”产品,重新定义了杭州主城改善标准。

建筑面积约350㎡「见山」户型 (赠送面积:地下室约165㎡ 、庭院约91㎡ 、露台约42㎡ 、连廊约20㎡)杭州西湖西溪湿地旁南郡涵云轩🔻售楼热线:☎ 400 832 8823「售楼处」☎〢网上售楼中心〢🔻

“空中花园”,盛放生活诗意

二层阳台、三层露台,是室内空间向自然的诗意延伸。独拥一座露台,私密的空间无人打扰,那些需要仪式感的日子,在露台展开,情趣倍增……杭州西湖西溪湿地旁南郡涵云轩🔻售楼热线:☎ 400 832 8823「售楼处」☎〢网上售楼中心〢🔻

宋代美学融合现代工艺

建筑由UT建筑设计王旭、GTS蓝颂设计宋淑华联袂操刀,以白墙灰瓦、坡屋顶、镂空花窗等传统元素为基底,创新运用铝镁锰金属屋顶、全幕玻璃立面及“美国白金石”花岗岩,打造兼具古典韵味与现代国际感的建筑语言。

低密院落布局

容积率仅1.2,24栋L型围合式院落塑造270°环景视野,地上3层+地下2层设计,主力户型340-580㎡,赠送地下室(最高约165㎡)、庭院(约91㎡)、露台等空间,实现私密性与景观视野的极致平衡。杭州西湖西溪湿地旁南郡涵云轩🔻售楼热线:☎ 400 832 8823「售楼处」☎〢网上售楼中心〢🔻

现房交付与品质保障

毛坯现房交付,通燃气,即买即住,规避期房风险。南都物业服务集团提供24小时高端物业,涵盖安全巡逻、园林维护及定制化社区活动。杭州西湖西溪湿地旁南郡涵云轩🔻售楼热线:☎ 400 832 8823「售楼处」☎〢网上售楼中心〢🔻

立体交通网络

地铁3号线东岳站步行可达,紫之隧道、留石快速路30分钟直达钱江新城、西湖景区,无缝衔接城市核心资源。

稀缺资产属性

西溪湿地旁同类产品(如江南里、元福里)挂牌价超15-20万元/㎡,项目作为市心唯一纯低密现房商墅,兼具自住品质与资产升值潜力。

园林造境与人文场景

景观设计以“一园两街四巷24院”为框架,融入曲径通幽、亭台水景等江南园林元素,打造“涵雲十景”(如林泉、竹霭、云烟),重现宋代文人雅集场景。

圈层与社群价值

毗邻中国美院、阿里系企业总部,业主可参与艺术展览、茶道雅集等活动,构建高阶文化社交圈。

南郡涵雲轩以“双西生态+新中式美学+现房品质”为核心竞争力,通过稀缺地段、大师设计、低密院落及文化场景,重新定义杭州顶豪生活范式。

对于追求自然共生、资产保值与文化品位的客群,该项目是兼具居住价值与收藏意义的城市藏品。

涵雲軒就像一位气质非凡的绅士,很容易在城西一众建筑中脱颖而出。创新运用铝镁锰金属作为屋顶材料,勾勒出连绵起伏的波浪感,成为西溪上空一道靓丽的风景线;

立面则采用世界花岗岩中的高端品类“美国白金石”,搭配铝板的甄贵气质,天然石材与当代工艺结合,赋予建筑以高定恒贵质感;

又辅以全幕玻璃,占据了立面的大部分空间,经过恰到好处的切割布局后,虚实相生,立面的国际感被很好诠释,散发出一种传统与当代相生的时尚气息,这是建筑给予业主高于功能之外的身份标签价值。

涵雲軒由南郡房产开发,系浙江南都产业发展集团旗下全资子公司。公司厚载 28 年深厚文化积淀,秉承匠心卓著、臻于美好的开发精神,以林语别墅、良渚文化村、西湖高尔夫等口碑作品为引领,力求为社会迭代营造品质更优、服务更好的都会生活空间。

项目物业服务为——LJ CLUB 丽郡荟,是中国首家 A 股上市服务企业“南都物业”TOP 级品牌,全方位、高品质服务业主,不断对需求进行挖掘,整合对应的优质跨界资源,真正做到24小时细致服务。

独立庭院:每家每户都享独立花园庭院,建面约60-300㎡,打造专属自己的静谧空间,拥一方小院,享一方净土。

地处西溪板块核心,北面就是11.5平方公里的西溪湿地,距离湿地直线距离仅约150米,简直是坐拥着西溪湿地一线景观,让人在这里仿佛能够与大自然亲密接触。艺术,是涵云轩的生活底色。我们希望在自然与建筑之间找到平衡点,用现代时尚的韵味,回应中式意境的美学。

涵云轩的建筑在尽可能范围内,吸收江南院落的坡屋顶、白墙灰瓦、山水景墙等中式风骨,放眼望去,见阳光洒下、韵律辉映,将周围青山绿水映衬出更浓郁的自然之色,绿与白,深浅相照,自然与建筑,完美交融。

风雅生活是一种伟大思想的渗透,其宗旨是予事物以诗意。让人们在繁忙的都市时光里,能换一个角度,静下来,去享受时光的柔软、涵养生活的激情。他们的社交是时尚的聚落,他们的独处是艺术的具象。

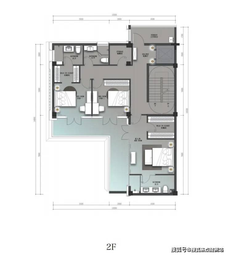
涵雲軒独栋院落,地上三层+地下二层,建筑面积约340-580㎡,作为新一代“超改善”产品,重新定义了杭州主城改善标准。建筑面积约350㎡「见山」户型 (赠送面积:地下室约165㎡ 、庭院约91㎡ 、露台约42㎡ 、连廊约20㎡),

地上3层

仪式感+开阔感+功能性

△建面约350㎡「见山」户型图

一层生活区围绕着客厅和餐厨功能打造。直面(建筑面积约91㎡)花园的整扇落地折叠玻璃窗,可自由打开,自在进出,达到与自然零阻隔。夏日乘凉喝茶,秋日围炉夜话,其乐融融。

二层中有三室三卫,兼书房、接待、储物等多重功能于一体,空间利用率非常高。

其中两室均设计有独立衣帽间,尺度阔绰不言而喻。并配备有电梯,大大节省了通往每一层的时间成本。

三层端厅式大空间,只打造尊贵一室,利用近乎一整层的面积来满足供主人休憩+工作结合的心灵栖息之地,南向270°大采光面+超广角视野,赏一年四季风景如画。独立步入式衣帽间及带浴缸大卫生间的点缀,更加彰显仪式感、开阔感、功能性、舒适性、私密性强。

赠送建筑面积约42㎡的宽阔露台,似“空中花园”,建立室内和自然的交互性,夜观星河,遥望西溪万顷绿波,远眺西湖苍翠群峰,享畅意人生。

负一层整体空间的功能围绕着“放松”二字。影音室、棋牌区、红酒柜、健身区、瑜伽区,完美呈现出主人休闲娱乐场景。还可利用一层的采光井做出室外茶室的空间,让社交出现了一丝自然的场景。茶室与绿植景观融为一体,让生活充满自然的味道。

地下2层

私密感+专属娱乐空间

△建面约350㎡「见山」户型图

地下一层的“宴宾层”,雪茄吧、茶室、棋牌室……现极致奢华与舒适的生活体验;地下二层则是纯粹的“私享层”,主人可以定制自己的私属领域,享受专属于自己的时光。入户玄关、多功能影音室……更多可能性完全随主人兴趣自行定义。

△意向图

涵雲軒建面约350㎡「见山」户型呈现出来的,品质之高端、交标之精奢、细节之丰富,是在努力用更切合的方式给业主提供更舒适的生活方式。南郡涵雲軒西溪24席,建面约340-580㎡新江南商业院落,总价2000万起!现已开启贵宾品鉴!

杭州西湖西溪湿地旁南郡涵云轩🔻售楼热线:☎ 400 832 8823「售楼处」☎〢网上售楼中心〢🔻

➖➖➖➖➖➖➖➖➖➖➖➖➖➖➖➖➖➖➖➖➖➖➖➖➖➖➖➖➖

🔻◆置业顾问:☎ 156 0653 2539「微信同步」☎〢🔻专业一对一热情服务〢◆看房需要提前电话预约,避免可能案场无人接待!◆提前预约可享内部优惠〢匠心钜制-恭迎您的品鉴〢

提供全天候直通售楼处服务,以及置业顾问1对1服务,方便客户预约看房。

⑉⑉⑉ıllı⑉🔻南郡涵云轩售楼处(周一至周日 9:00--18:00)一对一咨询🔻看房需要提前电话预约,避免可能案场无人接待!提前预约可享内部优惠〢匠心钜制-恭迎您的品鉴⑉ıllı⑉⑉

全部

相关资讯

报名成功
稍后会有专业的置业顾问联系您
返回楼盘

频道导航

返回首页

看房小程序

APP下载

电话拨通后,请您手动拨打分机号

确定拨打电话

电话号码:

分机号:(可能需要拨分机号)