滨杭滨纷城 ✅杭州 滨杭滨纷城
售楼热线:☎ 400 832 8823「售楼处」☎〢🔻已认证〢◆🔻
临平东湖新城双地铁口性价比住宅 滨杭滨纷城 ✅
置业顾问:☎ 156 0653 2539「微信同步」☎〢🔻一对一热情服务〢◆🔻

围绕临平北站在内的一体化设计区域,
临平计划打造北枢纽核心板块。
缤纷城这个TOD项目,
刚好坐标临平东湖新城核心区,
西侧及南侧紧邻规划临平北站综合体,
未来将与北站协同,
作为东湖新城重要配套空间。
东湖新城核心板块最新规划曝光
售楼热线:☎ 400 832 8823「售楼处」☎〢🔻已认证〢◆🔻

sports公园、商业综合体、学校
滨杭缤纷城横跨
地铁9号线兴元路站(在建)、
康信路站(在建) 两大站点,
毗邻临平主轴荷禹路、宁桥大道,
地理位置优越。
滨杭缤纷城项目规划了
居住、公园、商业、办公、学校 5大业态,
计划打造 公园、商业、邻里中心、
双幼儿园、九年一贯制学校 等复合内容。
售楼热线:☎ 400 832 8823「售楼处」☎〢🔻已认证〢◆🔻

其中,学校为杭州二中白马湖临平东湖学校,
隶属于杭州二中白马湖教育集团
是一所九年一贯制学校,
今年9月,该项目已 正式开工建设。
学校占地面积约66亩,
售楼热线:☎ 400 832 8823「售楼处」☎〢🔻已认证〢◆🔻

总建筑面积为6.1万平方米,
规划36班,小学24班,中学12班,
计划将于2026年完工。
同时, 商业业态规划除商业+办公之外,
售楼热线:☎ 400 832 8823「售楼处」☎〢🔻已认证〢◆🔻

还有2000㎡邻里中心。
串联盖上住宅与盖下空间,
方便居民购物、生活。
效果示意图,过程稿,非最终交付标准
售楼热线:☎ 400 832 8823「售楼处」☎〢🔻已认证〢◆🔻

在滨杭缤纷城小区内部,
还将打造 7万㎡绿地广场,
内布三大节点,打造流量广场。
滨杭滨纷城营销中心实景图

在滨杭缤纷城的架空层,
则规划了 滨纷SPORTS公园系统。
对标年轻人生活方式,
计划打造 篮球场、羽毛球场、轮滑广场、
街式滑板场、儿童综合运动场等15个运动场地,
为附近居民提供社交、生活和娱乐场所。

此外,架空层还将链接 户外空间,
融合 草坪空间 ,定制社区客厅,
预留阅读、共享厨房功能;
同时计划衔接 儿童乐园,
设计多样立体的游玩系统。

滨杭缤纷城内还有5个主要地标,

不止,在楼盘的南面甚至还放下了一个约10万方的商业综合体。
对于一个超级大盘而言,商业是激活整个社区的活力引擎,但像滨杭滨纷城这样,直接在楼盘里面造一个大体量商业综合体的TOD,整个杭州都屈指可数。

滨江这次就是要给年轻人造一座城,让年轻人在这座城里,可以一次性实现所有的生活憧憬。当然,想要实现跟年轻人的双向奔赴,只有这些还不够,所以滨江还把对于缤纷生活的讲究,嵌入了住宅园区的每一寸空间——主入口做了跟奢华酒店一般的张扬门头,石材景墙和落客区,搭配入口的水景庭院里起伏的山景、潺潺跌水和婀娜松树,它们一起交织出了回家的仪式感,哪怕跟三四万的楼盘相比,都不落下风。

【户型赏析】

=

=


=

主题架空层 |对话全龄的丰盛场域
◎友好空间:架空层链接户外空间,在内外交融中创造美好的“楼下目的地”;
◎滨纷客厅:架空层融合草坪空间,定制社区客厅,预留阅读、共享厨房功能;
◎伙伴乐园:架空层衔接儿童乐园,设计多样立体的游玩系统;
◎运动岛屿:与品牌运动合作,打破传统健身场域的枯燥与单一,引导运动中的社交。


项目提供建面约89-98-108-112方3/4房的多重选择。
从小夫妻首置婚房,到三口之家改善,甚至二孩家庭,都全方位覆盖。
特别是 建面约89方三房 ,市场上很少有吧?

朝南约9.5米大面宽+二房间朝南+约3.4米南向阳台+双飘窗设计,太适合小两口和小太阳家庭了。
建面约89方户型已经退出市场多年,如今在滨杭滨纷城再现,叠加「1字头」的卖价,总价100多万,就能安家杭州,这样的机遇错过可惜。
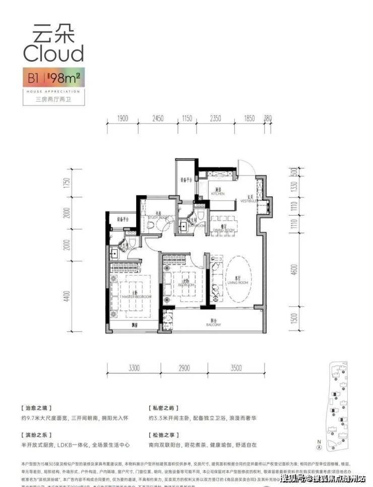
于项目,功能性只是基础,建面约98方稀缺边套三房两卫,社交力UP。

带独立玄关收纳,南边套房主卧带走入式衣帽间+独立卫浴+飘窗,南向约6.4米面宽,带阳台,U型厨房带大开窗,餐客厅一体带约5.8米超长飘窗……该户型更具有生命力。
想要尺度感的,可以选建面约108方大三房,居然做到了四开间朝南

同时该户型三卧朝南,休闲、家务双阳台设计,约12.8米大面宽和一线贯通的餐客厅,还有大开窗可视厨房设计!以及衣柜、餐厅收纳空间等,给予生活更多从容。
还有建面约108方东边套户型,做到了同级少有的4房2卫巨幕客厅设计。

而滨杭滨纷城精装单价「1字头」就比杭州新房均价少了近2万,断崖式下跌!且主力户型建面约89-108方,套均总价200万都不到,直接比平均线少了一半多!你敢信?!更别说,一条9号线直抵的钱江新城,早已遍地10万+,而滨杭滨纷城仅仅是其1/5的价格,不可思议!


98平方米也是三房两厅两卫格局,分为中间套和边套两种。边套户型自带5.8米大横厅,一体化餐客厅设计,带来更加通透舒畅的居住感。

112平方米的中间套,是三房两厅两卫设计,四开间朝南,面宽约12.8米。边套则是四房两厅两卫,约5.9米巨幕边厅,LDK一体化设计,预留可变空间。

滨杭滨纷城 ✅杭州 滨杭滨纷城
售楼热线:☎ 400 832 8823「售楼处」☎〢🔻已认证〢◆🔻
临平东湖新城双地铁口性价比住宅 滨杭滨纷城 ✅
置业顾问:☎ 156 0653 2539「微信同步」☎〢🔻一对一热情服务〢◆🔻