南郡涵雲轩-杭州(南郡涵雲轩)楼盘详情-杭州房天下

搜狐焦点宿迁站

2025-07-07 10:06:14

购房群

买房如何避坑,加入购房群,看看他们怎么说

立即进群

杭州西湖区南郡涵雲轩售楼处电话☎📞📱:400-000-0460转8888

我们以客户为中心,用心服务,只为让您拥有一个满意的家。

温馨提示:来访需提前两小时预约,以免直接参观无销售接待!

挥一挥衣袖,总有一片你带不走的云彩,无论身在何方,它依旧未改。如果它叫江南,则西溪更甚。西溪,从来都是一个心灵扎根的地方,永远安静影响着世界的地方。这是心中的原乡,走过世界,更懂江南的西溪、西溪的江南。

地处西溪板块核心,北面就是11.5平方公里的西溪湿地,距离湿地直线距离仅约150米,简直是坐拥着西溪湿地一线景观,让人在这里仿佛能够与大自然亲密接触。艺术,是涵云轩的生活底色。我们希望在自然与建筑之间找到平衡点,用现代时尚的韵味,回应中式意境的美学。

涵云轩的建筑在尽可能范围内,吸收江南院落的坡屋顶、白墙灰瓦、山水景墙等中式风骨,放眼望去,见阳光洒下、韵律辉映,将周围青山绿水映衬出更浓郁的自然之色,绿与白,深浅相照,自然与建筑,完美交融。

涵云轩实景图

涵雲軒,左拥西溪、右抱西湖,静揽双西;双西自古为杭州名片,将院落置于此间者,非王公大族难以介入。放眼杭州,能兼得如此生态、人文与繁华的,没有哪个区域能与之匹敌。

在设计方面,涵云轩更是精益求精。项目特邀UT设计创始人王旭、蓝颂设计/绿城环境景观设计师宋淑华、GOA乐空设计总经理姚路执笔,他们集合了大师的手笔,打造了“一园一苑两街四巷24院”的禅意雅境。这种设计理念,将传统与现代相结合,让人在这里感受到了极致的美好。

南郡涵雲軒24席风雅院落,了却一个时代的江南向往,算得上西溪时间长河中一次真正意义上的文化重拾,随着新上地块资源锐减,这样的机遇将越发难得。走进涵雲軒,方知繁华与山水之间,仅仅是一道“静逸”的距离,从街区到林下、从前庭到门厅、经巷弄至庭院,曲蜿洄游之间,完成渐进式回归礼仪,心境由此复归平寂。

涵云轩坐落在杭州西湖区,中式风格别墅项目,面积达340-530㎡,融合了新江南院落的设计理念。项目背靠着西溪湿地,面朝着西湖山水,仿佛是一个御景园林,将自然之美尽收眼底。这样一个地处杭城封面级双景区的地方,近在咫尺,让人不禁心动

风雅生活是一种伟大思想的渗透,其宗旨是予事物以诗意。让人们在繁忙的都市时光里,能换一个角度,静下来,去享受时光的柔软、涵养生活的激情。他们的社交是时尚的聚落,他们的独处是艺术的具象。

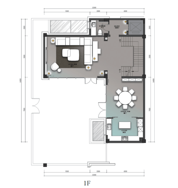
涵雲軒独栋院落,地上三层+地下二层,建筑面积约340-580㎡,作为新一代“超改善”产品,重新定义了杭州主城改善标准。建筑面积约350㎡「见山」户型 (赠送面积:地下室约165㎡ 、庭院约91㎡ 、露台约42㎡ 、连廊约20㎡)无论是从空间的尺度感,还是功能性,相较市面上的大平层户型,都做了一个升维。有天有地,阔绰尊贵感立显。

地上3层

仪式感+开阔感+功能性

△建面约350㎡「见山」户型图

一层生活区围绕着客厅和餐厨功能打造。直面(建筑面积约91㎡)花园的整扇落地折叠玻璃窗,可自由打开,自在进出,达到与自然零阻隔。夏日乘凉喝茶,秋日围炉夜话,其乐融融。

△意向图

二层中有三室三卫,兼书房、接待、储物等多重功能于一体,空间利用率非常高。

其中两室均设计有独立衣帽间,尺度阔绰不言而喻。并配备有电梯,大大节省了通往每一层的时间成本。

△意向图

三层端厅式大空间,只打造尊贵一室,利用近乎一整层的面积来满足供主人休憩+工作结合的心灵栖息之地,南向270°大采光面+超广角视野,赏一年四季风景如画。独立步入式衣帽间及带浴缸大卫生间的点缀,更加彰显仪式感、开阔感、功能性、舒适性、私密性强。

△意向图

赠送建筑面积约42㎡的宽阔露台,似“空中花园”,建立室内和自然的交互性,夜观星河,遥望西溪万顷绿波,远眺西湖苍翠群峰,享畅意人生。

△意向图

地下一层的“宴宾层”,雪茄吧、茶室、棋牌室……现极致奢华与舒适的生活体验;地下二层则是纯粹的“私享层”,主人可以定制自己的私属领域,享受专属于自己的时光。入户玄关、多功能影音室……更多可能性完全随主人兴趣自行定义。

△意向图

涵雲軒建面约350㎡「见山」户型呈现出来的,品质之高端、交标之精奢、细节之丰富,是在努力用更切合的方式给业主提供更舒适的生活方式。南郡涵雲軒西溪24席,建面约340-580㎡新江南商业院落,现已开启贵宾品鉴!

杭州西湖区南郡涵雲轩售楼处电话☎📞📱:400-000-0460转8888

我们以客户为中心,用心服务,只为让您拥有一个满意的家。

温馨提示:来访需提前两小时预约,以免直接参观无销售接待!

全部

相关资讯

报名成功
稍后会有专业的置业顾问联系您
返回楼盘

频道导航

返回首页

看房小程序

APP下载

电话拨通后,请您手动拨打分机号

确定拨打电话

电话号码:

分机号:(可能需要拨分机号)