绿城滨河沁月→最新房价动态全掌握→知乎限时呈现→@宁波绿城滨河沁月售楼处电话认证

搜狐焦点宿迁站

2025-10-20 13:23:28

购房群

买房如何避坑,加入购房群,看看他们怎么说

立即进群

2025宁波绿城滨河沁月(绿城滨河沁月| 滨河沁月售楼处电话)首页网站-楼盘详情-宁波绿城滨河沁月售楼处欢迎您-楼盘测评-户型配套

宁波绿城滨河沁月

√欢迎您致电品鉴 预约热线:400-000-5503转接2555【预约热线】

温馨提示:网上售楼中心〢预约尊享Vip一对一专业置业顾问讲解!

_Vip营销中心_____欢迎来电预约尊享内部折扣_____匠心钜制恭迎品鉴!中介勿扰!

万物卓然的仲夏,宁波滨河沁月成为姚江边一道靓丽的风景。

取意姚江波动的浪潮,住宅建筑高低错落,头部层层退台式的设计、轻盈简约的立面、横向带状式建筑分布,构成姚江新城的颜值封面。

汲取“奥体”“姚江”两大在地化灵感,宁波滨河沁月将姚江的灵动之美与奥体的国际范发挥得淋漓尽致。

作为绿城首入姚江新城的水岸系作品,宁波滨河沁月正以独树一帜的艺术性与设计感,在住宅建筑、度假园林和商业街区等多方面焕新表达,起笔这座城市的时代品质人居,展示历久弥珍的蓬勃生命力。

宁波滨河沁月在“鲜活社区”理念的指引下,将社区向城市打开,将城市配套资源引入到社区,让身处其间的业主和公共生活自然的融为一体,每一步探索与漫步都引人遐想,每一次赏玩都如同步入都市度假微时区。

东西入口的酒店式入户大堂尊贵大气,沿途嵌入迎宾景观、仪式树阵等丰富景观元素,生活的仪式感油然而生。

深入园区,将近1000㎡阳光草坪次第串联起社区会客厅、童趣天地、健身花园、绿化对景等主题活动区,让家人对诗意生活的憧憬有了具象的画面。踱步间,城市的快节奏在悠然的氛围里慢下来。

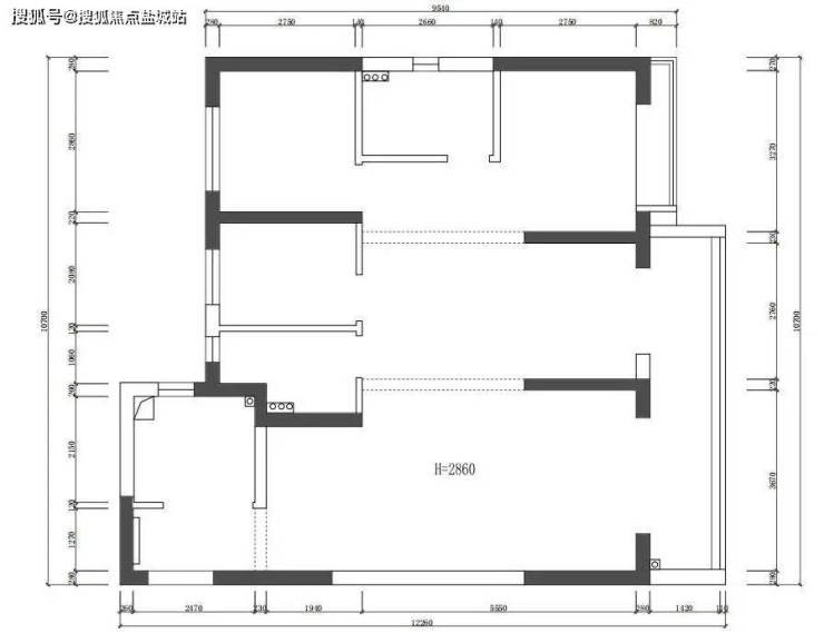
132㎡户型分析

△ 滨河沁月 132㎡ 户型图

户型优点:

• 户型方正,格局简约,实用而不浪费;

• 南北通透,有利于空气流通;

• 7米超宽景观阳台,采光充分,视野开阔。

户型缺点:

• 入户正对着厨房门,缺少隐私性;

• 餐厅靠墙,影响日常使用动线;

• 北卧室狭小,难以满足常规卧室功能;

• 主卧宽度仅2.75米,生活舒适度和功能性不强;

• 内卫面积太大,影响主卧空间;

• 整体储物空间有限,难以满足一家人储物需求。

在众多户型中,滨河沁月132㎡户型作为热门户型,广受城市精英喜爱,观岚峰上大宅资深设计师携手专门针对此户型的优缺点,结合不同的需求,设计出不同户型方案。

01

此方案针对不想太大改动的业主,满足一家三口家庭的生活需求, 重点在功能需求和储物空间上改动

儿童房做了衣帽间,中间预留空间是给孩子玩耍的区域;主卧做一整个套房,北边衣帽间及化妆护肤台,满足业主的功能需求。

内卫面积减小,卧室空间增加,能宽敞的放下1.8米的大床;多功能房既有大量储藏空间,又可满足客房、娱乐等功能。

02

此方案针对空间利用要求较高的业主,重构空间,规避户型缺点,让各区域空间功能完整,利用充分

改变厨房移门方向,入户形成玄关;冰箱外移,减小80公分台面空间,但是增加了餐厅的面积;餐桌连接岛台,居中放置,形成两边的动线,又使整个空间视觉上扩大一倍。

北边卫生间和房间往南外扩60公分,增加了北边区域面积不足的问题;增加多功能房储物空间,可放置普通床+书桌+8㎡衣柜;过道柜和电视背景柜额外增加收纳空间;主卧套房设计,衣帽间/书房设计移门,可单独使用。

03

此方案针对年轻夫妻的业主,能够接受大胆的空间创新,不拘泥于传统布局。

大多年轻夫妻做饭少,喜欢空间宽敞舒适,所以把厨房整体打开,和餐厅、客厅、阳台形成一个大空间,加上回型动线,使整个区域视觉上提升不止一倍。

内卫放置在北边,形成三分离,双台盆的超大卫生间。两大排衣柜满足日常所需,另设计了与床头柜连排的梳妆台,比较单独私密,满足女主人的需求。

04

此方案针对常规一家三口或四口日常需求,空间规划充实合理,更好的满足平时生活所需

入户设计鞋柜、次净衣柜等超大储物空间;厨房移门做隐藏,既可和餐厅一起结合成敞开式厨房,又可在爆炒时关上。

南边儿童房开门位置对调, 整体空间的动和静区域绝对分开,主卧的大衣帽间,过道的超深超长储物柜等,满足日常物品的收纳。

05

√欢迎您致电品鉴 预约热线:400-000-5503转接2555【预约热线】

温馨提示:网上售楼中心〢预约尊享Vip一对一专业置业顾问讲解!

_Vip营销中心_____欢迎来电预约尊享内部折扣_____匠心钜制恭迎品鉴!中介勿扰!

全部

相关资讯

报名成功
稍后会有专业的置业顾问联系您
返回楼盘

频道导航

返回首页

看房小程序

APP下载

电话拨通后,请您手动拨打分机号

确定拨打电话

电话号码:

分机号:(可能需要拨分机号)