越秀外滩樾售楼处电话→售楼中心电话→越秀外滩樾楼盘百科→越秀外滩樾首页网站→楼盘百科→首页网站→越秀外滩樾24小时热线电话

搜狐焦点宿迁站

2025-06-04 09:26:31

购房群

买房如何避坑,加入购房群,看看他们怎么说

立即进群

越秀外滩樾售楼处电话:400-000-0460转7777【越秀外滩樾预约热线✔✔】__欢迎来电咨询丨〢丨专业一对一热情服务丨丨看房需提前预约虹口北外滩【越秀·外滩樾】风貌别墅!加推推238-338㎡ 4000万~8000万

在繁华璀璨的上海外滩,历史与现代交织的乐章中,上海越秀外滩樾以其独特的魅力,傲然矗立于这片传奇之地,成为都市精英追求高品质生活的理想栖所。该项目不仅是对城市天际线的一次优雅延伸,更是对经典与现代融合生活哲学的深刻诠释。

地块四至范围, 东至梧州路,隔壁是中皇广场; 西至hk270B-02,隔壁就是1933老场坊; 南至周家嘴路;北至柘皋路。

项目总用地面积约10790平方米,为一类住宅组团用地,容积率1.3,建筑面积14027平方米,地块内需要保留的历史建筑规模约4400平方米,均为里弄建筑。

户型图236.25㎡A户型:

239.13㎡B户型:

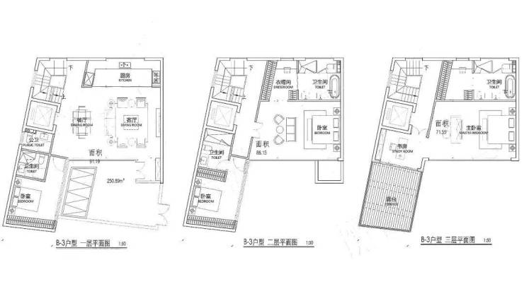
250.89㎡B-3户型:

C户型:

291.42㎡D户型

【尊享地段,尽揽外滩风华】

上海越秀外滩樾,坐拥外滩核心区域,紧邻黄浦江畔,得天独厚的地理位置赋予了其无与伦比的视野与便利。窗外即是百年外滩的壮丽景观,万国建筑群与陆家嘴的现代摩天大楼交相辉映,每一幕都是值得珍藏的城市画卷。在这里,居者可以轻松漫步于历史与未来之间,感受上海独有的城市韵味与国际风尚。

【匠心设计,重塑居住美学】

项目由国际知名建筑设计团队操刀,将现代建筑美学与东方文化底蕴巧妙融合。外立面采用高端材质,以流线型设计勾勒出建筑的动感与力量,同时不失细腻与温婉。内部空间布局则充分考量居住者的舒适体验,大尺度空间、全明采光设计,以及精心雕琢的每一处细节,共同营造出既尊贵又不失温馨的居住氛围。

【奢适配套,尊享品质生活】

上海越秀外滩樾深知高端居住的需求,特别配备了全方位的奢适生活配套。从私人会所到高端健身房,从恒温泳池到儿童游乐区,一应俱全的设施让居者在家门口就能享受到国际化的生活体验。此外,项目周边商业氛围浓厚,高端购物中心、五星级酒店、国际美食餐厅等应有尽有,满足居者对生活品质的极致追求。

【绿色生态,构建宜居环境】

在繁华都市中,上海越秀外滩樾亦不忘对绿色生态的坚守。项目内部精心规划了绿化景观,以绿植、水系等元素打造自然宜居的生态环境。同时,通过智能环保系统的应用,实现节能减排,为居者提供一个健康、低碳的生活空间。

总之,上海越秀外滩樾以其卓越的地段、匠心的设计、奢适的配套以及绿色的生态理念,成为了上海乃至全国高端住宅市场的璀璨明珠。它不仅是一个居住的空间,更是一种生活方式的象征,引领着都市精英追求更高品质、更具品味的生活方式。

越秀外滩樾售楼处电话:400-000-0460转7777【越秀外滩樾预约热线✔✔】__欢迎来电咨询丨〢丨专业一对一热情服务丨丨看房需提前预约虹口北外滩【越秀·外滩樾】风貌别墅!加推推238-338㎡ 4000万~8000万

全部

相关资讯

报名成功
稍后会有专业的置业顾问联系您
返回楼盘

频道导航

返回首页

看房小程序

APP下载

电话拨通后,请您手动拨打分机号

确定拨打电话

电话号码:

分机号:(可能需要拨分机号)