越秀·外滩樾售楼处电话→2025越秀·外滩樾售楼中心电话→楼盘百科→越秀·外滩樾首页网站→楼盘百科→首页网站→越秀·外滩樾24小时热线电话

搜狐焦点宿迁站

2025-06-01 09:05:17

购房群

买房如何避坑,加入购房群,看看他们怎么说

立即进群

虹口北外滩【越秀·外滩樾】风貌别墅!加推推238-338㎡ 4000万~8000万

越秀外滩樾售楼处电话:400-000-0460转7777【越秀外滩樾预约热线✔✔】__欢迎来电咨询丨〢丨专业一对一热情服务丨丨看房需提前预约

在繁华璀璨的上海外滩,历史与现代交织的乐章中,上海越秀外滩樾以其独特的魅力,傲然矗立于这片传奇之地,成为都市精英追求高品质生活的理想栖所。该项目不仅是对城市天际线的一次优雅延伸,更是对经典与现代融合生活哲学的深刻诠释。

地块四至范围, 东至梧州路,隔壁是中皇广场; 西至hk270B-02,隔壁就是1933老场坊; 南至周家嘴路;北至柘皋路。

项目总用地面积约10790平方米,为一类住宅组团用地,容积率1.3,建筑面积14027平方米,地块内需要保留的历史建筑规模约4400平方米,均为里弄建筑。

户型图236.25㎡A户型:

239.13㎡B户型:

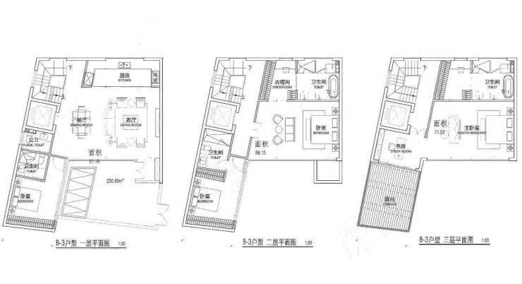
250.89㎡B-3户型:

C户型:

291.42㎡D户型

【尊享地段,尽揽外滩风华】

上海越秀外滩樾,坐拥外滩核心区域,紧邻黄浦江畔,得天独厚的地理位置赋予了其无与伦比的视野与便利。窗外即是百年外滩的壮丽景观,万国建筑群与陆家嘴的现代摩天大楼交相辉映,每一幕都是值得珍藏的城市画卷。在这里,居者可以轻松漫步于历史与未来之间,感受上海独有的城市韵味与国际风尚。

【匠心设计,重塑居住美学】

项目由国际知名建筑设计团队操刀,将现代建筑美学与东方文化底蕴巧妙融合。外立面采用高端材质,以流线型设计勾勒出建筑的动感与力量,同时不失细腻与温婉。内部空间布局则充分考量居住者的舒适体验,大尺度空间、全明采光设计,以及精心雕琢的每一处细节,共同营造出既尊贵又不失温馨的居住氛围。

【奢适配套,尊享品质生活】

上海越秀外滩樾深知高端居住的需求,特别配备了全方位的奢适生活配套。从私人会所到高端健身房,从恒温泳池到儿童游乐区,一应俱全的设施让居者在家门口就能享受到国际化的生活体验。此外,项目周边商业氛围浓厚,高端购物中心、五星级酒店、国际美食餐厅等应有尽有,满足居者对生活品质的极致追求。

【绿色生态,构建宜居环境】

在繁华都市中,上海越秀外滩樾亦不忘对绿色生态的坚守。项目内部精心规划了绿化景观,以绿植、水系等元素打造自然宜居的生态环境。同时,通过智能环保系统的应用,实现节能减排,为居者提供一个健康、低碳的生活空间。

总之,上海越秀外滩樾以其卓越的地段、匠心的设计、奢适的配套以及绿色的生态理念,成为了上海乃至全国高端住宅市场的璀璨明珠。它不仅是一个居住的空间,更是一种生活方式的象征,引领着都市精英追求更高品质、更具品味的生活方式。

越秀外滩樾售楼处电话:400-000-0460转7777【越秀外滩樾预约热线✔✔】__欢迎来电咨询丨〢丨专业一对一热情服务丨丨看房需提前预约

全部

相关资讯

报名成功
稍后会有专业的置业顾问联系您
返回楼盘

频道导航

返回首页

看房小程序

APP下载

电话拨通后,请您手动拨打分机号

确定拨打电话

电话号码:

分机号:(可能需要拨分机号)