韦克新作丨YX直播室,未来感与舒适感并存

韦克空间设计

2020-05-04 23:05:47

购房群

买房如何避坑,加入购房群,看看他们怎么说

立即进群

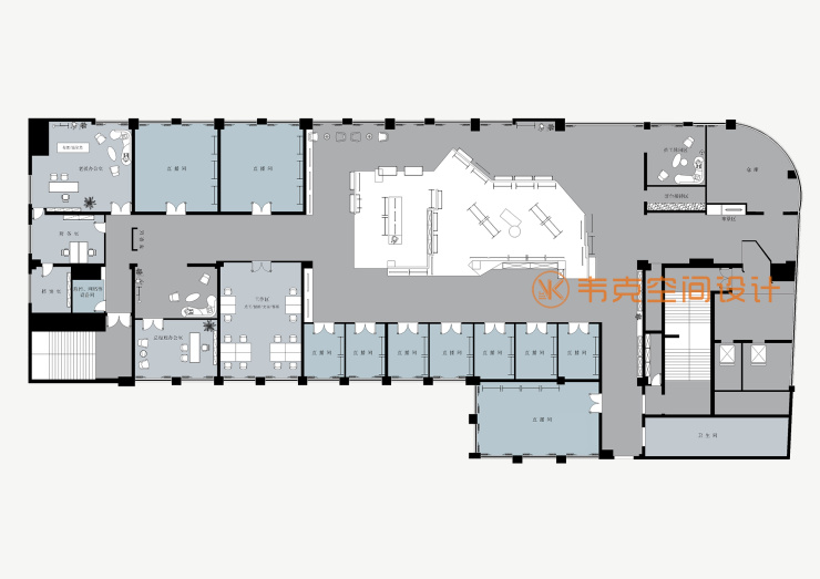
本案是一家「直播+电商」模式的服装公司,设计师针对趋于年轻化、崇尚个性化、追求创造力的品牌特点进行分析,以舒适、便捷为前提,规划出前台、仓库、展陈区、十个直播室和五个办公空间。

在设计上重视空间体验感,细节处理独到巧妙,打造出一个时尚、有趣的互联网服装公司办公环境。

基于办公空间需要的多种形态与场景组合,优雅内敛的灰色调与温柔明快的粉色调交相辉映,碰撞出新奇有趣的色彩摩登体验。

设计师拆除部分隔墙,扩宽中心区域,用来展示当季较新服饰。天花板的纵横线条,配合墙面的造型,再搭配灯光的感觉,营造出与空间互动的层次感。

整体空间在材料使用上较为克制,简洁的不锈钢衣架与墙壁相得益彰,设计元素提取于公司文化理念,于细节处不断加深品牌印象。

沿着地面大理石的走向,通过新搭的墙体隔断来勾勒出自然而然的空间流动,形成与之对应的美学构筑。

巧妙的运用白色、灰色作主色调搭配,着重突出品牌和产品的展示,使整个空间明亮又时尚。模特们或立或坐,尽现服饰之美的千姿百态。

近乎一面墙的落地窗带来良好的采光,采用圆形、曲线和框形的结构,衬托出展陈区简约、舒适的氛围,突出一种现代、高端的时尚品味。

从前台向左行进,在服饰展陈区的左侧划分出了8个直播间,墙面柠檬黄和珍珠白的色彩变换及柱体造型,文字符号清晰而醒目的实现了引导功能,增强了该区域空间的仪式感,同时提供了一个纯粹而出彩的空间背景。

穿过服饰展陈区便来到了员工工作区域,天花板与墙体造型流动而统一,柠檬黄和淡雅粉略带一丝“俏皮”气质,构成了YX品牌想要传达的年轻、活力气质。

此处设有客户接待区,极简弧形沙发搭配松软舒适的地毯,给来访者带来宾至如归的亲切感。

YX·129㎡现代简约风

户型结构·直播室

平面布局:

全部

相关资讯

报名成功
稍后会有专业的置业顾问联系您
返回楼盘

频道导航

返回首页

看房小程序

APP下载

电话拨通后,请您手动拨打分机号

确定拨打电话

电话号码:

分机号:(可能需要拨分机号)