西安「白桦林天成」
售楼处:029-83222232(营销中心)
售楼部地址:029-83222232(致电发送详情地址)
在售户型图丨项目详情介绍丨剩余房源丨项目周边配套丨详细在线解答
售楼中心_欢迎来电咨询!预约尊享优惠折扣_匠心钜制恭迎品鉴!
如需了解最新房源信息_在售房源价格_请拨打上方售楼部电话!

基本信息
楼盘名称:白桦林天成 在售
建筑类型:小高层,高层
产权年限住宅:70年
容积率住宅:2.7
规划户数:942户
车位数:2515
车位比1:2.7
楼盘特点:三环外 车位充足 购物中心 配套纯熟 医院
参考价格:25263元/m²
物业类型:住宅
开发商:西安经发天成开发建设有限公司
区域位置:三环外- 经济开发区- 高铁新城
楼盘地址:尚林路与草滩二路十字西南角
美 学·天 成
现代风尚 经典重构
以现代奢尚为基调,延续经典三段式黄金比例以玻璃幕墙搭配香槟金银铝板线条,纯净简约筑就生长于自然的建筑艺术体,同频国际审美

寰慕宽境 镜面艺术
独特艺术镜幕,重塑西安高颜住宅新封面
LOW-E玻璃幕墙,流奢镜面,呈映水晶之姿
寻借天空与湖的澄澈之蓝,为建筑着色,与自然共融

六 恒·臻 装
科技赋能 智慧人居
秉持“科技赋能生活"的设计理念
从阳光、空气、水等六大基础生命元素出发
定制“恒温、恒湿、恒氧、恒洁、恒静、恒智”六恒科技

品牌奢定 恒久经典
深圳柘壹设计,高定奢居空间
甄选国际一线家居品牌,融汇前沿空间设计理念
匠心于毫厘,优雅于方寸,为城市层峯高定

隐 奢·森 居
酒店门庭 归家礼序
借鉴国际高奢酒店“高度定制化"品牌精髓
入口基座甄选范思哲黑大理石
墙面采用葡萄牙米黄石材肌理
演绎门庭之美,营造隐奢归家仪式感

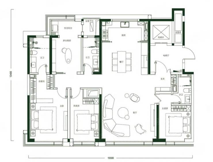
户型展示:
【白桦林天成】售楼处TEL:029-83222232【售楼中心】
了解最新优惠折扣价格——请拨打售楼处