西安「铁建越秀高新璞悦」
服务热线:029-88777723(咨询中心)
项目地址:029-88777723(致电发送详情地址)
在售户型图丨项目详情介绍丨剩余房源丨项目周边配套丨详细在线解答

基本信息
楼盘名称:铁建越秀·高新璞悦
建筑类型:高层,花园洋房
规划户数:365户
楼层状况:纯T2产品 高层:24-26F 洋房:5-11F
物业公司:中铁建物业管理有限公司西安分公司
车位数:408 (地上:20 个 地下:308个)
车位比:1:1.1
楼盘特点:高新 知名开发商 花园洋房 小区会所 大面宽
物业类型:住宅
开发商:西安铁晟越合房地产开发有限公司
区域位置:二至三环- 高新- 科技路
楼盘地址:科技路与鱼化三路交汇向南200米
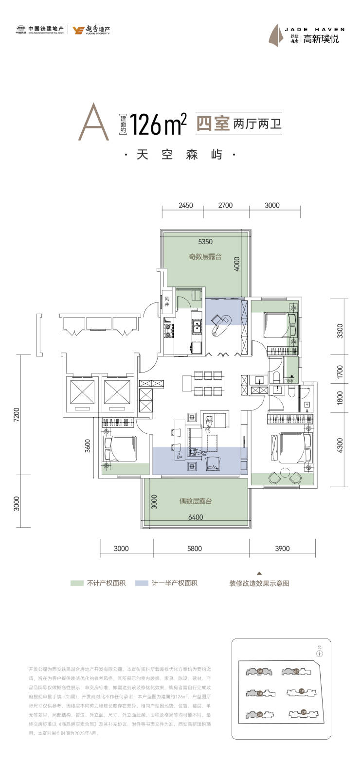
143洋房户型,四房两厅三卫
【铁建越秀高新璞悦】服务热线TEL:029-88777723【咨询中心】
了解最新优惠折扣价格——请拨打服务热线