高新三期 · 西安四腾科技园▁(层高、业态)▁高性价比▁建筑面积▁人车分流

搜狐焦点榆林站

2025-06-25 15:45:00

购房群

买房如何避坑,加入购房群,看看他们怎么说

立即进群

西安「高新三期 · 西安四腾科技园」

售楼处:029-88866618(营销中心)

售楼部地址:029-88866618(致电发送详情地址)

高新三期 · 西安四腾科技园

西安四腾科技园为高新三期重点项目,项目总投资额5.2亿元,占地约48.6亩,总建筑面积约8万平方米。

项目由西安四腾企业集团旗下企业——西安四腾新技术有限公司投资建设,集团扎根西安高新区30年,是医用空气净化领域的行业龙头。

项目配套

西安四腾科技园坐落于西安高新技术开发区的核心地带,北依北斗路,西傍经二十八路,南邻纬二十六路,东至经二十六路。这里不仅是科技创新的摇篮,更是未来企业发展的热土。

交通:高新云轨(300m)、地铁15号线(700m)、地铁6号线(1.8km)

商业:永安渠商业、阳光新天地;项目自带1.5万㎡商业

生态:200亩城市绿地公园(50m)、永安渠海绵城市生态公园(1km)、大仁遗址公园(2.2km)

医疗:西安国际医学中心(1.8km)

产业:中交科技城、三星环动力电池、中航电测、陕西光电科学院、中国科学院西安光学 研究院、中国通讯建设、未来之瞳超高层建筑群...

总占地:48.6亩

总建面:8万㎡

土地性质:工业用地(2020年12月)

车位:560个(地下,均可安装充电桩),非机动车345个

荷载:首层500kg/㎡,标准层300kg/㎡

电梯:进口芬兰通力

交付标准:毛坯

天然气:入户

项目分为2期开发,目前3#、4#、5#在售,预计2024年7月交付。

在售产品

3# 可分割为东西两户销售,每户2342㎡

建筑面积:4684㎡

总高:5层

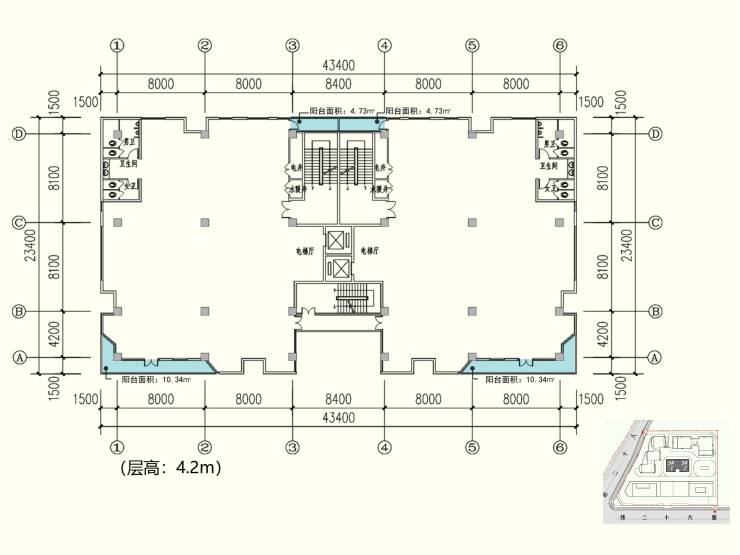
层高:首层、顶层5.1m,标准层4.2m

单层面积:约500㎡

4#-2单元 整栋出售

建筑面积:8212㎡

总高:8层

层高:首层4.5m,标准层3.9m

标准层面积:1078㎡

项目卖点

1.高新三期核心,距离管委会新址仅3km;

2.三地铁环绕,高新云轨、15号线近在咫尺,地铁6号线距离项目1.8km

3.项目1.5万㎡自持商业,大面积景观绿化+1250㎡水景,商业景观双配套,工作生活皆美好;

4.人车分流,车位充足;

5.花园独栋办公设计,低密度、高绿化,赠送楼顶花园、露台,企业总部的最佳选择彰显尊贵与实力;

6.偏心筒设计,户型方正,空间利用更自由、灵活;

7.零公摊,得房率超乎想象;

8.外立面采用石材+玻璃幕墙,大面积落地窗设计采光充足,办公环境更为舒适;

9.进口芬兰通力电梯入户,尊贵体验升级,提升企业的形象;

10.天然气入户,户内通上下水,办公接待两相宜;

11.自装空调,为企业节省运行成本;

12.低单价,高性价比,首付30%轻松起航。

项目实景

3#实拍

4#实拍

5#实拍

【高新三期 · 西安四腾科技园】租售中心TEL:029-88866618【租售中心】

了解最新优惠折扣价格——请拨打租售中心

全部

相关资讯

报名成功
稍后会有专业的置业顾问联系您
返回楼盘

频道导航

返回首页

看房小程序

APP下载

电话拨通后,请您手动拨打分机号

确定拨打电话

电话号码:

分机号:(可能需要拨分机号)