碧桂园云顶商铺▁一房一价▁绿色住宅▁物业公司▁4号线

搜狐焦点榆林站

2025-06-21 10:21:00

购房群

买房如何避坑,加入购房群,看看他们怎么说

立即进群

西安「碧桂园云顶」

售楼处:029-88777792(营销中心)

售楼部地址:029-88777792(致电发送详情地址)

基本信息

绿化率: 35%

容积率: 2.98

占地面积: 198亩

建筑面积: 358607平方米

总户数: 1171户

当期户数: 1171户

车位比: 1:1.4

物业费: 3.3元/m²/月

车位: 地上车位数172 ; 地下车位数2551

物业公司: 碧桂园智慧物业服务集团股份有限公司西安分公司

楼盘价格: 参考均价 20000 元/㎡ 周边房价解读

物业类型: 普通住宅

区域板块: 曲江

产权年限: 70年

项目特色: 地铁沿线 4号线 改善好房

开发商: 西安碧盈置业有限公司

楼盘地址: 西安航天基地麟凤路以南,神舟四路以东,航天大道以北

云顶择址航天新城门户,曲江高地外延,享受双板块优质资源,打造城市中心的都市豪宅,坐拥全系成熟配套。

项目配套

【交通】

距离地铁4号线金滹沱站、航天大道站。南三环、雁塔收费站,距离曲江收费站。项目门口更是有雁塔南路,神州四路两条城市级主干道,高效通达全城。

【教育】

项目周边名校众多,项目一路之隔的航天六小、航天三中已开学;更有师资力量雄厚的名校曲江一小,曲江二小,更有接驳国际理念,以国际升学为方向的西安康桥国际学校和西安德闳国际学校。

【医疗】

国际医疗综合体及航天总院、西安市人民医院、西北妇幼、强森医疗等。

【生态】

电竞主题公园、曲江文化运动公园、金辉运动公园、秦二世陵遗址公园、明秦宣王墓遗址公园等。

【商业】

云顶项目周围有四大商圈环绕,大雁塔商圈、南湖商圈、雁翔路商圈、商圈等。有已建成运营的金辉·环球广场、星座广场;华润万家步行15分钟就可以到达,盒马鲜生、徐记海鲜、海底捞、麦当劳、奥斯卡等,步行5分钟就可以享受,满足生活所需。

楼盘介绍

碧桂园云顶承袭大曲江时代发展机遇,以航天基地潜力为依托项目产品规划有平层住宅、商业等产品,配套规划品牌幼儿园及中学。一期占地面积约103亩,总建筑面积约35.8万㎡,住宅容积率为3.476,首期开发户数约1171户。

云顶择址航天新城门户,曲江高地外延,享受双板块优质资源,打造城市中心的都市豪宅,坐拥全系成熟配套

户型分析图

143户型

部分户型因位置、楼层、朝向的影响,相同面积的户型存在区别,以现场公示及实际销售双方签订合同为准

【亮点罗列】

【143㎡户型整体格局】两梯三户,三室两厅两卫,整体结构方正,大三室设计,完全不同于刚需性4室,整个房间各个区域的舒适度大幅提升。

开间约10.9米,进深约10.55米

餐客厅一体设计,面积约为36平米,餐厨相连,方便您备餐用餐

厨房面积约6.6平米,可容纳两人同时操作。采用L型设计,洗切炒的动线,实用性更强。大玻璃窗约1.2米宽的设计让您在烹饪的同时尽情享受窗外的美景

客厅开间约4.35米,约7.4米阔景阳台,两边分别设置洗衣柜和储物柜,完美收纳各种洗涤用品和生活用品

主卧功能分区十分合理,约60 公分宽景飘窗

三开间朝南,约10.9米的采光面

190户型

部分户型因位置、楼层、朝向的影响,相同面积的户型存在区别,以现场公示及实际销售双方签订合同为准

【亮点罗列】

【190㎡户型整体格局】2梯2户大平层豪宅,户型设计四室两厅一厨三卫,该户型实现了东西两户皆端户。

宽约5.4米,进深约10.4米连续长厅,以接近56㎡的面积构建了一个聚合的、完整的、大尺度的多功能公共活动空间

U型厨房空间,约12㎡超大观景厨房

近30㎡的豪华主卧套房设置,头等舱版的居住体验

四开间朝南,约15.8米的采光面

南向三间卧室均配观景飘窗

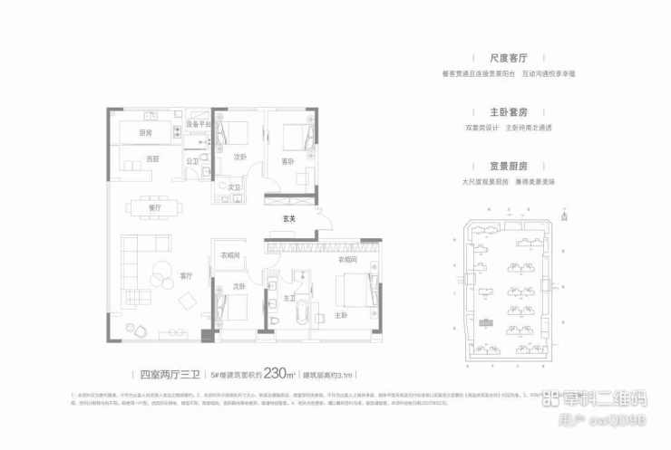
230户型

部分户型因位置、楼层、朝向的影响,相同面积的户型存在区别,以现场公示及实际销售双方签订合同为准

【碧桂园云顶】售楼处TEL:029-88777792【售楼中心】

了解最新优惠折扣价格——请拨打售楼处

全部

相关资讯

报名成功
稍后会有专业的置业顾问联系您
返回楼盘

频道导航

返回首页

看房小程序

APP下载

电话拨通后,请您手动拨打分机号

确定拨打电话

电话号码:

分机号:(可能需要拨分机号)