西安「精密西苑」
售楼处:029-83222232(营销中心)
售楼部地址:029-83222232(致电发送详情地址)
在售户型图丨项目详情介绍丨剩余房源丨项目周边配套丨详细在线解答

基本信息
绿化率: 33.33%
容积率: 4.17
占地面积: 17063.43㎡
建筑面积: 92689㎡
总户数: 726户
当期户数: 726户
车位比: 1:0.8
物业费: 1.5元/m²/月
车位: 600个(地上:130 个 地下:600个)
物业公司: 中昶物业
楼盘价格: 参考均价 15800 元/㎡ 周边房价解读
物业类型: 普通住宅
区域板块: 城西
产权年限: 70年
项目特色: 地铁沿线 教育资源 小户型 改善好房
开发商: 陕西崇望房地产开发有限公司
楼盘地址: 莲湖区枣园西路120号
周边配套
教育:项目一墙之隔远东二小,远东二中,远二分校,西城中学,远东实验小学,莲湖第二学校,莲湖第三学校等优质教育资源环伺。





医疗:冶金医院、中航工业西安医院,西安医学院附属医院,西电医院,西安医学院第一附属医院,武警医院,西安莲湖协力医院,西安市儿童医院,西安交大二附院,西安市中心医院,陕西省中医医院,西安市第一医院等等
交通立体交通:自驾出行非常便捷半小时内可以通达全城。地铁:一号线就在门口可换乘(2号线,4号线,16号线,6号线,9号线)还有8号线可以任意换乘,通达全城,门口还有十几条公交可供选择。



商业/娱乐商业环绕:三桥华润万象城,大润发超市,家世界,华东购物广场,西钞广场。
公园公园环绕:汉长安城遗址公园,丝绸群雕街心公园,红光公园,阿房宫遗址公园,劳动公园,丰庆公园。
核心卖点
1、品牌:延长石油国企开发
2、地段:占据西安中轴线核心位置,交通20分钟通达全城,城西优质教育资源集中区,教育、商业配套围绕项目一圈
3、户型:两室、三室,适合刚需家庭为孩子教育婚房的最佳面积
4、国企开发,现房有保障。

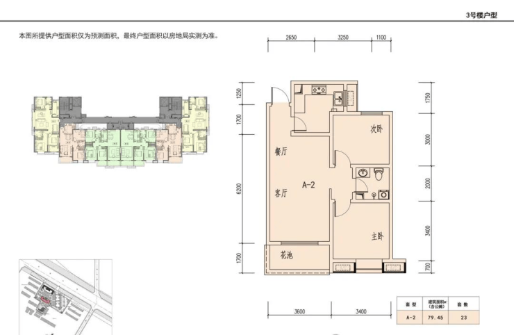
户型面积
59平

79平

105平

129平

【精密西苑】售楼处TEL:029-83222232【售楼中心】
了解最新优惠折扣价格——请拨打售楼处