西安「金泰唐樾」
售楼处:029-68866626(营销中心)
售楼部地址:029-68866626(致电发送详情地址)
在售户型图丨项目详情介绍丨剩余房源丨项目周边配套丨详细在线解答

基本信息
绿化率: 40%
容积率: 2.5
占地面积: 55186.67㎡
建筑面积: 200589.59㎡
总户数: 675户
楼盘价格: 参考均价 23261 元/㎡ 周边房价解读
物业类型: 普通住宅
区域板块: 城南
产权年限: 70年
项目特色: 改善好房
开发商: 陕西金泰恒盛房地产经纪有限公司,陕西金泰恒业青龙置业有限公司
楼盘地址: 西影路与新安路交叉口向北100米路西
品牌篇
金泰恒业,21载匠筑美好
金泰恒业与西安同频21载,作为传统建筑文化践行者与创新者,揽山水天地,承人和礼序,持营造法度,以千年盛唐文化为灵感,构建全新高端文化产品谱系——金泰「唐系」,打造金泰·唐618及金泰「唐系」第二座文化住宅,传承盛唐风雅、对话现代建筑,完美再现新唐风文化建筑,并以唐系五大营造观点复兴城市人文。
区域篇
文脉贵地,深耕人文底蕴
乐游原,盛载千年旷世风流 |
东南形胜,乐游登高。长安城东南乐游原,海拔467米,为长安城至高点。因其暗合易经“六爻”理论中的“九五”之位,又被尊称为九五国脉。乐游原自古以来是皇家游览胜地,在唐时更是高光瞩目,皇室贵胄,诗人名士置宅于此,如太平公主、白居易、柳公权、贺知章等。
青龙寺,盛唐文明交融圣地 |
青龙寺位于乐游原之上,为密宗祖庭。始建于隋文帝开皇二年(582年),极盛于唐代中期,日本僧侣,著名的“入唐八大家”中的六家皆受法于此。其中空海于此拜密宗大师惠果为师,学习密宗真谛。后回日本创立真言宗,成为开创“东密”的祖师。青龙寺距今已有1400多年的历史,现已成为重要的文化遗产,美好不息。
周边配套
多维路网,同步世界生活
轨道交通| 近距3号线、5号线换乘站青龙寺站,双地铁加持,可高效畅行主城,并可直通浐灞奥体中心、高新软件新城、沣东沣西等城市各个板块;
干道交通| 享三纵三横城市交通格局。三纵,新安路接东二环干道;雁翔路及兴庆路干道;曲江大道接太乙路干道。三横,南二环接建工路;西影路接小寨东路;南三环接绕城高速。项目周边路网密集,紧邻南二环,10分钟可达曲江收费站。居于金泰·唐樾,出行畅通无阻。
国际教育,优质资源环伺
项目所在区域板块,是西安教育资源最密集区域之一,涵养着这块无二土地的理想与未来。小学资源:交大附小/曲江一小/西影路小学;品质中学:交大附中/西安铁一中/曲江一中/八十三中;高等院校:西安交大/西安理工大/西安建大/西安工程大学等名校云集,优享一站式全龄国际化教育体系。自建教育配套:雁塔区第一小学和第一中学,东西地块内各规划了幼儿园。

产品篇
一个革新的唐 | 惊喜、美好都在这里持续发生
尘林之境 林樾方间-情境Plus园林 |
好的风景,不仅是草木绿植的组合,更是文化感、仪式感与生活温度的用心酿造。青龙寺的垂烟袅袅,祥云飞天的优美形态,唐樾以祥云飞天,唐风古韵、繁樱盛景作为景观灵感来源,匠心营造诗意栖居的体验式园林风景,将城市渴望的自然生态、生活美学、历史文化艺术呈现于世人眼前,打造自然之中返璞归真的居所。

古韵之境 人文色彩-邻里社交空间 |
提取以唐彩为主题的古韵之色,在项目邻里活动场所,健身跑道、儿童区、健身区,设置唐彩活力色彩表达,形成盛唐古韵与活泼灵动的完美融合。

美学之境 空间意境-唐风文脉立面 |
浅饱和度封面建筑,演绎盛唐立体美学,通过对唐装饰纹样的精炼提取,形成不同的装饰元素,落位到项目的铺装、立面、廊架屏风等细节装饰,让盛唐文脉的基因融入到社区之中。
一个先锋的唐 | 自我、世界,这里都装得下
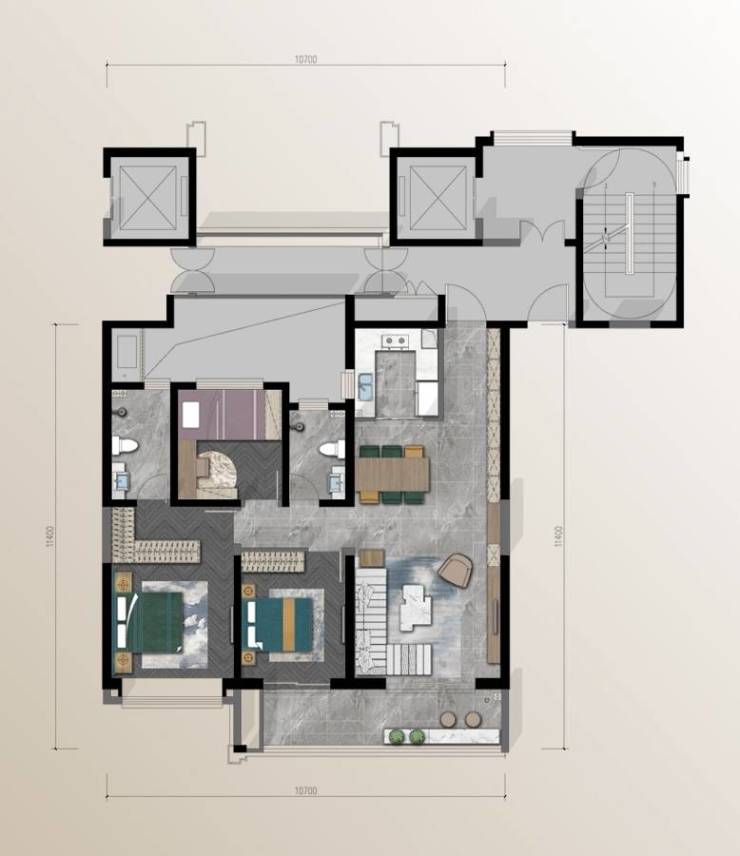
望樾 · 建筑面积约168㎡ 4室2厅3卫 |
归家私域/独立专梯入户,开启归家仪式感
iMAX视域/四面宽设计,畅享无界视觉体验
超级环岛/客厅洄游动线,联结万千生活想象
无界园境/270°双面宽阳台,与自然亲密相拥
双头等舱/双套房主卧,打造双头等舱奢品体验
云樾 · 建筑面积约143㎡ 3+1室2厅2卫 |
显藏空间/艺术玄关收纳,彰显质感格调
超级广域/全维功能方厅,承载生活场景
美学广角/270°转角阳台,看见美学视界
智慧主卧/酒店式套房,私享高阶居住体验

心樾 · 建筑面积约125㎡ 3室2厅2卫 |
礼仪玄关/仪式私密兼具,开启归家跨阶体验
互动竖厅/空间生活融合,多元场景升温情感
私岛套房/轻奢功能配置,私享酒店规格套房
趋势阳台/前瞻当代趋势,承载全新居住向往
【金泰唐樾】售楼处TEL:029-68866626【售楼中心】
了解最新优惠折扣价格——请拨打售楼处