西安金泰唐樾(售楼处线上) —改善好房 —大户型 —装修交付 — 位置图

搜狐焦点榆林站

2025-07-20 09:27:00

购房群

买房如何避坑,加入购房群,看看他们怎么说

立即进群

西安「金泰唐樾」

售楼处:029-88777792(营销中心)

售楼部地址:029-88777792(致电发送详情地址)

基本信息

楼盘名称:金泰·唐樾

建筑类型:小高层,高层

产权年限住宅:70年

容积率住宅:2.5

绿化率:40%

规划户数:675户

楼盘特点:一房一价 二至三环 品牌开发商 大户型 配套纯熟

参考价格:24386元/m²

物业类型:住宅

开发商:陕西金泰恒盛房地产经纪有限公司,陕西金泰恒业青龙置业有限公司

区域位置:二至三环- 雁塔区- 青龙寺

楼盘地址:西影路与新安路交叉口向北100米路西

品牌篇

金泰恒业,21载匠筑美好

金泰恒业与西安同频21载,作为传统建筑文化践行者与创新者,揽山水天地,承人和礼序,持营造法度,以千年盛唐文化为灵感,构建全新高端文化产品谱系——金泰「唐系」,打造金泰·唐618及金泰「唐系」第二座文化住宅,传承盛唐风雅、对话现代建筑,完美再现新唐风文化建筑,并以唐系五大营造观点复兴城市人文。

区域篇

文脉贵地,深耕人文底蕴

乐游原,盛载千年旷世风流 |

东南形胜,乐游登高。长安城东南乐游原,海拔467米,为长安城至高点。因其暗合易经“六爻”理论中的“九五”之位,又被尊称为九五国脉。乐游原自古以来是皇家游览胜地,在唐时更是高光瞩目,皇室贵胄,诗人名士置宅于此,如太平公主、白居易、柳公权、贺知章等。

青龙寺,盛唐文明交融圣地 |

青龙寺位于乐游原之上,为密宗祖庭。始建于隋文帝开皇二年(582年),极盛于唐代中期,日本僧侣,著名的“入唐八大家”中的六家皆受法于此。其中空海于此拜密宗大师惠果为师,学习密宗真谛。后回日本创立真言宗,成为开创“东密”的祖师。青龙寺距今已有1400多年的历史,现已成为重要的文化遗产,美好不息。

周边配套

多维路网,同步世界生活

轨道交通| 近距3号线、5号线换乘站青龙寺站,双地铁加持,可高效畅行主城,并可直通浐灞奥体中心、高新软件新城、沣东沣西等城市各个板块;

干道交通| 享三纵三横城市交通格局。三纵,新安路接东二环干道;雁翔路及兴庆路干道;曲江大道接太乙路干道。三横,南二环接建工路;西影路接小寨东路;南三环接绕城高速。项目周边路网密集,紧邻南二环,10分钟可达曲江收费站。居于金泰·唐樾,出行畅通无阻。

国际教育,优质资源环伺

项目所在区域板块,是西安教育资源最密集区域之一,涵养着这块无二土地的理想与未来。小学资源:交大附小/曲江一小/西影路小学;品质中学:交大附中/西安铁一中/曲江一中/八十三中;高等院校:西安交大/西安理工大/西安建大/西安工程大学等名校云集,优享一站式全龄国际化教育体系。自建教育配套:雁塔区第一小学和第一中学,东西地块内各规划了幼儿园。

产品篇

一个革新的唐 | 惊喜、美好都在这里持续发生

尘林之境 林樾方间-情境Plus园林 |

好的风景,不仅是草木绿植的组合,更是文化感、仪式感与生活温度的用心酿造。青龙寺的垂烟袅袅,祥云飞天的优美形态,唐樾以祥云飞天,唐风古韵、繁樱盛景作为景观灵感来源,匠心营造诗意栖居的体验式园林风景,将城市渴望的自然生态、生活美学、历史文化艺术呈现于世人眼前,打造自然之中返璞归真的居所。

古韵之境 人文色彩-邻里社交空间 |

提取以唐彩为主题的古韵之色,在项目邻里活动场所,健身跑道、儿童区、健身区,设置唐彩活力色彩表达,形成盛唐古韵与活泼灵动的完美融合。

美学之境 空间意境-唐风文脉立面 |

浅饱和度封面建筑,演绎盛唐立体美学,通过对唐装饰纹样的精炼提取,形成不同的装饰元素,落位到项目的铺装、立面、廊架屏风等细节装饰,让盛唐文脉的基因融入到社区之中。

一个先锋的唐 | 自我、世界,这里都装得下

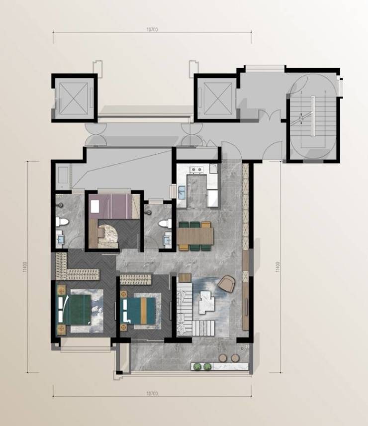
望樾 · 建筑面积约168㎡ 4室2厅3卫 |

归家私域/独立专梯入户,开启归家仪式感

iMAX视域/四面宽设计,畅享无界视觉体验

超级环岛/客厅洄游动线,联结万千生活想象

无界园境/270°双面宽阳台,与自然亲密相拥

双头等舱/双套房主卧,打造双头等舱奢品体验

云樾 · 建筑面积约143㎡ 3+1室2厅2卫 |

显藏空间/艺术玄关收纳,彰显质感格调

超级广域/全维功能方厅,承载生活场景

美学广角/270°转角阳台,看见美学视界

智慧主卧/酒店式套房,私享高阶居住体验

心樾 · 建筑面积约125㎡ 3室2厅2卫 |

礼仪玄关/仪式私密兼具,开启归家跨阶体验

互动竖厅/空间生活融合,多元场景升温情感

私岛套房/轻奢功能配置,私享酒店规格套房

趋势阳台/前瞻当代趋势,承载全新居住向往

【金泰唐樾】售楼处TEL:029-88777792【售楼中心】

了解最新优惠折扣价格——请拨打售楼处

全部

相关资讯

报名成功
稍后会有专业的置业顾问联系您
返回楼盘

频道导航

返回首页

看房小程序

APP下载

电话拨通后,请您手动拨打分机号

确定拨打电话

电话号码:

分机号:(可能需要拨分机号)