西安「大华·锦绣年华」
售楼处:029-68866626(营销中心)
售楼部地址:029-68866626(致电发送详情地址)
在售户型图丨项目详情介绍丨剩余房源丨项目周边配套丨详细在线解答
基本信息
楼盘名称:大华锦绣年华
规划户数:928户
车位数1601
楼盘特点:三环外 品牌开发商 轨交房 学校 公园
物业类型:住宅
开发商:大华集团西安华鑫置业有限公司
区域位置:三环外- 航天基地- 航天基地
楼盘地址:雁岭路与星苔路交汇东北角
01 三纵三横路网
航天大道、东长安街、航天南路三大横向主干道;航天东路(直达曲江)、神州四路、雁塔南路三大纵向主干道,紧邻韦曲南高速出入口,快速联通高新、曲江。
02 双线地铁
东长安街、航天东路等主干道环伺;距地铁15号线韩家湾站(预计2025年通车),近邻地铁4号线航天东路站.
03 商圌环绕
自建3.1万方商业体,近距离星旋广场、佰邻街、壹街区、航天城中心广场、创想中心、星座广场等;规划龙湖创意天街、四海唐乐街、揽月坊、里坊park等潮尚商业体;多元商业集群效应,聚合航天城崭新封面商圈.
04 全区绿地率约43%
05 优教云集
自建15班公办幼儿园,规划中学;项目周边航天第二小学、航天第四小学,航天城第十学校(九年一贯制),航天一中、航天二中及航天交大菁英学校(12年一站式教育).
06 医疗配套
锦绣尊系首映改善造城新样本
2024年,大华锦绣尊系首入西安,以高端序列作品择址观,落子航天新城产业核芯高地,敬献都会升级迭代巨著“大华·锦绣年华”,撰述西安改善造城史。242亩规划体量,15班幼儿园、中学(代建),规划约3.1万方商服配套。
全维美好生活圈推动城巿焕新生长
大华·锦绣年华从立项之初,即扎根城市发展的长期价值,以十字街区设计成片开发,推动城市焕新成长,大城有机串联街角公园、街心广场、幼儿园、海派风情漫步商街等配套,构建全维美好生活圈,让城市界面繁华似锦。
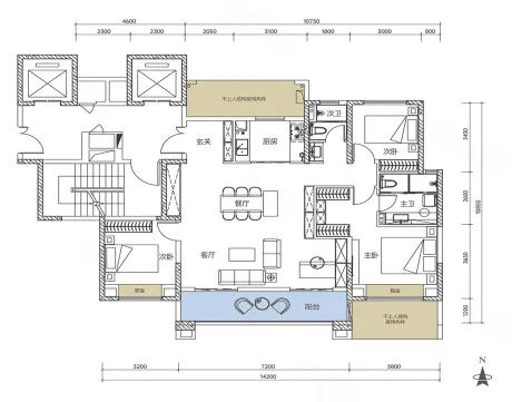
海派精致住区美学归心之境
户型展示:




【大华·锦绣年华】售楼处TEL:029-68866626【售楼中心】
了解最新优惠折扣价格——请拨打售楼处