西安大华·锦绣年华(毛坯)▁学府环伺▁轨交房▁车位充足▁品牌开发商

搜狐焦点榆林站

2025-06-14 19:21:00

购房群

买房如何避坑,加入购房群,看看他们怎么说

立即进群

西安「大华·锦绣年华」

售楼处:029-68866626(营销中心)

售楼部地址:029-68866626(致电发送详情地址)

在售户型图丨项目详情介绍丨剩余房源丨项目周边配套丨详细在线解答

售楼中心_欢迎来电咨询!预约尊享优惠折扣_匠心钜制恭迎品鉴!

如需了解最新房源信息_在售房源价格_请拨打上方售楼部电话!

基本信息

楼盘名称:大华锦绣年华

规划户数:928户

车位数1601

楼盘特点:三环外 品牌开发商 轨交房 学校 公园

物业类型:住宅

开发商:大华集团西安华鑫置业有限公司

区域位置:三环外- 航天基地- 航天基地

楼盘地址:雁岭路与星苔路交汇东北角

区域

三区交汇双轴核芯抢占曲江共建风

雄踞国家级开发区航天新城核芯腹地,同时毗邻定位“千亿级数字文化产业集群园区”的曲江长安共建区,既可享受曲江及航天城醇熟配套资源,又兼得长安、曲江、航天三区融合发展红利。

航天枢纽与城南共未来

作为全国唯一以航天产业为特色的国家级开发区,航天新城毗邻曲江新区,向西直达高新,已发展为全市经济增速、人均GDP第的开发区,航天基地高精尖产业密布,聚集了8家“国家队”和40多家商业航天企业,京东、荣耀、阿里巴巴等产业园名企总部汇聚,航天城聚势腾飞飞,进阶城南高价值版图。

生态宜居珍壤世界一流康居新城

依托航天、新能源等主导产业奠定发展基础的同时,航天新城实现了人口的导入。教育、交通、公园、商业等城市配套密集落地,在建设国家中心城市的时代步伐之下,正向打造世界一流休闲康居新城的目标迈进。

以海派精致主张绘制风范住区,将社区每个触点植入美学与秩序的考量,从铝板玻璃幕墙公建立面到“星级酒店式归家大堂--入户双大堂--电梯外玄关”三重递进式归家礼序,复刻登堂入室的尊荣,集萃奢华酒店设计风格,时刻酝酿生活仪式感。

高定大师会所锦绣层峯之境

精神场域与文化内涵并重,呈敬时代之上的奢居向往。锦绣年华作为锦绣系升级之作,深研菁英名仕社交品味与居住需求,臻筑大师高定双重会所--约2000m四季酒店式私享会所,涵盖茶室、瑜伽室、养心书吧、私宴厅等圈层服务体系,营造静谧奢享场域;楼宇架空层交互式泛会所,为全龄家庭提供乐活空间,构建多元社交休闲场。

迭代空中院墅心灵悅已之境

为航天人居赋新,大华·锦绣年华敬献纯改善四代宅住区,定制自在于心的锦绣空间,户户空中院墅级奢享,提升人与自然的交互性和居住空间的舒适性;部分户型可实现超100%得房率,超越预期的大民度居家空间,更具获得感和延展性。

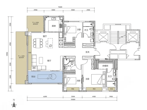
户型展示:

【大华·锦绣年华】售楼处TEL:029-68866626【售楼中心】

了解最新优惠折扣价格——请拨打售楼处

全部

相关资讯

报名成功
稍后会有专业的置业顾问联系您
返回楼盘

频道导航

返回首页

看房小程序

APP下载

电话拨通后,请您手动拨打分机号

确定拨打电话

电话号码:

分机号:(可能需要拨分机号)