【西安新房】碧桂园云顶▁产品介绍▁地铁沿线▁物业公司▁户型图

搜狐焦点榆林站

2025-07-15 10:50:52

购房群

买房如何避坑,加入购房群,看看他们怎么说

立即进群

西安「碧桂园云顶」

售楼处:029-88777792(营销中心)

售楼部地址:029-88777792(致电发送详情地址)

项目介绍

项目:碧桂园云顶D区

地址:西安曲江芙蓉西路与航天大道十字西北角

产权年限: 70年

绿地率: 32.76%

容积率:2.98

层高:143㎡层高3米、190㎡-230㎡层高3.1米

梯户比: 143㎡2梯3户、190㎡2梯2户、230㎡2梯2户/1梯2户

在推售楼栋:7#、9#、10#、11#、12#

物业公司: 碧桂园物业

装修状态: 精装

周边配套:

中小学:曲江第一小学、曲江第二小学、曲江第三小学、曲江第四小学、曲江中学、曲江第一中学、曲江第二中学、德闳国际学校、康桥国际中学等 ,全龄国际化高端教育体系。

综合商场:曲江大悦城、芙蓉新天地、金地广场、正荣彩虹谷、环球广场、龙湖星悦荟、曲江银泰、曲江创意谷等购物中心,辐射约120万平方米国际居住区和历史旅游景区

医院:西安航天总医院、西安市人民医院、西北妇女儿童医院、西安市胸科医院,为健康保驾护航。

其他:曲江文化运动公园、曲江池公园、电竞主题公园、明秦世子公园、金辉运动公园、秦二世陵遗址公园、杜陵国家遗址公园七大人文生态,资源富集盛美。

交通状况:

轨交:地铁4号线航天大

自驾:走三环或者绕城高速

道路:外部绕城高速、南三环、航天大道、雁塔南路、芙蓉西路等多维立体交通,打通游刃有余的外交关系。

楼盘介绍

碧桂园云顶承袭大曲江时代发展机遇,以航天基地潜力为依托项目产品规划有平层住宅、商业等产品,配套规划品牌幼儿园及中学。一期占地面积约103亩,总建筑面积约35.8万㎡,住宅容积率为3.476,首期开发户数约1171户。

云顶择址航天新城门户,曲江高地外延,享受双板块优质资源,打造城市中心的都市豪宅,坐拥全系成熟配套

户型分析图

143户型

部分户型因位置、楼层、朝向的影响,相同面积的户型存在区别,以现场公示及实际销售双方签订合同为准

【亮点罗列】

【143㎡户型整体格局】两梯三户,三室两厅两卫,整体结构方正,大三室设计,完全不同于刚需性4室,整个房间各个区域的舒适度大幅提升。

开间约10.9米,进深约10.55米

餐客厅一体设计,面积约为36平米,餐厨相连,方便您备餐用餐

厨房面积约6.6平米,可容纳两人同时操作。采用L型设计,洗切炒的动线,实用性更强。大玻璃窗约1.2米宽的设计让您在烹饪的同时尽情享受窗外的美景

客厅开间约4.35米,约7.4米阔景阳台,两边分别设置洗衣柜和储物柜,完美收纳各种洗涤用品和生活用品

主卧功能分区十分合理,约60 公分宽景飘窗

三开间朝南,约10.9米的采光面

190户型

部分户型因位置、楼层、朝向的影响,相同面积的户型存在区别,以现场公示及实际销售双方签订合同为准

【亮点罗列】

【190㎡户型整体格局】2梯2户大平层豪宅,户型设计四室两厅一厨三卫,该户型实现了东西两户皆端户。

宽约5.4米,进深约10.4米连续长厅,以接近56㎡的面积构建了一个聚合的、完整的、大尺度的多功能公共活动空间

U型厨房空间,约12㎡超大观景厨房

近30㎡的豪华主卧套房设置,头等舱版的居住体验

四开间朝南,约15.8米的采光面

南向三间卧室均配观景飘窗

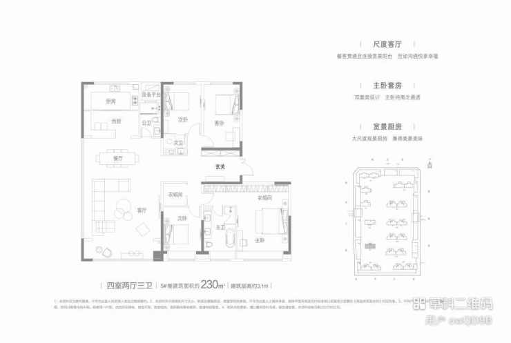
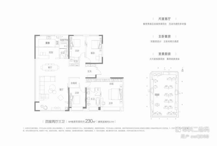
230户型

部分户型因位置、楼层、朝向的影响,相同面积的户型存在区别,以现场公示及实际销售双方签订合同为准

【碧桂园云顶】售楼处TEL:029-88777792【售楼中心】

了解最新优惠折扣价格——请拨打售楼处

全部
报名成功
稍后会有专业的置业顾问联系您
返回楼盘

频道导航

返回首页

看房小程序

APP下载

电话拨通后,请您手动拨打分机号

确定拨打电话

电话号码:

分机号:(可能需要拨分机号)