西安【华润置地世园润府】—在售户型—品牌开发商—周边环境—产品介绍

搜狐焦点榆林站

2025-06-08 11:33:00

购房群

买房如何避坑,加入购房群,看看他们怎么说

立即进群

西安「华润置地世园润府」

售楼处:029-68866626(营销中心)

售楼部地址:029-68866626(致电发送详情地址)

基本信息

楼盘名称:华润置地世园润府

绿化率: 40%

容积率: 2.0

占地面积: 258亩

建筑面积: 494879㎡

总户数: 1949户

当期户数: 1949

车位比: 1:2.0

物业费: 2.2元/m²/月

车位: 共计3393个

物业公司: 华润万象生活

楼盘价格: 参考均价 16500 元/㎡ 周边房价解读

物业类型: 洋房 普通住宅

区域板块: 浐灞

产权年限: 70年

项目特色: 改善好房

开发商: 西安世园润盈置业有限公司

楼盘地址: 西安市浐灞生态区北临世博大道、东临文渊路

周边配套:

教育

西安市浐灞第十九小学、爱华幼儿园(西安政物核段社区西北)、西安市第三十四中学、西安市灞桥区灞桥镇小学、金宸幼儿园(世博大道)、西安市八十三中学(浐灞分校)、纺织城小学灞柳分校、迎春花幼儿园、西安市浐灞第一中学、西安市浐灞第十八小学

交通

香湖湾(3号线)、灞桥收费站(西潼高速西南向)、世博园得宝门[公交站]、浐灞中心(3号线)、灞桥收费站绕城高速联络线东北向)、锻压厂[公交站]、务庄(3号线)、灞桥停车场[公交站]、一二四所[公交站]、锻压机床厂[公交站]

购物

百汇商业中心、西安华东购物广场、灞桥供销社供销商场、鲜都生活超市(纺渭路店)、香湖湾时代广场

楼盘

世园里、世园大公馆、上林艺境、香江湾、中铁琉森水岸、绿城桂语江南、云溪东境、中南樾府、世园林语、西安新天地金融中心(商业)

医疗

西安医学院第二附属医院(灞桥院区)、灞桥核锻社区卫生服务站预防接种门诊、方家村卫生室、西安市灞桥区人民医院、灞桥核锻社区卫生服务站、灞桥街卫生室、灞桥区红十字会医院、灞桥区灞桥第一社区卫生服务中心、读书村卫生室(核锻社区卫生服务站西北)、前海人寿医院

景观

灞桥生态湿地公园、西安千古情广场、灞河西岸滨河公园、灞桥街道办绿化健身广场、浐灞生态区汽车主题公园、北入口广场、香湖湾公园、灞柳西路3号小广场、西安尾水公园、灞柳西路2号小广场

生活

秦豫香早点、中国邮政储蓄银行(二一一小区)、中影 国际影城(华东店)、顶美发型设计、娟子洗衣店、西安高新技师学院(浐灞校区)-操场、灞桥区畅阅书吧阅览室、美味川菜馆(灞桥堡路店)、秦农银行(读书村支行)、西安市灞桥区人民政府灞桥街道办事处公益电影放映点

交通状况:

香湖湾(3号线)、灞桥收费站(西潼高速西南向)、世博园得宝门[公交站]、浐灞中心(3号线)、灞桥收费站(绕城高速联络线东北向)、锻压厂[公交站]、务庄(3号线)、灞桥停车场[公交站]、一二四所[公交站]、锻压机床厂[公交站]

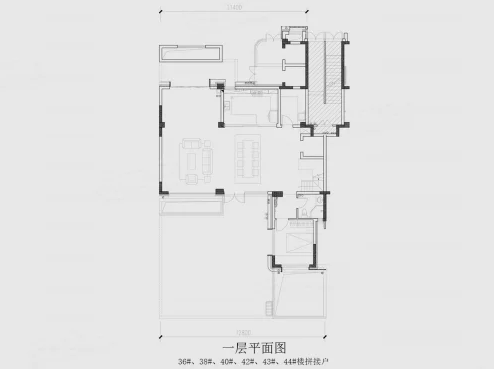
户型展示:

4室2厅2卫1厨, 143平米

3室2厅2卫1厨, 123平米

3室2厅2卫1厨, 123平米

4室2厅4卫1厨, 259平米

【华润置地世园润府】售楼处TEL:029-68866626【售楼中心】

了解最新优惠折扣价格——请拨打售楼处

全部

相关资讯

报名成功
稍后会有专业的置业顾问联系您
返回楼盘

频道导航

返回首页

看房小程序

APP下载

电话拨通后,请您手动拨打分机号

确定拨打电话

电话号码:

分机号:(可能需要拨分机号)