西安「碧桂园云顶」
售楼处:029-88777792(营销中心)
售楼部地址:029-88777792(致电发送详情地址)
在售户型图丨项目详情介绍丨剩余房源丨项目周边配套丨详细在线解答

基本信息
绿化率: 35%
容积率: 2.98
占地面积: 198亩
建筑面积: 358607平方米
总户数: 1171户
当期户数: 1171户
车位比: 1:1.4
物业费: 3.3元/m²/月
车位: 地上车位数172 ; 地下车位数2551
物业公司: 碧桂园智慧物业服务集团股份有限公司西安分公司
楼盘价格: 参考均价 20000 元/㎡ 周边房价解读
物业类型: 普通住宅
区域板块: 曲江
产权年限: 70年
项目特色: 地铁沿线 4号线 改善好房
开发商: 西安碧盈置业有限公司
楼盘地址: 西安航天基地麟凤路以南,神舟四路以东,航天大道以北
云顶择址航天新城门户,曲江高地外延,享受双板块优质资源,打造城市中心的都市豪宅,坐拥全系成熟配套。

项目配套
【交通】
距离地铁4号线金滹沱站、航天大道站。南三环、雁塔收费站,距离曲江收费站。项目门口更是有雁塔南路,神州四路两条城市级主干道,高效通达全城。

【教育】
项目周边名校众多,项目一路之隔的航天六小、航天三中已开学;更有师资力量雄厚的名校曲江一小,曲江二小,更有接驳国际理念,以国际升学为方向的西安康桥国际学校和西安德闳国际学校。
【医疗】
国际医疗综合体及航天总院、西安市人民医院、西北妇幼、强森医疗等。

【生态】
电竞主题公园、曲江文化运动公园、金辉运动公园、秦二世陵遗址公园、明秦宣王墓遗址公园等。

【商业】
云顶项目周围有四大商圈环绕,大雁塔商圈、南湖商圈、雁翔路商圈、商圈等。有已建成运营的金辉·环球广场、星座广场;华润万家步行15分钟就可以到达,盒马鲜生、徐记海鲜、海底捞、麦当劳、奥斯卡等,步行5分钟就可以享受,满足生活所需。
楼盘介绍
碧桂园云顶承袭大曲江时代发展机遇,以航天基地潜力为依托项目产品规划有平层住宅、商业等产品,配套规划品牌幼儿园及中学。一期占地面积约103亩,总建筑面积约35.8万㎡,住宅容积率为3.476,首期开发户数约1171户。

云顶择址航天新城门户,曲江高地外延,享受双板块优质资源,打造城市中心的都市豪宅,坐拥全系成熟配套
户型分析图
143户型
部分户型因位置、楼层、朝向的影响,相同面积的户型存在区别,以现场公示及实际销售双方签订合同为准




【亮点罗列】
【143㎡户型整体格局】两梯三户,三室两厅两卫,整体结构方正,大三室设计,完全不同于刚需性4室,整个房间各个区域的舒适度大幅提升。
开间约10.9米,进深约10.55米
餐客厅一体设计,面积约为36平米,餐厨相连,方便您备餐用餐
厨房面积约6.6平米,可容纳两人同时操作。采用L型设计,洗切炒的动线,实用性更强。大玻璃窗约1.2米宽的设计让您在烹饪的同时尽情享受窗外的美景
客厅开间约4.35米,约7.4米阔景阳台,两边分别设置洗衣柜和储物柜,完美收纳各种洗涤用品和生活用品
主卧功能分区十分合理,约60 公分宽景飘窗
三开间朝南,约10.9米的采光面
190户型
部分户型因位置、楼层、朝向的影响,相同面积的户型存在区别,以现场公示及实际销售双方签订合同为准




【亮点罗列】
【190㎡户型整体格局】2梯2户大平层豪宅,户型设计四室两厅一厨三卫,该户型实现了东西两户皆端户。
宽约5.4米,进深约10.4米连续长厅,以接近56㎡的面积构建了一个聚合的、完整的、大尺度的多功能公共活动空间
U型厨房空间,约12㎡超大观景厨房
近30㎡的豪华主卧套房设置,头等舱版的居住体验
四开间朝南,约15.8米的采光面
南向三间卧室均配观景飘窗
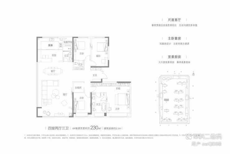
230户型
部分户型因位置、楼层、朝向的影响,相同面积的户型存在区别,以现场公示及实际销售双方签订合同为准



【碧桂园云顶】售楼处TEL:029-88777792【售楼中心】
了解最新优惠折扣价格——请拨打售楼处