西安「铁建越秀高新璞悦」
售楼处:029-88777792(营销中心)
售楼部地址:029-88777792(致电发送详情地址)
如需了解最新房源信息_在售房源价格_请拨打上方售楼部电话!

基本信息
楼盘名称:铁建越秀·高新璞悦
绿化率: 35%
容积率: 2.5
占地面积: 20633㎡
建筑面积: 67336.26㎡
总户数: 365户
当期户数: 365户
车位比: 1:1.1
车位: 408 (地上:20 个 地下:308个)
物业公司: 中铁建物业管理有限公司西安分公司
楼盘价格: 价格待定 周边房价解读
物业类型: 洋房 普通住宅
区域板块: 高新区
产权年限: 70年
项目特色: 改善好房
开发商: 西安铁晟越合房地产开发有限公司
楼盘地址: 科技路与鱼化三路交汇向南200米
国央企联合打造
高新区黄金中轴科技路板块海?岛度假式四代洋房社区
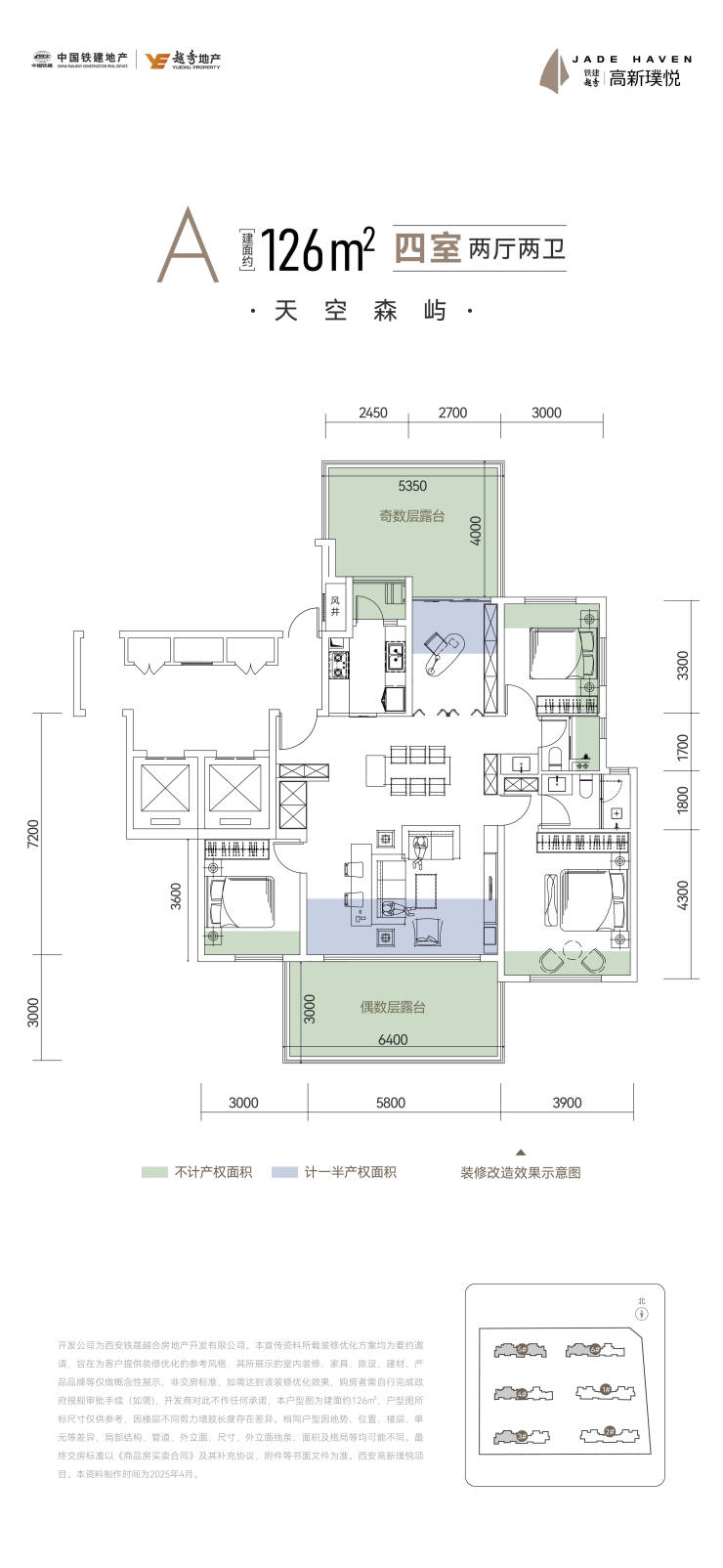
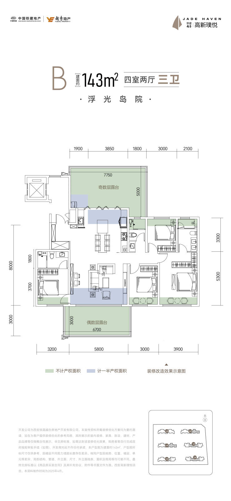
项目面积125四房/143(洋房)
超大得房率
计划五月开盘,明年交付
143洋房户型,四房两厅三卫
【铁建越秀高新璞悦】售楼处TEL:029-88777792【售楼中心】
了解最新优惠折扣价格——请拨打售楼处