西安「大华·锦绣年华」
售楼处:029-68866626(营销中心)
售楼部地址:029-68866626(致电发送详情地址)
基本信息
绿化率: 35%
容积率: 2.79
占地面积: 77.403 亩
建筑面积: 198558.84㎡
总户数: 928户
车位: 1601个
楼盘价格: 价格待定 周边房价解读
物业类型: 普通住宅
区域板块: 长安
产权年限: 70年
开发商: 大华集团西安华鑫置业有限公司
楼盘地址: 航天区雁岭路与星苔路交汇东北角
区域
三区交汇双轴核芯抢占曲江共建风
雄踞国家级开发区航天新城核芯腹地,同时毗邻定位“千亿级数字文化产业集群园区”的曲江长安共建区,既可享受曲江及航天城醇熟配套资源,又兼得长安、曲江、航天三区融合发展红利。
航天枢纽与城南共未来
作为全国唯一以航天产业为特色的国家级开发区,航天新城毗邻曲江新区,向西直达高新,已发展为全市经济增速、人均GDP第的开发区,航天基地高精尖产业密布,聚集了8家“国家队”和40多家商业航天企业,京东、荣耀、阿里巴巴等产业园名企总部汇聚,航天城聚势腾飞飞,进阶城南高价值版图。
生态宜居珍壤世界一流康居新城
依托航天、新能源等主导产业奠定发展基础的同时,航天新城实现了人口的导入。教育、交通、公园、商业等城市配套密集落地,在建设国家中心城市的时代步伐之下,正向打造世界一流休闲康居新城的目标迈进。
以海派精致主张绘制风范住区,将社区每个触点植入美学与秩序的考量,从铝板玻璃幕墙公建立面到“星级酒店式归家大堂--入户双大堂--电梯外玄关”三重递进式归家礼序,复刻登堂入室的尊荣,集萃奢华酒店设计风格,时刻酝酿生活仪式感。
高定大师会所锦绣层峯之境
精神场域与文化内涵并重,呈敬时代之上的奢居向往。锦绣年华作为锦绣系升级之作,深研菁英名仕社交品味与居住需求,臻筑大师高定双重会所--约2000m四季酒店式私享会所,涵盖茶室、瑜伽室、养心书吧、私宴厅等圈层服务体系,营造静谧奢享场域;楼宇架空层交互式泛会所,为全龄家庭提供乐活空间,构建多元社交休闲场。
迭代空中院墅心灵悅已之境
为航天人居赋新,大华·锦绣年华敬献纯改善四代宅住区,定制自在于心的锦绣空间,户户空中院墅级奢享,提升人与自然的交互性和居住空间的舒适性;部分户型可实现超100%得房率,超越预期的大民度居家空间,更具获得感和延展性。
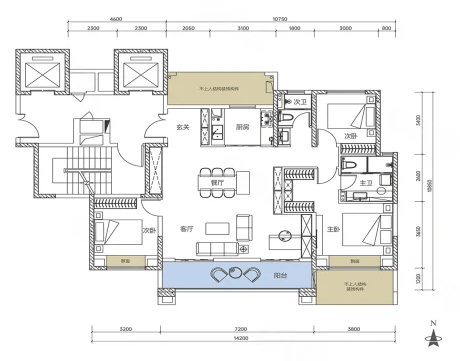
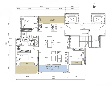
户型展示:




【大华·锦绣年华】售楼处TEL:029-68866626【售楼中心】
了解最新优惠折扣价格——请拨打售楼处