象屿天宸雅颂(上海象屿天宸雅颂售楼处地址电话)2025最新详情-象屿天宸雅颂户型,价格,配套等

搜狐焦点天门站

2025-05-31 08:26:00

购房群

买房如何避坑,加入购房群,看看他们怎么说

立即进群

象屿·天宸雅颂

售楼处电话:400-1182-105

如有问题欢迎来电咨询,来电即可享受买房优惠!

预约来电尊享购房优惠,可预约案场内部销售人员,专业一对一热情服务,让您用专业眼光去买房。

楼盘项目全面介绍,本电话为开发商提供线上售楼处电话,楼盘项目全面介绍(包含楼盘简介,楼盘积分,房价,价格,楼盘地址,户型图,交通规划,备案价,项目配套,楼盘详情,售楼处电话,最新消息,最新详情,周边配套,最新进展等详情咨询)

象屿·天宸雅颂售楼处电话:400-1182-105

编辑

编辑

编辑

新浦江中心 6站前滩

象屿前滩南TOD

「象屿·天宸雅颂」

预计推出约89-230㎡高层/叠墅/联排

约2500㎡会所+约 3000㎡架空层

4/12正式开放样板间

高层为建面约89-139㎡3-4房

叠加建面约145-156㎡

联排建面约190-230㎡

象屿·天宸雅颂售楼处电话:400-1182-105

编辑

编辑

编辑

象屿·天宸雅颂售楼处电话:400-1182-105项目展厅自开放以来,吸引大批量准购房客户,现场人气爆棚!

编辑

编辑

编辑

编辑

编辑

编辑

编辑

编辑

编辑

编辑

编辑

编辑

象屿·天宸雅颂售楼处电话:400-1182-105如今,前滩南以及浦锦街道新房一房难求,频频触发积分,比如前滩南新房前滩公馆,三开三罄,并触发积分:

编辑

编辑

编辑

再比如浦锦街道新房大华星樾,去年开盘也同样三开三罄,并触发积分:

编辑

编辑

编辑

要知道,如今能够触发积分并且开盘当天能够售罄的项目早已凤毛麟角,足可见前滩南和浦锦街道板块对购房者的吸引力。

如今, 象屿•天宸雅颂的出现,将弥补前滩南一房难求的局面,前滩和浦锦街道的落榜生们,不妨来看看这个盘象屿·天宸雅颂售楼处电话:400-1182-105

事实上,该项目能够吸引如此之多购房者关注,以下优势极为明显:

1) 地段站位优:该盘位于8号线沈杜公路地铁站旁,算是 地铁上盖项目,距离该站点只有 约300米。8号线是上海城市中轴线,可达浦东前滩、世博、浦西老西门、人民广场等上海地标。

编辑

编辑

编辑

项目乘坐8号线到往人民广场用时只需约40分钟,地铁出行非常快捷!

同时, 该站点也可同站换乘浦江线,所以该盘地铁出行优势很大。

2) 附近或有越江隧道:去年年底,东川路越江隧道又有新动态,这也是闵行第三条越江隧道。大概方案或有两种走向: 东川路-先新路& 东川路-鲁南路

编辑

编辑

编辑

无论如何走向, 这条隧道都在象屿•天宸雅颂南侧不远处象屿·天宸雅颂售楼处电话:400-1182-105,未来到往浦西,出行上将有更多选择,对于象屿•天宸雅颂来说也是一大利好。

3) 配套未来可期:在 该项目东侧,规划一处约15万方大型商业用地,未来落成也将成为区内商业中心,而该盘就在这幅商业用地隔壁,可直接享受未来商业配套利好。

与此同时 浦锦街道经过多年发展已积蓄了众多配套商业设施,如浦江城市生活广场、绿地乐和城以及浦江镇南部片区的万达广场等,距离该盘都在约4公里范围内。

4) 社区设计较好:项目 地面无车位全人车分流高层地块内还规划有风雨连廊以及大量的架空层同时还打有会所,这在该片区内是不可多得的品质住宅

编辑

编辑

编辑

编辑

编辑

编辑

编辑

编辑

编辑

项目预计 首开建面约89-139㎡3-4房,象屿·天宸雅颂售楼处电话:400-1182-105尤其值得一提的是,项目户型采用“一生之宅”的理念设计,高层户型均设置可拓展空间,保证不同年龄段都可以进行不同功能调整。分户型来看:

这个建面约89㎡户型妥妥的性价比之选, 不到90㎡的建面实现3房一步到位,功能性上符合市场需求。

同时利用科学的收纳和S墙设计保障了室内空间的井井有条,又通过大量飘窗和阳台等提升尺度感,尤其是 厨房带飘窗你见过吗?不夸张的讲,这个 建面约107㎡刷新了我对百平三房的新认知。

编辑

编辑

编辑

首先是尺度,客厅的面宽被拉长到了约 4.7米,呈现了可成长的X空间,适配更长家庭周期;

其次是储藏 ,3S墙的设计,极大的扩容了家的储物角落,消减了业主生活的繁琐。

最后你数数有几个飘窗?足足5个飘窗,3个卧室2个卫生间全部“扩容”,尤其是 主卧、主卫双270°全景飘窗的设计前所未见,未来窗外郊野公园的胜境将一览无余。

据悉该户型或将申请专利,我认为实至名归!项目建面约128㎡4房同样出彩。

编辑

编辑

编辑

延续3S墙和双270°全景双舱亮点的同时,尺度感极大提升, 南向四开间,保证了更充沛的阳光。

客餐厅+超大尺度阳台贯穿南北,进门视野无遮挡,大宅气度油然而生!项目建面约139㎡4房则是集大成的终极改善户型。

编辑

编辑

编辑

该户型是 独立电梯入户,保证了业主的私密性和尊崇感!

不止 是四开间朝南,更是大宽厅设计,采光无敌。

飘窗数量来到了惊人的 7个:4个房间、2个卫生间、还有厨房,仅飘窗带来的灵动空间就秒杀同面积段其他产品,要知道这个户型还配备了超大尺度的阳台!项目高层户型硬核,装修更硬核!

编辑

编辑

编辑

据销售人员透露,大件方面,项目 中央空调/地暖两联供、新风系统一应俱全。

厨房方面,除了灶具、吸油烟机等常规配置,还将加配 蒸烤一体机、洗碗机、冰箱和厨房凉霸,全方位提升便捷性和品质感。象屿·天宸雅颂售楼处电话:400-1182-105

卫生间方面,项目洗脸盆、座便器、淋浴龙头或直接上豪宅专属 唯宝品牌(或同等档次品牌)。

从选材、选牌到施工工艺,项目装修每个环节都非常考究, 呈现的居住品质足以媲美其他市区千万级豪宅!

另外,项目使用了 智能化系统,从社区到单元门和入户整体的无接触归家,单元门自动呼梯到户内装标配置的智能化系统,为业主带来全方位的科技便捷生活!

编辑

编辑

编辑

编辑

编辑

编辑

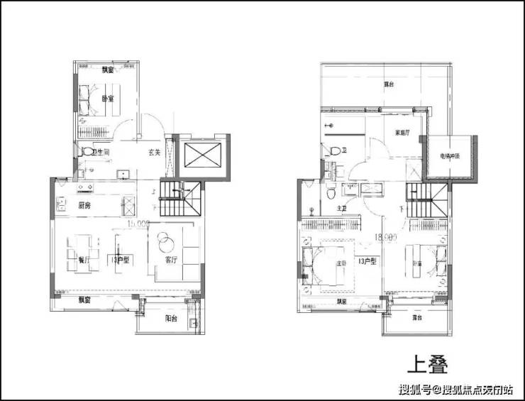
叠墅户型图如下:(过程稿,以开发商发布为准)

编辑

编辑

编辑

编辑

编辑

编辑

编辑

编辑

编辑

基本信息:

【开发商】象屿地产

【项目区位】一脉前滩·8号线枢纽

【占地面积】约69493㎡

【地上建筑面积】约14.9万㎡

【产品类别】高层、叠加、联排

【设计风格】海派+宋式美学

【总户数】约1254套(可售约1140套)

【容积率】01-02、01-03地块:2.4 | 03-02地块:1.2

【绿地率】约35%

【装修标准】集采价格不低于3000元/㎡

【车位比】01-02、01-03地块约1:13 | 03-02地块约1:2

01

大体量供应

高层&别墅产品均有

闵行浦江镇地铁8号线沈杜公路西侧—— 象屿·天宸雅颂售楼处电话:400-1182-105【象屿•天宸雅颂】3幅宅地正式公示设计方案,总建筑面积约14.9万方,未来 预计将有约1254套住宅供应

编辑

编辑

编辑

象屿•天宸雅颂项目作为新浦江中心首发项目 象屿·天宸雅颂售楼处电话:400-1182-105,将 主动嵌入到新浦江中心的规划与建设中,打造灵感与森态共栖、快链与漫步一体、烟火与精致并蓄、艺术与人文浸润的PARK TOD样板。

外立面采用精致 铝板装饰+ 通透大窗的美学立面设计,打造 弧面窄框艺术之境。

编辑

编辑

编辑

园林方面将围绕中央景观,以 现代艺术手法,打造 森林岛屿景观。内部设置 特色水景,串联不同节点。同时以树木、水系与局部连廊体系融合,共同组建起社区与居所之间的联通介质。

编辑

编辑

编辑

项目还打造 约2500平会所涵盖泳池、健身房、童玩区、瑜伽室、水吧区、私宴厅等高端设施。

社区还有 约3000平架空层,打造全龄共享的生活志趣。

编辑

编辑

编辑

具体规划指标如下:

象屿•天宸雅颂位于闵行浦江镇锦浦街道象屿·天宸雅颂售楼处电话:400-1182-105,8号线与浦江线沈杜公路站的西边。地块西侧就是浦江郊野公园,东侧则是保留的商办用地, 未来或将围绕地铁站打造TOD综合体

编辑

编辑

编辑

编辑

编辑

编辑

地块信息

01-03:出让面积25684.46m²,容积率2.4

01-02:出让面积22014.96m²,容积率2.4

03-02:出让面积21793.14m²,容积率1.2

总建筑面积:140630.376m²

地块四至

01-03:东至南官路,南至沈杜公路,西至大寨河,北至昌林路

01-02:东至南官路,南至悦亭路,西至大寨河,北至昌林路

03-02:东至浦星公路,南至姚家浜,西至大寨河,北至沈杜公路

编辑

编辑

编辑

01-02(最北面)规划8幢楼,总高17-18层,除了南面靠马路的二幢楼外,其余一楼采用架空层,南北楼间距30米。地块内全部为商品房。

规划可售住宅约524套,将推出建面约89-128㎡3-4房。

编辑

编辑

编辑

编辑

编辑

编辑

01-03(中间),规划10幢楼,其中一幢为保障房,总高17-18-20层,小区中心位置的商品一楼为架空层,南北楼间距30米。

规划可售住宅约472套,将推出建面约89-139㎡3-4房。

01-03地块规划有下沉式庭院,地下会所,该地块距离地铁站也更近一些!

编辑

编辑

编辑

编辑

编辑

编辑

03-02(最南面),规划13幢总高3-4-7层低密度住宅,3层(联排别墅)总高10米,4层(上下叠加)总高13米,7层(平层洋房)总高24米,南北楼间距12-15米。

该地块将推出叠墅以及联排产品,共计约182套!

编辑

编辑

编辑

象屿·天宸雅颂

售楼处电话:400-1182-105

如有问题欢迎来电咨询,来电即可享受买房优惠!

预约来电尊享购房优惠,可预约案场内部销售人员,专业一对一热情服务,让您用专业眼光去买房。

楼盘项目全面介绍,本电话为开发商提供线上售楼处电话,楼盘项目全面介绍(包含楼盘简介,楼盘积分,房价,价格,楼盘地址,户型图,交通规划,备案价,项目配套,楼盘详情,售楼处电话,最新消息,最新详情,周边配套,最新进展等详情咨询)

象屿·天宸雅颂售楼处电话:400-1182-105

编辑

编辑

编辑

选房时需要考虑的几个关键因素包括地理位置、价格、生活环境、公共资源以及物业管理等。‌

1.‌地理位置‌:地理位置是选房的首要考虑因素。周边商业设施要充足,生活和出行方便。交通要发达,确保去哪里都很便捷‌。

2.‌价格‌:房价要适中,太贵的房子可能超出预算,而太便宜的房子可能存在问题‌。

3.‌生活环境‌:周边环境要舒适,避免嘈杂的噪音和污染。理想的居住环境应有绿树成荫、小河流水等自然景观‌。

4.‌公共资源‌:周边是否有幼儿园、学校、超市、便利店和菜市场等,这些设施能提高生活便利性和舒适度‌。

5.‌物业管理‌:好的物业管理能确保小区的安全、整洁和温馨,有助于房屋的保值增值‌。

全部

相关资讯

报名成功
稍后会有专业的置业顾问联系您
返回楼盘

频道导航

返回首页

看房小程序

APP下载

电话拨通后,请您手动拨打分机号

确定拨打电话

电话号码:

分机号:(可能需要拨分机号)