象屿天宸雅颂-(售楼处地址电话)最新详情-2025最新房价+楼盘详情+户型+配套

搜狐焦点天门站

2025-06-22 11:33:00

购房群

买房如何避坑,加入购房群,看看他们怎么说

立即进群

「象屿天宸雅颂」售楼处官方预约热线:400-1182-105(欢迎致电)【官方认证】

「象屿天宸雅颂」售楼处电话:400-1182-105(欢迎致电)【官方认证】

「象屿天宸雅颂」营销中心电话:400-1182-105(欢迎致电)【官方认证】

编辑

一脉前滩·8号线枢纽·全臻装公园墅区

「象屿·天宸雅颂」

首开少量房源热销中

建面约88-139㎡3-4房

均价60501元/㎡

二批次房源加推在即

低密叠墅&宋风联排后期待加推

看房找我还有独家优惠

编辑

「象屿天宸雅颂」售楼处电话:400-1182-105(欢迎致电)【官方认证】

2024年10月25日,象屿地产以410639万元竞得 闵行区浦江镇MHPO-1316单元01-03、01-02、03-02地块,成交楼面价29200元/㎡, 住宅部分装修标准不低于3000元/㎡!

编辑

「象屿天宸雅颂」售楼处电话:400-1182-105(欢迎致电)【官方认证】

项目共计由3幅地块组成,目前设计方案均已公示:

01-02地块:拟建8栋17-18F高层住宅以及若干社区配套用房,规划可售住宅约524套,将推出建面约89-128㎡3-4房;

01-03地块:拟建9栋17-18F高层住宅、1栋20F保障房以及若干社区配套用房,规划可售住宅约472套,将推出建面约89-140㎡3-4房;

同时01-03地块规划有下沉式庭院,地下会所,该地块距离地铁站也更近一些!

「象屿天宸雅颂」售楼处电话:400-1182-105(欢迎致电)【官方认证】

高层除140㎡户型为两梯两户以外,其余全部为两梯四户,中间套带连廊!

03-02地块:拟建8栋4-7F多层住宅、5栋3F低层住宅以及若干社区配套用房,将推出叠墅以及联排产品,共计约182套!

编辑

「象屿天宸雅颂」售楼处电话:400-1182-105(欢迎致电)【官方认证】

编辑

「象屿天宸雅颂」售楼处电话:400-1182-105(欢迎致电)【官方认证】

编辑

「象屿天宸雅颂」售楼处电话:400-1182-105(欢迎致电)【官方认证】

首开房源↓

编辑

「象屿天宸雅颂」售楼处电话:400-1182-105(欢迎致电)【官方认证】

高层户型鉴赏↓

编辑

编辑

「象屿天宸雅颂」售楼处电话:400-1182-105(欢迎致电)【官方认证】

编辑

编辑

「象屿天宸雅颂」售楼处电话:400-1182-105(欢迎致电)【官方认证】

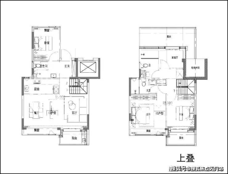
叠墅户型鉴赏↓

(过程稿,仅供参考)

编辑

编辑

「象屿天宸雅颂」售楼处电话:400-1182-105(欢迎致电)【官方认证】

编辑

板块配套

编辑

「象屿天宸雅颂」售楼处电话:400-1182-105(欢迎致电)【官方认证】

编辑

「象屿天宸雅颂」售楼处电话:400-1182-105(欢迎致电)【官方认证】

编辑

「象屿天宸雅颂」售楼处电话:400-1182-105(欢迎致电)【官方认证】

交通配套

项目距离8号线沈杜公路站步行约350-600米左右,可快速直达前滩、陆家嘴等核心区域,也算是项目一大卖点;通过浦星公路可直接上南北高架,自驾出行也十分便捷!

编辑

「象屿天宸雅颂」售楼处电话:400-1182-105(欢迎致电)【官方认证】

商业配套

项目高层东侧规划约15万方的商业,该商业地块应于住宅一并打包出让,共同组成真正的TOD项目,但目前做了拆分!

另外距离项目约3.3公里有浦江城市生活广场、绿地乐和城,约3.9公里有万达广场、4.4公里有浦江欢乐颂等商业!

编辑

「象屿天宸雅颂」售楼处电话:400-1182-105(欢迎致电)【官方认证】

教育资源

编辑

「象屿天宸雅颂」售楼处电话:400-1182-105(欢迎致电)【官方认证】

医疗资源

距离项目约4公里有仁济医院南院以及复旦大学附属眼耳鼻喉科医院!

编辑

生态环境

项目周边被浦江郊野公园环绕,低密宜居!

编辑

「象屿天宸雅颂」售楼处电话:400-1182-105(欢迎致电)【官方认证】

看房找我,底价购房+独家优惠

选房时需要考虑的几个关键因素包括地理位置、价格、生活环境、公共资源以及物业管理等。

1.地理位置:地理位置是选房的首要考虑因素。周边商业设施要充足,生活和出行方便。交通要发达,确保去哪里都很便捷。

2.价格:房价要适中,太贵的房子可能超出预算,而太便宜的房子可能存在问题。

3.生活环境:周边环境要舒适,避免嘈杂的噪音和污染。理想的居住环境应有绿树成荫、小河流水等自然景观。

4.公共资源:周边是否有幼儿园、学校、超市、便利店和菜市场等,这些设施能提高生活便利性和舒适度。

5.物业管理:好的物业管理能确保小区的安全、整洁和温馨,有助于房屋的保值增值。

全部

相关资讯

报名成功
稍后会有专业的置业顾问联系您
返回楼盘

频道导航

返回首页

看房小程序

APP下载

电话拨通后,请您手动拨打分机号

确定拨打电话

电话号码:

分机号:(可能需要拨分机号)