华发仁恒苏河世纪
华发仁恒苏河世纪售楼处电话:400-118-3159(已认证)
华发仁恒苏河世纪营销中心热线:400-118-3159(欢迎致电)
华发仁恒苏河世纪售楼处预约电话:400-118-3159☎☎☎如有问题可来电咨询,预约销售专员,一对一为您服务!
LUXURY HOUSE
在售详情
静安苏河湾 内环内
【华发仁恒苏河世纪】
仅剩6套房源
建面约498㎡大4房
总价7000万~7360万
可实地看房
—— 恭迎品鉴 ——
华发仁恒苏河世纪售楼处电话:400-118-3159(已认证)
华发仁恒苏河世纪营销中心热线:400-118-3159(欢迎致电)
华发仁恒苏河世纪售楼处预约电话:400-118-3159☎☎☎如有问题可来电咨询,预约销售专员,一对一为您服务!
↓

点击输入图片描述(最多30字)
项目仅接受预约参观

点击输入图片描述(最多30字)
项目首批房源于2022年7月首开入市,推出三栋住宅,均价13.3万/㎡,入围分68.8分。时隔两年多,项目第二批房源已入市!华发仁恒苏河世纪售楼处电话:400-118-3159(已认证)
第二批项目加推的是3#、6#两栋住宅,共44套。主力建面102-245㎡3-4房,另有6套大平层和2套复式。具体如下:
16套约102㎡3房
20套约245㎡4房
6套约498㎡大平层
2套约480㎡复式

点击输入图片描述(最多30字)

点击输入图片描述(最多30字)
(过程稿仅供参考,最终以实际为准)

点击输入图片描述(最多30字)
▲ 建面约102㎡3房户型 已售完

点击输入图片描述(最多30字)
▲ 建面约245㎡3房户型 已售完

点击输入图片描述(最多30字)
▲ 建面约480㎡复式户型

点击输入图片描述(最多30字)
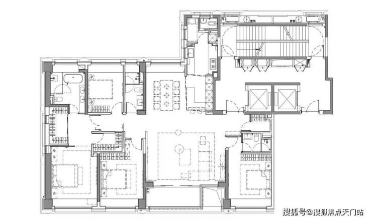
▲ 建面约498㎡大平层户型

点击输入图片描述(最多30字)

点击输入图片描述(最多30字)
▲ 框选区域为在售房源
1501、1701已售

点击输入图片描述(最多30字)

点击输入图片描述(最多30字)
项目地处静安区苏河湾板块,曲阜西路与晋元路交汇处,南接苏州河,东邻爱国主义教育基地四行仓库。项目属于内环内核心区域,距离南京东路及人广商圈900米,8/12号线曲阜路地铁站距项目仅200米,一公里内汇聚城市生活精萃。
项目占地2.8万方,集品质住宅、精品商业、文化办公为一体的高端综合体,整体分为南北两个地块,北侧为纯住宅社区,南侧为商办综合体。

点击输入图片描述(最多30字)

点击输入图片描述(最多30字)
【楼盘基本信息】
区位板块:静安区苏河湾
建筑面积:住宅部分约4.2万方,商业、文化及办公部分约3.6万方。
绿地率:35%
容积率:3.0
住宅产品:1幢26层公寓、1幢8层公寓
保障房:1幢9层公寓
总户数:392套
车位配比:约1:1.2
主力户型:建筑面积约245㎡-480㎡高层产品
交付标准:精装

点击输入图片描述(最多30字)
华发仁恒苏河世纪售楼处电话:400-118-3159(已认证)

点击输入图片描述(最多30字)
静安内环核心 远瞻烫金热土
项目地处静安苏河湾核心区位,南侧即为苏州河,属于上海中心板块,新静安“一轴三带”战略中的重要一环,更有国家级战略规划加持。资料来源于:《苏州河沿岸地区建设规划(2018—2035)》华发仁恒苏河世纪售楼处电话:400-118-3159(已认证)苏州河畔CAZ 世界级宜居水岸
苏州河沿岸定位为特大城市宜居生活的典型示范区,享有比肩世界的滨水区文化水岸。约6.3公里滨河步道,约21万方滨河开放空间,全球卓越河岸中央活动区。资料来源于:《苏州河沿岸地区建设规划(2018—2035)》

点击输入图片描述(最多30字)

点击输入图片描述(最多30字)
集萃都心万象 优质资源环伺
商业资源:近在咫尺的市区成熟生活配套,约百万方摩登商业环伺。大悦城、人民广场、南京东路商圈均在直线距离一公里范围内。华发仁恒苏河世纪售楼处电话:400-118-3159(已认证)

点击输入图片描述(最多30字)
交通资源:项目向东直线距离约200米为轨交8、12号线曲阜路站;南北高架及西藏中路城市主干道分别在项目东西两侧,可便利的通达全城;北横通道主动脉已通车,畅达上海各大中心枢纽。华发仁恒苏河世纪售楼处电话:400-118-3159(已认证)

点击输入图片描述(最多30字)
生态资源:项目直线距离一公里内拥享静安苏河中央公园,同时紧邻南北两块绿地公园,而南侧便是苏州河世界级滨水景观带,滨水而居。

点击输入图片描述(最多30字)
周边教育资源:周边有棋院小学、向东中学;约1km范围内有良好师资的育才中学及格致中学。(教育设施与社区间的招生对应关系由当地政府教育主管部门确定,开发商对此无法控制。)华发仁恒苏河世纪售楼处电话:400-118-3159(已认证)

点击输入图片描述(最多30字)
医疗配套:周边有静安区北站医院(二甲医院)、上海健桥医院、上海长征医院等医院。华发仁恒苏河世纪售楼处电话:400-118-3159(已认证)

点击输入图片描述(最多30字)
红色地标四行仓库 人文贵脉之地
项目地处600亿+上海最大城市文保赋新石库门商业街区,尽揽河岸约50万平方米历史保护建筑。项目东侧为著名历史保护建筑四行仓库,同时周边有OCAT当代艺术馆、UCCA尤伦斯美术馆等,上海城市简史的缩影。华发仁恒苏河世纪售楼处电话:400-118-3159(已认证)

点击输入图片描述(最多30字)

点击输入图片描述(最多30字)
华发-品质中国 匠心筑家
华发股份,《财富》“中国500强”企业。2014年,华发股份首入上海,10年来上海公司打造了华发华润·静安府、华发四季、华发公馆等23座标杆力作。其中华发华润·静安府,连续两年单盘销售破百亿,上海排名第一( 排名来源于:2018年1-12月中国典型房企但项目销售金额TOP100)。华发开发楼盘多次获得国家级房地产奖项——“广厦奖”。且陆续获得詹天佑奖优秀住宅小区金奖、金牌奖等国内国际重量级奖项。华发作为国企担当,始终坚持品质中国、匠心筑家,不断打磨产品,更新升级华发优+产品体系。华发仁恒苏河世纪售楼处电话:400-118-3159(已认证)
仁恒置地-上海国际社区开拓者
1993年,仁恒置地进驻上海,31年来共情国际上海,用土地与建筑成就了一系列具有仁恒特色的精装国际社区营造体系,在业内已成为高品质的象征,以六代匠心产品系持续领跑国内的高端地产市场。

点击输入图片描述(最多30字)
城心综合体
项目是一个完整的都市滨水生活综合体,集办公、住宅、艺术、商场于一体,焕新区域繁华界面,咫尺“邻”距离都心生活。华发仁恒苏河世纪售楼处电话:400-118-3159(已认证)

点击输入图片描述(最多30字)

点击输入图片描述(最多30字)
一线滨水景观
项目毗邻苏州河畔,局部以铝板和玻璃幕墙打造IMAX级别天幕,以现代简约风、超大窗墙比赋予建筑独特的城市气质,实现空间视野与采光的优选。可享头排无遮挡直面水岸公园,饱览无敌河景与城心的华丽天际线。华发仁恒苏河世纪售楼处电话:400-118-3159(已认证)

点击输入图片描述(最多30字)
大师级规划
项目的商业部分由美国的SOM建筑设计事务所(曾设计金茂大厦、迪拜塔等世界级知名建筑)操刀,将打造成为苏州河城市活力地标,未来串联起苏河两岸文化与商业节点,成为与南京路、淮海路平行的又一条重要的城市中轴,有利于提升苏河湾的整体形象和气质,展示出苏州河独有的水道魅力。
建筑立面
现代建筑的先锋美学,局部以铝板和玻璃幕墙打造IMAX级别天幕,彰显高端现代简约风,超大窗墙比赋予建筑独特的城市气质,实现空间视野与采光的心仪之选。华发仁恒苏河世纪售楼处电话:400-118-3159(已认证)

点击输入图片描述(最多30字)

点击输入图片描述(最多30字)
华发仁恒苏河世纪售楼处电话:400-118-3159(已认证)

点击输入图片描述(最多30字)
▲ 项目效果图
LUXURY HOUSE
在售详情
静安苏河湾 内环内
【华发仁恒苏河世纪】
仅剩6套房源
建面约498㎡大4房
总价7000万~7360万
可实地看房
—— 恭迎品鉴 ——
华发仁恒苏河世纪售楼处电话:400-118-3159(已认证)
华发仁恒苏河世纪营销中心热线:400-118-3159(欢迎致电)
华发仁恒苏河世纪售楼处预约电话:400-118-3159☎☎☎如有问题可来电咨询,预约销售专员,一对一为您服务!