华润华发时代之城售楼处电话:400-8669-938

在上海,有这样一个现象级神盘:自2024年6月首开以来,截至2025年8月,已累计入市12次,次次热销。
它不仅是上海全市新房成交套数TOP1(2024年6月-2025年6月),单看叠墅产品成交量,它依然是全市同类型产品中的成交金额&成交面积&成交套数三冠王!这个项目就是位于嘉定南翔的「时代之城」!

(数据来源于克而瑞)
在这烫金地段之上,造一座约30万方的大城,实力如华润置地,也需拿出“硬功夫”。如今全新的二期实景示范区已开放,3万方的实景呈现,看完这个产品,我终于理解为什么它能做到一整年热销了:
因为它一直在“卷”的路上狂奔,这是我上海见过600万级别标准最高的示范区!
区别于传统的项目,时代之城越做越精致,上一个阶段的巨量MAX收纳体系,引领室内收纳的潮流,今年从卷公区、卷架空层、卷到大堂、再到扎实的产品,这一年里它像一座一直生长的大城,一步步在兑现,这样的基因,注定是领跑时代的项目!

实景图,仅供参考
TOP级别的地段+全能级的产品力
「时代之城」
正在热销中
建面约92-177㎡高层&叠墅
1 实景示范区
高品质硬核呈现 每一帧都是大片
在上海的购房者,都见识过华润置地震撼的造城手笔。
16年的大城华润·中央公园珠玉在前,称霸南翔品质标杆数十年。凭借着丰富的造成经验,23年与华发集团联合拿下的时代之城地块,旨在打造约30万方墅境国际社区“微缩城市”。
这15个月里面,呈现的3万方实景示范区,包含了约2000㎡的奢适会所+沿街配套;下沉式庭院与精装大堂;豪宅级的车库设计;社区内的夏荷池与约300米景观带......这座不断兑现的大城,迄今为止俘获了超1600组客户的心!
实景图,仅供参考
实景图,仅供参考
如今二期的雲墅实景示范区已开放,学长抽空去了一次现场,真切地感受到了它的变化。二期现场的状态可以用三个字概括:太惊艳!
实景图,仅供参考

实景图,仅供参考
从漫步式街区、国际建筑、实景园林,到多元架空层、高定精琢空间等,每一帧都是大片。接下来我将按照归家的动线,带大家沉浸式地体验一下——
首先映入眼帘的,是转角的一个步入式的大树会客厅,体现了“共享、打开”的设计理念,非常像安福路的街区,高低错落的韵味。老人可以在树下互相依偎,走走停停,亲密地交流谈话。

实景图,仅供参考
还有一个细节,凳子全部是纯石材,任何时间段温度都很适宜,可以随时就坐,体现出“以人为本”的细节。
接下来是千万级别的酒店式高奢门头打造,二期的门头甄选688块珍贵的白雪公主玉石,恢弘气派,除了门头,立面和中间的景观亭都沿用大量玉石,彼此之间不再具有割裂感,而是融合打通。
实景图,仅供参考
门口培育名贵树种——80年的红果冬青,寓意红红火火。

实景图,仅供参考
继续往里走,映入眼帘的是二期园林景观——绿野仙踪。它拥有5重立体园林、3大组团、7大森境花园,精心规划了盒中谧林、盒中丘谷、盒中花园、盒中森活等四大园林体系,仿佛一个蓝绿臻宝盒。

庭院中遍布着睡莲,从这里往出去像一幅画,高低层次的叠水景观,超大型的原石,还有私密的谈话空间,舒适惬意。
实景图,仅供参考

编辑
项目的架空层是看下来最让我惊喜的地方,它拥有健身、儿童、欢聚、阅读等7大功能空间,独树一帜——
首先,区别于传统的归家大堂是一扇简单的门,时代之城做了书吧这样摩登先进的设计;其次,它针对不同年龄段的客户做了不同的分类,无论是老年人、儿童,都能够在这里找到生活的乐趣!
通过格子的打造,整个架空层做到“有开有合”。既能够融合自然,与自然进行亲密接触;也能安静下来,品茗一杯咖啡,静心思考。

实景图,仅供参考
约200平左右的归家大堂做了书吧、落客区、咖啡吧,颇有现代摩登风格的感觉。
实景图,仅供参考
开敞式休闲景观区,则以“⽆界⾃然”为线索,临景互动区设置阶梯式观景台,让阳光清风、自然光然,俯拾皆是。

编辑
实景图,仅供参考
有一个要特别提及的空间,漫咖社,坐在这里,品茗一杯咖啡,看着窗外庭院水景,特别适合打卡拍照,放空冥想,度过悠闲的下午。

编辑
实景图,仅供参考
实景图,仅供参考

编辑
健身区域,业主在楼下就能满足基础的健身需求.....设施丰富的儿童区,下班之余,可以陪着孩子一起嬉戏游玩,妥妥的“别人家的会所”。

编辑
实景图,仅供参考

编辑
实景图,仅供参考
此外架空层还有很多细节,比如整体的挑高整整有5.2m,妥妥的豪宅级别配置;地面拼花都是纯手工拼接,摩登现代,打造出移步异景的归家仪式感。在600万级的项目中,真真实实属于超配!
最后讲讲项目的建筑立面,它采用了爱马仕同款博斯普鲁斯绿,这种绿色在中国古文化里面名为黛青色,很好地承接了南翔这个板块的文化底蕴。
叠墅外立面陶板+石材,高层是同色系仿水磨石铝板,不仅成本比普通铝板高,整个颜色也非常现代摩登,符合年轻人的潮流审美。

编辑
实景图,仅供参考

编辑
实景图,仅供参考
“眼见为实”的产品呈现方式,背后彰显的是华润置地强大的兑现力。如此之用心,对于之前入住的业主也注入一剂“强心针”,是妥妥的幸福。
2 92-177㎡全纬度的户型设计
匹配菁英人士的需求
回到产品上,在600-800万级中,各方面都称心如意的产品并不多,「时代之城」是其中最为全面的,产品力非常能打!去年它凭借着遥遥领先的室内收纳设计,引领了一股“卷室内”的潮流。
十一批次一共开放了五个样板间,让我们一一看下:
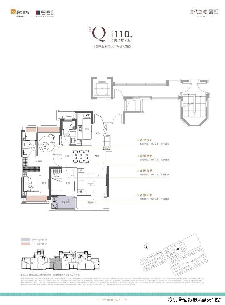
1、92-135㎡高层产品,刚需上车首选!
建面约110㎡的三房两厅两卫,非常适合年轻家庭上车,它的设计风格偏法式,符合年轻人审美。

编辑
实景图,仅供参考
南向双阳台,在原先一个阳台的基础上再加一个开敞阳台(仅计算一半阳台面积为建筑面积),实现客厅与次卧联通,不仅让得房率瞬间提升一个level,视野更敞亮!整体格局方正,南北通透,每个卧室大小宽裕,实现小家的超满足获得感!

编辑
户型图,仅供参考
收纳作为中小户型的一个痛点,在时代之城得到了完美解决,它几乎把小户型所有的收纳都搬进家里——
厨房超大柜体的收纳空间,包括调味拉篮、岛台双面收纳,将厨房空间直接扩容约80%,贴心的灶前龙头设计,开火时直接上方接水,非常灵活;
玄关S墙设计,同样包含MAX巨量收纳;创新性采用了钢琴键收纳,600万级的刚需项目中能享受大几千万的豪宅配置;
主卫的美妆冰箱、镜柜收纳、常用物品置物台,可以隐藏90%的卫浴物品......

编辑
实景图,仅供参考
同时,这个户型主力总价600万级起,很适合刚需家庭上车!
建面约120㎡的大三房做了一个u型厨房,餐桌可以容纳八人餐桌,双阳台配置+加上所有飘窗都是附赠面积,整体的实用面积可想而知。
S墙的设计,使得玄关和冰箱得到兼容,凹进去的部分放置冰箱,凸出的墙面做成了钢琴键收纳。

编辑
户型图,仅供参考
建面约135㎡的四房是项目的明星户型,几乎是一抢而空的状态,采光、视野非常敞亮,南北通透,双阳台还能看到窗外的中庭景观。
它的收纳亮点:钢琴键烤漆板,玄关处有一个八百库收纳,厨房扩容80%......800多万能买到这样的一个房子,哪怕是在市区买二手房也买不到这么多的赠送面积!

编辑
实景图,仅供参考

编辑
户型图,仅供参考
总结一下,高层户型可以说在同价位段中,很难再找到比它更出彩的户型了。南向双阳台+巨量收纳体系+超高水准的精装标准,几乎榨干每一寸空间,实用性与美观性都拉到了顶!
2、附赠面积超多的叠墅产品,包含地下室+阁楼
1000万级,挤一挤能在市区买个小三房,但是在时代之城,能享受到完全不一样的生活场景,有天有地有庭院,还有地下室的美好生活!
加上南翔比较宜居,离市区又很近,非常便利。学长很看好这里的叠墅产品:居住起来真的舒服!
1
建面约174㎡的下叠

编辑
户型图,仅供参考
下叠二期做了改动,一层拥有一个充足的采光面&超级全明的空间,即使是七八月份的上海也丝毫不会闷热潮湿。附赠宽绰地下室+公共绿地(实际交付为毛坯)闲暇时可以在院子里养鱼,种花等等。

编辑
实景图,仅供参考
地下室的两个夹层(作为生活场景示意),不仅赠送面积多,还是三面采光!挑高开阔,丝毫没有压抑感。

编辑
实景图,仅供参考
一楼,客厅到庭院是全景的落地门窗,夏日凉风习习,边套下叠还拥有全明餐厅。

编辑
实景图,仅供参考
主卧拥有270度环幕飘窗,视野和采光优越,配备了高奢卫生间,空间感、尊崇感拉到顶格。

编辑
实景图,仅供参考
下叠的总价段在1300-1600万左右,完全能容纳三代同堂的温馨的墅居生活,置业的终极目标,一步到位!
2
建面约178㎡的中平

编辑
户型图,仅供参考
中平户型以四开间朝南的IMAX级采光面,打造出堪比市区豪宅的尺度感。4房4飘窗2阳台的设计,配合双套房布局,一共有三个套房,让每个家庭成员都享有独立私密空间。
客厅+餐厅联通+南向双阳台,尺度感非常强。同时还配备了独立的家政间,约4.4个m³,约等于100个标准登机箱的空间!

编辑
实景图,仅供参考
玄关也是非常具有仪式感,包括厨房拥有超长的操作台面,同样也是做了满级收纳。
主卧套房,不仅有豪华卫浴,女王卫生间+双台盆,大尺度衣帽间,甚至书房、工作室空间就在边上,业主能体验无上的尊崇与私密。

编辑
实景图,仅供参考
中平的价格在1100-1300万左右,大平层的居住体验,媲美奢华酒店的感觉,妥妥秒杀市区拥挤又高密度的小三房了。
3
建面约170㎡的上叠

编辑
户型图,仅供参考
上叠产品创新采用南北双露台+南向双阳台布局,270度全景采光面让室内外空间完美融合。边套户型的1楼客餐厅和2楼主卧,更增设侧飘窗,将社区美景尽收眼底。
日常在露台barbecue、在阳台养养花、晒晒太阳好不惬意!阁楼还能做到大面积玻璃采光!
毫不夸张地说,「时代之城·雲墅」的户型设计,算得上嘉定“遥遥领先的TOP”户型!在这里,每个价位段的客户都能匹配到满意的产品。
样板间视频
3 无冕之王南翔
不仅宜居,更有不断爆发的潜力
最后来说一下南翔这个地段,很显然是非常宜居的,学长从2011年来到上海初识南翔,到2024年成为南翔业主,这十年间几乎跑遍上海买个角落,也更加偏爱这个舒适的板块!
南翔是上海市四大历史名镇之一,有着1500多年的悠久历史。历经千年变迁与发展,南翔镇成为一座兼具浓厚历史文化底蕴与充沛现代活力的新型城镇。
从2007年11号线开通激活板块,到嘉闵线规划落地实现“双轨驱动”;从环球乐园废墟蜕变为留云湖低密住区,再到华润置地等开发商以品质住宅重塑城市界面,它是少数集教育、交通、生态、商业等配套于一体的六边形战士!
时代之城占位的南翔板块云翔片区,承担南翔3.0时代转型升级的历史使命。
周边就是印象城、山姆会员店,包括好的教育资源,11号线&嘉闵线双轨交配置,十分宜居。可以说,600-800万级别的新房中,拥有TOP级别的配套!
区域内的二手房很坚挺。房龄超10年的次新小区华润中央公园,依旧能有6万+/平的挂牌价。可见区域内客户对好地段、对高品质住宅的认可。华润之于南翔,是相互成就的关系。
教育上,2025年6月30日,南翔教育资源迎来重磅升级!嘉定区教育高质量发展推进大会举行。
会上,嘉定区教育局与复旦大学附属中学签订合作办学协议,将在南翔镇合作举办复旦附嘉定学校,标志着嘉定区在引入优质教育资源、推动合作办学上迈出了坚实一步。

编辑

编辑
图源复旦大学官微
其次,在云翔板块落地的教育资源一直都是非常重磅的,像之前的世界外国语学校、世外教育附属嘉定云翔小学等,这片区域的教育资源是非常受重视的存在。(免责声明:以上教育资源整理仅代表楼盘与学校的距离,该房屋所在项目暂未划分学区,开发商不对项目交房后所属学区、学校做任何承诺。教育资源分配或学校/学区划分以及学校的具体招生规则等请以政府相关主管部门、教育机构公开的最新信息为准。)

编辑
交通上,时代之城所拥有的11号线+嘉闵线双轨通勤,距离地铁11号线陈翔公路站约900米,半小时就能到达徐家汇等市区核心腹地。包括静安寺、徐家汇、徐汇滨江、漕河泾、陆家嘴、新天地都在业主的生活圈内。

编辑
商业上,坐拥山姆会员店(与时代之城零距离)+印象城MEGA(34万方商业旗舰),形成“下楼即享山姆,步行直达印象城”的顶配体验。
这里的业主,未来吃完饭,家楼下就是大型的购物商超,散步消食购物轻轻松松。

最后展望一下未来图景:这个总规模约30万方的“微型城市”恰如区域发展的一个缩影——既有对品质生活的执着追求,又有对生态宜居的持续探索。将一切都浓缩到一个步行范围的闭环之中。
尤其是二期实景示范区的展现,更让众人惊艳了一把,美妙的大城生活跃然于眼前,值得憧憬!

编辑
华润华发时代之城售楼处电话:400-8669-938
