上海闵行象屿•天宸雅颂售楼处电话☎:400-118-3159售楼处,即将推出建面约89-230平方米的房源。新浦江中心首发的象屿前滩南TOD项目「象屿·天宸雅颂」即将推建面约89-140平方米的房源。高层预计建面约89-139平方米,3-4房叠加预计建面约145-156平方米。
象屿•天宸雅颂售楼处电话:400-118-3159
上海闵行象屿•天宸雅颂售楼处电话☎:400-118-3159 (预约看房热线)
象屿前滩南TOD项目案名发布——「象屿•天宸雅颂」今日开放展厅!建面约89-230㎡精装平层/叠墅/联排即将入市!
新浦江中心首发
象屿前滩南TOD项目
「象屿·天宸雅颂」
将推建面约89-140㎡房源
精装平层、低密叠墅、宋风联排
已经开放展厅!
售楼处预计3月底开放!
高层预计建面约89-139㎡3-4房
叠加预计建面约145-156㎡
联排预计建面约190-230㎡
上海闵行【象屿•天宸雅颂】
售楼处电话☎:400-118-3159 【售楼处预约热线】(一对一热情服务)
如有问题欢迎来电咨询,专业一对一热情服务,让您用专业眼光去买房。
户型图如下:(过程稿仅供参考,最终以实际为准)
「约89㎡ 3房2厅1卫」
象屿•天宸雅颂售楼处电话:400-118-3159
上海闵行象屿•天宸雅颂售楼处电话☎:400-118-3159 (预约看房热线)
编辑

「约107㎡ 3房2厅2卫」
编辑

「约107㎡ 3房2厅2卫」
编辑

「约128㎡ 3房2厅2卫」
编辑

象屿•天宸雅颂售楼处电话:400-118-3159
上海闵行象屿•天宸雅颂售楼处电话☎:400-118-3159 (预约看房热线)
「约140㎡ 4房2厅2卫」
编辑

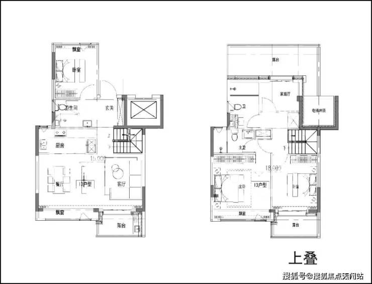
叠墅户型图如下:(过程稿,以开发商发布为准)
编辑

编辑

编辑

象屿•天宸雅颂售楼处电话:400-118-3159
上海闵行象屿•天宸雅颂售楼处电话☎:400-118-3159 (预约看房热线)
编辑

编辑

象屿•天宸雅颂售楼处电话:400-118-3159
上海闵行象屿•天宸雅颂售楼处电话☎:400-118-3159 (预约看房热线)
编辑

编辑

象屿•天宸雅颂售楼处电话:400-118-3159
上海闵行象屿•天宸雅颂售楼处电话☎:400-118-3159 (预约看房热线)
编辑

编辑

编辑

象屿•天宸雅颂售楼处电话:400-118-3159
上海闵行象屿•天宸雅颂售楼处电话☎:400-118-3159 (预约看房热线)
编辑

编辑

编辑

象屿•天宸雅颂售楼处电话:400-118-3159
上海闵行象屿•天宸雅颂售楼处电话☎:400-118-3159 (预约看房热线)
编辑

编辑

编辑

编辑

象屿•天宸雅颂售楼处电话:400-118-3159
上海闵行象屿•天宸雅颂售楼处电话☎:400-118-3159 (预约看房热线)
编辑

编辑

编辑

上海闵行【象屿•天宸雅颂】
售楼处电话☎:400-118-3159 【售楼处预约热线】(一对一热情服务)
如有问题欢迎来电咨询,专业一对一热情服务,让您用专业眼光去买房。
象屿•天宸雅颂售楼处电话:400-118-3159 打象屿•天宸雅颂售楼处电话☎400-118-3159 ✔✔✔