新江湾低密豪宅! 首开去化超90%!
「保利·珺园」
即将加推 约105-285㎡墅质洋房&叠拼&合院产品
售楼处官方预约热线:400-909-9938

上期均价117416元/㎡!
参观看房请提前线上预约!

2025年9月3日,杨浦新江湾E1-08A地块由保利发展与上海地产通过股权转让联合拿下。出让总价37亿元,成交楼面价5.89万元/㎡。

地块四至范围:东至E1-09规划公共绿地,西至江湾城路,南至E1-08E公共通道,北至E1-09规划公共绿地。
地块总用地面积约5.71万㎡,容积率1.1,限高约20米,地上总建筑面积约6.64万㎡,居住建筑面积约6.12万m²(商品房)。

根据流传出来的楼栋平面图来看,项目拟建9栋总高6层的洋房,9栋总高4层的叠墅和17栋联排以及相关的配套施设,总计可售房源约438套

地块本身就处于新江湾城湿地和水系包围之处,从小区的楼栋分布图来看,滨河的基本都是大面积的联排别墅产品,景观应该相当不错。
保利·珺园坐拥上海中心城区唯一原生湿地,这里是名副其实的沪上绿宝石与天然宜居生态秘境,天赋生态基底无可复制。约1.1超低容积率规划,让建筑与自然都拥有充足的"呼吸"留白。


3月31日,上海主城等了15年的1.1低密滨水墅邸——保利珺园迎来盛大开盘。 短短不到3小时,去化率高达90%,成交金额超17亿元!项目一举斩获2026年上海首开新盘去化套数TOP1,去化面积TOP1,去化金额TOP1 的“三冠王”的好成绩。




事实上,这股热潮并非无迹可寻。项目一经入市便迅速聚拢了全城目光,新政出台后热度更是节节攀升, 累计来访量强势突破3000+组。同时也以129%的认购率刷新2026年上海首开新盘的认购数!

最新消息!新江湾城1.1低密墅居「保利·珺园」 首开去化超90%!二批次加推建面约105-350m ²洋房/叠墅/联排;其中约105-125-140㎡6层 墅质洋房 (约238套);建面约160-170㎡4层 叠拼墅邸 (约116套);建面约190-215-260-350m²滨水联排(约84套);样板房开启线上预约!




一房一价表如下:






户型图如下




140平样板间照片如下








实景示范区








尤其是别墅产品,项目首开的联排楼王,单价约16.8万/m²,开盘当天火速成交,滨水墅居标杆,毋庸置疑!

没抢到的朋友也不要着急,项目二期即将加推,建面约200-285㎡滨水联排、167-180㎡叠拼墅邸、105-140㎡墅质洋房,全新样板间已经开放,大家抓紧关注起来!

约160-170 ㎡的叠墅户型图赏鉴


上叠起居层与露台相连,早晨的咖啡、午后的日光、傍晚的微风——露台让这些日常片段都有了更开阔的承载


实拍图


下叠:最大120㎡花园,将空间拓展到极致!



精装方面:从全球甄选的嘉格纳、博世、大金、杜拉维特、汉斯格雅等顶奢品牌到个性定制的三大定制体系,再到空间叙事革新和她享主义的女神八件套等六个维度,全场景升级!








保利·珺园「会呼吸的四代墅」样板间正式公开,用脑洞大开的创新咬合设计,实现了南向五面宽,全方位颠覆认知,全城瞩目。






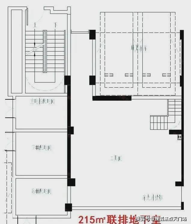
约215㎡的联排户型图赏鉴





保利珺园所占据的,正是这样一块15年一遇的、仅1.1容积率的低密滨水天赋恒产。这种"主城核心+极致低密"的绝版组合,意味着它在出生的那一刻起,就已经锁死了未来数十年的价值天花板。
面对如此珍罕的土地,保利摒弃了常规高低配的高周转做法,而是依循土地原生的水系肌理,极其奢侈地打造了西高东低的纯粹低密墅区格局。这种高阶的规划排布,不仅最大化地将滨水景观引入室内,更在物理空间上确保了每一户的采光权与绝对私密感。
在建筑表达上,深度萃取巴黎白马庄园(Cheval Blanc Paris)核心美学,同时融合上海花园饭店、和平饭店、张园石库门等东方海派建筑元素,以"仪式感、纯粹性、细节感"为核心,打造兼具国际风范与海派底蕴的建筑格调。

保利·珺园的社区景观以"两环二轴"为核心布局,带来上海罕见双下沉式庭院,并以东方庄园的世界表达为内核,萃取全球六座白马庄园高定度假灵感,将马尔代夫、兰德里、圣特罗佩、塞舌尔、圣巴特岛、巴黎等顶奢度假美学融于一园。
集仪式归家、社交会客、静谧阅读、亲子游乐、水岸度假、艺术观景于一体,让每一种生活功能,都成为东方语境下的世界庄园美学!




保利珺园以前瞻视野,构建"内-中-外"三重健康体系:内有24小时无感健康守护、中有主动式健康奢享珺CLUB、外有湿地双湾的天赋健康底色。

在珺CLUB,保利为新江湾定制出一座「全维健康中枢」,将冷疗舱、理疗池、高压氧舱等过去只存在于顶奢酒店和专业康养机构的配置,首次系统性引入豪宅社区。
上海首次将「全屋弥散氧系统」引入户内,珺园在叠加装标中设置了弥散氧,带来"全时段、全生命周期"健康守护的内在升级。富氧空气均匀覆盖居室,实现"无感知、全天候"守护,满足更深度的氧疗需求。
更有趣的是,每一户配置「AI健康戒指」,化身24小时健康管家。 实时监测心率、睡眠、压力、血氧等核心指标,让健康守护融入生活每一个瞬间。
保利珺园于约3300㎡的珺CLUB内,规划16大复合功能区,更以前瞻视野,匠造三大上海首创功能,将国际顶奢酒店的核心体验与私人艺术会所的专属格调,首次完整引入社区生活场景。

更具创新性的是X+1的空间设置:打破单一功能边界,让每一处场景都超越想象!

每一种功能都是1+1>2,每一处空间都不止所见、更超所期,真正以超前创新,重新定义顶豪生活的奢适尺度。

作为顺应新规打造的迭代产品,不仅实现了更高实得面积与更优通透采光,更以越级尺度与墅区质感,让购房者以洋房级的门槛,即可拥享纯粹低密墅境的居住体验。

新江湾是沪上传统豪宅区,毗邻五角场城市副中心。拥有9.45平方公里的原生湿地,以及约15万方的新江湾湿地公园,堪称上海自然生态的一块“绿宝石”。

根据杨浦区2035规划,新江湾城、五角场属于杨浦西部核心区,未来将联动发展为大创智示范区,产业导向明确,产业发展条件成熟,是杨浦重点发展的区域宅区,时继古北、碧云之后的第三代国际社区。

新江湾城社区整体功能以居住为主,南部市级副中心区域以商务办公、教育科研为主,总体形成“双点、四区、多轴、多点”的空间布局结构。
双心:江湾-五角场城市副中心及新江湾地区中心,构成商业、办公、文体娱乐中心。
四区:三个居住片区以及以复旦大学新校区展开的教育科研片区。

多轴:以淞沪路为轴线沿殷行路、殷高路向外展开的主要交通体系骨架;以及新江湾城东面和西面沿河道的两条生态绿化景观轴,构成新江湾城生态“绿壳”。
多点:若干邻里中心,布局于居住区内主要道路沿线。各邻里中心布局均结合生态湖和社区公园,既为公共活动设施提供良好景观,同时也使社区公园成为休闲和交往中心。

交通方面:项目直线距离10号线新江湾城站约1.1公里,无需换乘可直达五角场、南京东路、豫园等各大商圈。自驾上,项目经由淞沪路-黄兴路及逸仙高架路可连通内环,日常通勤动线流畅。

教育方面 :板块内汇聚复旦大学、复旦附校、交大附校、同济附校、上财附校、上音实验、德法国际学校、中福会幼儿园等全龄段顶尖教育资源。
商业方面 :合生汇、万达、百联、苏宁、国华、江湾里、悠方等大型商业环伺,充分满足消费需求。
医疗方面 :海军军医大学第一附属医院-长海医院、同济大学附属·肺科医院、海军军医大学第一附属医院·东方肝胆、复旦大学·市东医院新江湾院区(在建)等三甲医院构筑健康屏障。
新江湾低密豪宅「保利·珺园」约105-320㎡洋房/叠拼/合院,均价117416元/㎡!
售楼处官方预约热线:400-909-9938
