招商·林屿湖畔(招商·林屿湖畔)-2025年招商·林屿湖畔首页网站-招商·林屿湖畔楼盘详情-售楼处电话

搜狐焦点天门站

2025-09-04 18:04:00

购房群

买房如何避坑,加入购房群,看看他们怎么说

立即进群

招商林屿湖畔售楼处预约热线:400-1189-515

最新消息: 「招商林屿湖畔8月20号认购!首开 建面约122-145㎡房源!

⛩项目名称:「招商林屿湖畔

👑项目简介:嘉定新城品质住宅

🗣最新动态:8月20号认购

📍区域板块:嘉定新城

🏠产品介绍:首开建面约122-145㎡房源

🚇交通配套:11号线白银路

🏫周边学校:在上海实验学校嘉定新城分校摇号范围内,周边更是有上海交通大学附属嘉定实验学校、上海交通大学附属嘉定实验学校(分部)等名校保驾护航。

🏥医疗资源:瑞金北院

一房一价表现已公布

(一房一价表)

1地段

嘉定新城经过十余年的发展成为整个嘉定综合实力很突出的板块,甚至放眼整个五大新城都是佼佼者。

项目是嘉定新城远香湖中央活动区最后一块拼图,就位于远香湖公园的南侧,与11号线嘉定新城站直线距离约1.7公里。不缺好环境,招商远香湖地块地理上位于整个新城核心区的中心位置,且紧邻远香湖和紫气东来公园。项目周边学校、商业、办公和绿地公园应有尽有,且大多配套都是现成的。

周边现有教育资源非常丰富,包括上海市实验学校嘉定新城分校(九年一贯制公办学校)、远香湖幼儿园、中福会新城幼儿园、嘉定新城实验第二小学、马陆小学、上海市育才中学等。

周边大体量商业体环伺,包括 西云楼、宝龙广场、万达广场、大融城、理想之地配套商业(在建)等近40万方商业。

周边有三甲医院瑞金医院北院、嘉定区妇幼保健院、上海嘉定中医医院嘉定新院等优质医疗资源。

2产品

据悉,招商蛇口拿下嘉定新城远香湖住宅地块(嘉定新城F03A-4地块)招商林屿湖畔成交总价26.6亿,成交楼板价31850元/㎡,溢价率30%,成交承诺装修标准3000元/㎡, 预计未来售价或达6万/㎡!

根据方案,项目拟建8栋16-17层高层住宅(含1栋17层保障房),以及5栋6层住宅,共计686户。小区人车分流;车位比约1:1.8,社区内部有水景、下沉式庭院。

项目配建地上架空层泛会所+地下会所,以及下沉式庭院会所,打破人与空间边界的架空场域。会所设计整体空间祛除浮华矫饰,始终让景观以人为核心展开,整体景观规划以悬挑水池将⽔引⼊下沉⾃然⽔院,利⽤⽔幕链接,打造多层次景观,宛如⼀幅变幻的⽴体流动画作。会所区域配置风⾬连廊,以⽔景、绿篱、休憩平台串联,移步异景。

开放式的社交场域空间以自然留白,带来完整的地上园林体系,处处皆客厅的家庭化场景让公区和家一样舒适。它所传递的,不是传统意义的“豪宅感”,而是一种兼具归属感与文化感的“隐奢生活哲学”。

项目外立面要求采用石材、铝板等材质,金属部分应采用铝板、紫铜等防锈防腐蚀金属材料。

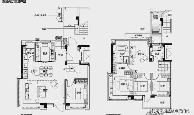
官方户型图:

叠加户型图:

样板间实景:

售楼处及现场实拍

招商林屿湖畔售楼处预约热线:400-1189-515

全部

相关资讯

报名成功
稍后会有专业的置业顾问联系您
返回楼盘

频道导航

返回首页

看房小程序

APP下载

电话拨通后,请您手动拨打分机号

确定拨打电话

电话号码:

分机号:(可能需要拨分机号)