「象屿·天宸雅颂」
售楼处电话:400-1789-208(已认证)
「象屿·天宸雅颂」营销中心热线:400-1789-208(欢迎致电)
「象屿·天宸雅颂」售楼处预约电话:400-1789-208☎☎☎如有问题可来电咨询,预约销售专员,一对一为您服务!
新浦江中心首发
象屿前滩南TOD项目
「象屿·天宸雅颂」
将推建面约89-140㎡房源
精装平层、低密叠墅、宋风联排
已经开放展厅!
售楼处预计3月底开放!
高层预计建面约89-139㎡3-4房
叠加预计建面约145-156㎡
联排预计建面约190-230㎡
户型图如下:(过程稿仅供参考,最终以实际为准)
「约89㎡ 3房2厅1卫」
编辑

「约107㎡ 3房2厅2卫」
编辑

「约107㎡ 3房2厅2卫」
编辑

「约128㎡ 3房2厅2卫」
编辑

「约140㎡ 4房2厅2卫」
编辑

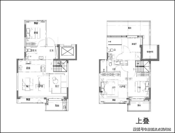
叠墅户型图如下:(过程稿,以开发商发布为准)
编辑

编辑

编辑

编辑

编辑

编辑

编辑

编辑

编辑

编辑

编辑

编辑

编辑

编辑

编辑

编辑

编辑

编辑

编辑

编辑

楼盘项目全面介绍,楼盘项目全面介绍(包含楼盘简介,均价,房价,现房,期房,别墅,叠墅,大平层,价格,楼盘地址,户型图,交通规划,备案价,备案名,项目配套,样板间,开盘时间,认筹时间,楼盘详情,售楼处电话,最新消息,最新详情,周边配套,一房一价,最新进展等详情咨询)楼盘详情丨价格丨更多优惠丨机不可失丨欢迎致电丨诚邀品鉴!售楼处位置丨特价房丨工抵房丨剩余房源丨户型图丨最新消息
房地产专业知识200问
1、房产
是指房屋经济形态,在法律上有明确的权属关系,在不同的所有者和使用者之间可以进行出租出售或作其它用途的房屋。
2、地产
是指土地财产,在法律上有明确的权属关系,地产包含地面及其上下空间,地产与土地的根本区别也就是有无权属关系。
3、房地产
是房产和地产的总称。是指土地及附着在土地上的人工构筑物和建筑物及其附带的各种权利(所有权、管理权、转让权等)。
4、房地产业
是以土地和建筑物为经营为对象,从事房地产开发、建设、经营、管理以及维修、装饰和服务的集多种经济活动为一体的综合性产业。
5、房地产开发
是指在依法取得土地使用权的土地上按照使用性质的要求进行基础设施、房屋建筑的活动。
6、土地开发
是将“生地”开发成可供使用的土地。
7、土地所有制
现行全部土地实行的是社会主义土地公有制,分为全民所有制(即国家所有)和劳动群众集体制(即集体所有)两种形式。其中,城市市区的土地全部属于国家所有;农村和城市郊区的土地法律规定属于国家所有的以外,属于集体所有;宅基地和自留地、自留山,属于集体所有;矿物、水流、森林、山岭、草原、荒地、滩涂等自然资源,属于国家所有,由法律规定属于集体所有,森林、山岭、草原、荒地、滩涂除外。但地上建筑物既可以为国家所有,也可以为集体、单位和个人所有。因此,同一宗房地产,其土地与地上建筑物的所有权往往是不一致的。
8、集体土地
是指农村集体所有的土地。
9、征用土地
指国家为了公共利益的需要,可依照法律规定对集体所有的土地实行征用。
10、土地的使用年限是如何确定的?
凡与省市规划国土签订《土地使用权出让合同书》的用地,其土地使用年限按国家规定执行。即:居住用地七十年;工业用地五十年;教育、科技、文化、卫生、体育用地五十年;商业、旅游、娱乐用地四十年;综合用地或者其他用地五十年。另外,加油站、加气站用地为二十年。
11、房子的居住时间是多少,土地使用年限届满后,该怎么办?
房屋一经购买并取得产权后,即作为业主个人所有的财产,并无居住年限的限制,担对该房屋所占用范围内的土地来说,因为土地除属于集体所有的外,均属于国家所有。业主所取得的为该土地的一定年限的使用权。住宅用地的土地使用时间为50—70年,自开发商取得该土地使用证书之日起计算。在该土地使用年限届满后,土地将由国家收回。业主可以在继续交纳土地出让金或使用费的前提下,继续使用该土地。
12、合作建房
是指以一方提供土地使用权,另一方或多方提供资金合作开发房地产的房地产开发形式。
13、土地所有权
土地所有权是指国家或集体经济组织对国家土地和集体土地依法享有的占有、使用、收益和处分的权能。
14、土地使用权的出让
指国家以协议、招标、拍卖的方式将土地所有权在一定年限内出让给土地使用者,由使用者向国家支付土地使用权出让金的行为。
15、土地使用权转让
是指土地使用者通过出售、交换、赠与和继承的方式将土地使用权再转移的行为。
16、土地使用权划拨
是指政府无偿将土地拨发给使用者使用,一般没有使用期限的限制。以无偿划拨取得的土地使用权,其出让须经政府及土地管理部门同意,交补交出让金后方可进行转让、出租和抵押。
17、什么是地籍?什么是产籍?
我们通常所指的地籍、产籍、房地产籍是同一概念。它是指土地的自然状况、社会经济状况和法律状况的调查与登记,包括了土地产权的登记和土地分类面积等内容。具体来讲,是对在房地产调查登记过程产生的各种图表、证件等登记资料,经过整理、加工、分类而形成的图、档、卡、册等资料的总称。
18、生地
指空间地、田地、未开垦地等不具备使用条件的土地。
19、熟地
指三通一平或七通一平,具备使用条件的土地。
20、宗地
是地籍的最小单元,是指以权属界线组成的封闭地块。
21、宗地图
是土地使用合同书附图及房地产登记卡附图。它反映一宗地的基本情况。包括:宗地权属界线、界址点位置、宗地内建筑位置与性质、与相邻宗地的关系等。
22、证书附图
即房地产后面的附图,是房地产证的重要组成部分,主要反映权利人拥有的房地产情况及房地产所在宗地情况。
23、楼花
一词最早源自香港是指未完工的物业(即在建物业),另一说法即指未正式交付之前的商品房。
24、期房
是指消费者在购买时不具备即买即可入住的商品房,即房地产开发商品房预售许可证开始至取得房地产权证大产证为止,所出售商品房称为期房。消费者在购买期房时应签商品房预售合同。
25、现房
是指消费者在购买时具备即买即可入住的商品房,即开发商已办妥所售的商品房的大产证的商品房,与消费者签订商品详尽买卖合同后,立即可以办理入住并取得产权证。
26、毛坯房
房地产商交付屋内只有门框没有门,墙面地面仅做基础处理而未做表面处理的房叫毛坯房。
27、成品房
是指对墙面、天花、门套、地板实行装修。
(1)内墙面为普通仿瓷涂料
(2)客厅楼地板为普通瓷砖
(3)普通铝合金窗
(4)普通胶合板门
28、商品房
是指以完全的市场价格向购房者出售的房子。
29、空置商品房
指1998年6月30日以前建成尚未售出的商品住房(可免交契税)。
30、存量房
即二手房的书面称呼,是相对首次成交的商品房而言。
31、二手房
通常是指再次进行买卖交易的住房。个人购买的新竣工的商品房、经济适用住房及单位自建住房,办完产权证后,再次上市买卖,这些都称为二手房。
32、经济适用房
根据北京市人民政府办公厅京政发【1998】第54号文件,经济适用住房是面向中低收入家庭的普通住宅;要体现适用、经济、美观、安全、卫生、便利的原则;布局要符合城市规划的要求;使用功能要满足居民基本生活的需要;建设标准要根据北京市“九五”住宅建设标准,结合市场需求确定。
33、房改房
在房改政策出台后,国家机关、企事业单位的职工需要按规定将目前居住的房子购买下来,我们把为类公房称之为房改房。
34、安居房分为哪几种?
安居房包括按规定出售出租给国家机关、事业单位、企业单位职工的准成本房、全成本房、全成本微利房和社会微利房。
35、个人住房基金
有些单位建立了个人住房基金。职工个人住房基金是由个人的劳动收入积累而成的基金,其中一部分是根据政策规定从收入中提取得到(主要指公积金);另一部分则是自愿储蓄部分则采取存款自愿,取款自由的管理办法。
36、住房补贴
住房补贴是国家为职工解决住房问题而给予的补贴资助,即将单位原有用于建房、购房的资金转化为住房补贴,分次(如按月)或一次性地发给职工,再由职工到住房市场上通过购买或租赁等方式解决自己的住房问题。住房补贴发放的原则是:坚持效率优先,兼顾公平的原则,由各地政府根据当地经济适用住房平均价格、平均工资,以及职工应享有的住房面积等因素具体确定。
37、房屋的折旧
房屋折旧是逐步回收房屋投资的形式,即房屋的折旧费。折旧费是指房屋建造价值的平均损耗。房屋在长期的使用中,虽然保留原有的实物形态,但由于自然损耗和人为的损耗,客观存在的价值也会逐渐减少。这部分因损耗而减少的价值,以货币形态来表现,就是折旧费。确定折旧费的依据是建筑造价残值、清理费用和折旧年限。
38、房屋的所有权
是指对房屋全面支配的权利。房屋的所有权分为占有权、使用权、收益权和处分权四项权能,这也是房屋所有权的四项基本内容。
39、房屋的占有权
通常由所有权人来行使,但有时也由别人来行使,这就是使用权与所有权分离的情况。
40、房屋的使用权
是对房屋的实际利用权利。通过一定法律契约,非房屋所有权人也可获得房屋的使用权。
41、房屋的收益权
是指房主收取房屋财产所产生的各种收益。
42、房屋的处分权
是所有权中一项最基本的权能。房屋的处分权由房主行使。有时房屋处分权也受到一定的限制。
43、房地产交易形式
房地产市场的房地产交易形式主要有两种:地产交易形式与房产交易形式。
44、住宅的“全部产权”
是指按市场价和成本价购买的房屋,购房者拥有全部产权。经济适用房亦属于全部产权。
45、住宅的“部分产权”
是指职工按标准价购买的公有住宅。在国家规定的住房面积之内,职工按标准价购房后只拥有部分产权,可以继承和出售,但出售时原产权单位有优先购买权,售房的收入在扣除有关税费后,按个人和单位所占的产权比例分配。
46、房产互换
是房屋所有人或使用人之间,在相互自愿的基础上,采用等价不等价加补偿的方式相互交换住房的行为。一般分为所有权互换和使用权互换两种形式。
47、建筑物
是指人工建造而成的房屋和构筑物,如墙体、楼地层、楼梯、门窗基础。
48、构筑物
是指建筑物中除房屋以外的东西,人们一般直接在内进行生产和生活活动,如烟囱、水井、道路、桥梁等。
49、商品房的结构
售房的楼书常见用语,房屋架构可分为砖混结构、砖木结构和钢筋混凝土结构。
50、砖混结构
主要是砖墙承重,部分是钢盘混凝土承重的结构。
51、砖木结构
主要承重构件是由用砖和木两种材料制成的结构。
52、钢筋混凝土结构
主要承重构件是由钢筋和混凝土制成的结构。
53、住宅的开间
就是住宅的宽度。
54、住宅的进深
就是指住宅的实际长度。
55、住宅的层高
是指下层地板面或楼板面到上层楼层面之间的距离,也就是一层房屋的高度。
56、住宅的净高
是指下层地板面或楼板上表面到上层楼板下表面之间的距离。
57、居住小区总用地
是包括住宅总用地,公共建筑设施总用地,道路、广场用地、庭院、绿化用地的总和。
58、住宅总用地
指低层、多层、中高层、高层以及住宅用地面积的总和。
59、公建总用地
指小区内部公共建筑占地面积的总和。
60、房屋的基底面积
房屋的基底面积是指建筑物底层勒脚以上外围水平投影面积。
61、道路、广场用地
指小区内主次干道、支道、人行道、绿化带中间宽度大于1.5米的步行道及停车、回车广场和有铺砌地面的场地面积之和。
62、庭院、绿化面积
指小区内集中绿化带、小公园、住宅间集中种植花木、草地、假山、花架、水榭、水池,以及公共活动场所等为小区所有居住人员共同使用权的绿化面积的总和。
63、人均总占地面积(平均米/人)
人均总占地面积=建筑红线内总用地/本小区规划居住总人数。
64、人均住宅用地面积(平方米/人)
人均住宅用地面积=小区内总住宅用地/本小区规划居住总人数。
65、总建筑面积(平方米)
指小区内住宅、公共建筑、人防地下室面积总和。
66、住宅的建筑面积
亦称建筑展开面积,它是指住宅建筑外墙外围线测定的各层平面面积之和。它是表示一个建筑物规模大小的经济指标。它包括三项,即使用面积、辅助面积和结构面积。
67、结构面积
是指房屋建筑中外墙,内墙柱等结构构件所占面积的总和。
68、使用面积
是指建筑物各层平面中直接为生产或生活使用的净面积的总和。
69、辅助面积
指卧室以外的净面积,包括过道、卫生间、厨房、储藏室、阳台等。
70、公用面积
是指住宅楼内为住户方便出入,正常交往保障生自学成才而设置的公共走廊、楼梯、电梯间等所占面积总和,并按栋或单元户数按比率分摊。
71、套内建筑面积
房屋按套(单元)计算的建筑面积为套(单元)门内范围的建筑面积,包括套(单元)内的使用面积、墙体面积及阳台面积。
72、套内墙体面积
是套内使用空间周围的维护或承重墙体或其它承重支撑体所占的面积,其中各套之间的分隔墙和套与公共建筑空间的分割以及外墙(包括山墙)等共有墙,均按水平投影面积的一半计入套内墙体面积。套内自由墙体按水平投影面积全部计入套内墙体面积。
73、公用建筑面积
各产权主体共同占有或共同使用权的建筑面积,指各套(单元)以外为各户共同使用,不可分割的建筑面积。
74、公用建筑面积的分摊原则是什么?
如有面积分割的文件或协议,应按其文件或协议分摊计算;如无分割文件或协议,按规定的公用面积分摊原则进行分摊计算。
75、哪些公用面积应分摊?
应分摊的公用建筑面积包括套(单元)门以外的室内外楼梯、内外廊、公共门厅、通道、电梯、配电房、设备层、设备用房、结构转换层、技术层、空调机房、消防控制室、为整栋楼层服务的值班卫室、建筑物内的垃圾以及突出屋面有围护结构的楼梯间、电梯机房、水箱间等。
76、哪些公用面积不能分摊?
不能分摊的公用面积为底层架空层中作为公共使用的机动车库、非机动车库、公共开放空间、城市公共通道、沿街的骑楼作为公共开放使用的建筑面积、消防避难层;为多栋建筑物使用的配电房;公民防护地下室以及地面车库、地下设备用房等。
77、套内阳台建筑面积
套内阳台建筑面积均按阳台外围与房屋外墙之间的水平投影面积计算。其中封闭的阳台按水平投影全部计算建筑面积,未封闭的阳台按水平投影的一半计算建筑面积。
78、套内使用面积
指套内住户独自使用的面积,一般包括卧室、厨房、卫生间、过厅、起居室、内走道、阳台、壁柜等净面积的总和。
79、套外使用面积
指套外全体住宅的公共使用面积,如楼梯间、电梯间、公共走道、公共用房等。
80、建筑容积率
是指项目规划建设用地范围内全部建筑面积与规划建设用地面积之比。
81、建筑密度
即建筑覆盖率,指项目用地范围内所有基底面积之和与规划建设用地之比。
82、人口毛密度
人口毛密度=小区内总居住人数/小区内占地面积(公顷)。
83、平均每平方米造价(元)
平均每平方米造价建筑物总造价/建筑面积。
84、使用面积系数K1(%)
使用面积系数=总使用面积(平方米)/总建筑面积(平方米)×100%。
85、居住面积系数K2(%)
居住面积系数=总居住面积(平方米)/总建筑面积(平方米)×100%。
86、结构面积系数K3(%)
结构面积系数=总结构面积(平方米)/总建筑面积(平方米)×100%。
87、绿地率
是指规划建设用地范围内的绿地面积与规划建设用地面积之比。
88、绿化率
是指植被垂直面积与规划建设用地面积之比。
89、销售率
指售出的户数占可销的总户数的比例。
90、得房率
指套(单元)内建筑面积与套建筑面积的比率。
91、公共能耗费
是小区共用部位、共用设备和公共设施及在公共性服务中所发生的水、电、煤等能源消耗,被称为公共能耗,由此所产生的费用为公共能耗费。
92、商品房预售
俗称“卖楼花”,即在房地产尚未建成以前,房地产的经销商在取得受买人一定数量的定金后,将期房出售给受买人。
93、商品房现售
是指房地产开发企业将竣工验收合格的商品房出售给买受人,并由买受人支付房价款的行为。
94、外销房
是指房地产开发企业按政府外资工作主管部门的规定,通过实行土地批租形式,报政府计划主管部门列入正式项目计划,建成后用于向境内境外出售的住宅、商业用房及其它建筑物。
95、内销房
是指房地产开发企业通过实行土地使用权出让形式,经过政府主管部门审批,建成后用于在国内范围(目前不包括香港特别行政区、澳门和台湾)出售的住宅、商业用房及其它建筑物。
96、规划形态
是指这一项目的具体建筑构成,譬如一个项目一共由几栋楼宇组成,每栋楼宇的使用性质是什么,单栋楼宇的地上有几层,地下有几层,每一层的具体用途是什么。
97、住宅组团
是一种融合了中式四合院建筑模式的居住结构。
98、单元式住宅
是指在多层、高层楼房中的一种住宅建筑形式;通常每层楼面只有一个楼梯,住户由楼梯平台直接进入分户门,一般多层住宅每个楼梯可以安排24到28户。所以每个楼梯的控制面积又称为一个居住单元。
99、居住单元
是指一个单元里有几户。俗称:一梯两户、一梯四户等。
100、户型
是指一套住宅由多少卧厅、厨、卫组成。俗称:一室一厅、二室一厅、四室二厅二卫等。
售楼处电话:400-1789-208(已认证)
「象屿·天宸雅颂」营销中心热线:400-1789-208(欢迎致电)
「象屿·天宸雅颂」售楼处预约电话:400-1789-208☎☎☎如有问题可来电咨询,预约销售专员,一对一为您服务!