保利·珺园 售楼处电话:400-118-3159(已认证)
保利·珺园 营销中心热线:400-118-3159(欢迎致电)
保利·珺园 售楼处预约电话:400-118-3159☎☎☎如有问题可来电咨询,预约销售专员,一对一为您服务!

新江湾低密豪宅!
「保利·珺园」即将入市!
将推出建面约105-140㎡洋房
建面约160-185㎡叠拼
以及建面约192-285㎡合院产品
参观看房请提前线上预约!

2025年9月3日,杨浦新江湾E1-08A地块由保利发展与上海地产通过股权转让联合拿下。出让总价37亿元,成交楼面价5.89万元/㎡。

地块四至范围: 东至E1-09规划公共绿地,西至江湾城路,南至E1-08E公共通道,北至E1-09规划公共绿地。
地块总用地面积约5.71万㎡,容积率1.1,限高约20米,地上总建筑面积约6.64万㎡,居住建筑面积约6.12万m²(商品房)。

根据流传出来的楼栋平面图来看,项目拟建9栋总高6层的洋房,9栋总高4层的叠墅和17栋联排以及相关的配套施设,总计可售房源约438套

地块本身就处于新江湾城湿地和水系包围之处,从小区的楼栋分布图来看,滨河的基本都是大面积的联排别墅产品,景观应该相当不错。
各面积段户型占比



最新消息!新江湾城1.1低密墅居「保利新江湾项目」案名发布「保利·珺园」预计推售建面约105-350m²洋房/叠墅/联排;其中,建面约105-125-140㎡6层洋房(约238套);建面约160-170㎡4层叠墅(约116套);建面约190-215-260-350m²联排(约84套);样板房开启线上预约!
保利·珺园 售楼处电话:400-118-3159(已认证)
保利·珺园 营销中心热线:400-118-3159(欢迎致电)
保利·珺园 售楼处预约电话:400-118-3159☎☎☎如有问题可来电咨询,预约销售专员,一对一为您服务!
⬇️专业销售一对一咨询⬇️
耐心等待官方VIP客户经理回电






⬇️专业销售一对一咨询⬇️
保利·珺园 售楼处电话:400-118-3159(已认证)
保利·珺园 营销中心热线:400-118-3159(欢迎致电)
保利·珺园 售楼处预约电话:400-118-3159☎☎☎如有问题可来电咨询,预约销售专员,一对一为您服务!
耐心等待官方VIP客户经理回电
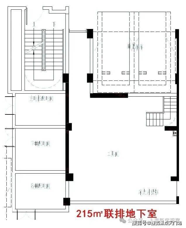
户型图如下




⬇️专业销售一对一咨询⬇️
保利·珺园 售楼处电话:400-118-3159(已认证)
保利·珺园 营销中心热线:400-118-3159(欢迎致电)
保利·珺园 售楼处预约电话:400-118-3159☎☎☎如有问题可来电咨询,预约销售专员,一对一为您服务!
耐心等待官方VIP客户经理回电
实景图片如下











⬇️专业销售一对一咨询⬇️
耐心等待官方VIP客户经理回电
约160-170㎡的叠墅户型图赏鉴








约215㎡的联排户型图赏鉴




新江湾是沪上传统豪宅区,毗邻五角场城市副中心。拥有9.45平方公里的原生湿地,以及约15万方的新江湾湿地公园,堪称上海自然生态的一块“绿宝石”。

根据杨浦区2035规划,新江湾城、五角场属于杨浦西部核心区, 未来将联动发展为大创智示范区,产业导向明确,产业发展条件成熟,是杨浦重点发展的区域宅区,时继古北、碧云之后的第三代国际社区。

新江湾城社区整体功能以居住为主,南部市级副中心区域以商务办公、教育科研为主,总体形成“双点、四区、多轴、多点”的空间布局结构。
双心: 江湾-五角场城市副中心及新江湾地区中心,构成商业、办公、文体娱乐中心。
四区: 三个居住片区以及以复旦大学新校区展开的教育科研片区。

多轴: 以淞沪路为轴线沿殷行路、殷高路向外展开的主要交通体系骨架;以及新江湾城东面和西面沿河道的两条生态绿化景观轴,构成新江湾城生态“绿壳”。
多点: 若干邻里中心,布局于居住区内主要道路沿线。各邻里中心布局均结合生态湖和社区公园,既为公共活动设施提供良好景观,同时也使社区公园成为休闲和交往中心。

交通方面: 项目直线距离 10号线新江湾城站约1.1公里 ,无需换乘可直达五角场、南京东路、豫园等各大商圈。自驾上,项目经由淞沪路-黄兴路及逸仙高架路可连通内环,日常通勤动线流畅。

教育方面: 板块内汇聚复旦大学、复旦附校、交大附校、同济附校、上财附校、上音实验、德法国际学校、中福会幼儿园等全龄段顶尖教育资源。

商业方面: 合生汇、万达、百联、苏宁、国华、江湾里、悠方等大型商业环伺,充分满足消费需求。

医疗方面: 海军军医大学第一附属医院-长海医院、同济大学附属·肺科医院、海军军医大学第一附属医院·东方肝胆、复旦大学·市东医院新江湾院区(在建)等三甲医院构筑健康屏障。

新江湾低密豪宅!「保利·珺园」建面约105-320㎡洋房/叠拼/合院即将入市!
保利·珺园 售楼处电话:400-118-3159(已认证)
保利·珺园 营销中心热线:400-118-3159(欢迎致电)
保利·珺园 售楼处预约电话:400-118-3159☎☎☎如有问题可来电咨询,预约销售专员,一对一为您服务!