保利世博天悦 (售楼处) 页面 - 2025 保利世博天悦营销中心(售楼处中心)欢迎您,呈现周边环境、户型价格、地址、楼盘详情、户型配套售楼处电话及交房时间

搜狐焦点天门站

2025-09-30 20:52:00

购房群

买房如何避坑,加入购房群,看看他们怎么说

立即进群

保利·世博天悦售楼处电话:400-8669-938

编辑

年度最高投入的豪宅来了

“200亿年度销售额、30万+/平单价”标签!当这组数字如重磅炸弹般投向上海楼市,保利世博天悦瞬间引爆全网关注。

朋友圈、公众号,项目相关动态疯狂裂变,刷爆屏幕。

这场传播风暴从黄浦江畔席卷全国,北上广深、成渝杭厦,每个城市的财富圈层都在为它疯狂刷屏。

编辑

编辑

编辑

编辑

抖音、小红书等平台,关于它的视频和笔记更是如潮水般涌现。

编辑

凤凰网、凤凰生活周刊、每日经济新闻等权威媒体接连聚焦,争相报道,相关内容曝光量直冲10万+,掀起一场轰动全城的 “现象级传播”。

编辑

编辑

这场席卷整个房地产圈的热度风暴,不仅重塑了上海豪宅市场的价值标尺,更让保利世博天悦牢牢占据全民话题的C位,热度居高不下。

尤其是约30.27万/㎡的单价,超过去年滨江凯旋门顶楼30.2万/㎡最高单价,超过翠湖六期顶复28.5万/㎡最高单价,成为长三角新房豪宅价格天花板。

其背后的价值支撑清晰可见:占据上海一线滨江不可再生的稀缺资源,叠加极具前瞻性的顶级产品打造理念,两者深度融合,构建起保利世博天悦的核心竞争力。

而全国性的关注背后是超60%外地客户的青睐及过半实业界精英的选择。

这无一不在印证保利世博天悦的市场号召力,它已然成为顶豪圈层中实力与品质的代名词。

保利世博天悦本次推出3号楼旗舰作品,坐拥首排看江位,离江不足百米,是小区乃至上海市场最后的一线双面看江大户型楼栋,最后一栋,最后29套,全国楼王,不曾有不再有。

编辑

数据来源近两年开盘项目的一房一价表

我们先说最贵单价TOP10:

在这份排名中,最高与最低的跨度超过15万/㎡!

5个项目的最贵单价超过20万/m²;

3个项目的最贵单价超过26万/m²,其中:

一线滨江世博板块的保利世博天悦以约30.27万/㎡拔得头筹,成为2025年上海豪宅市场的新晋王!

整体来看,在全球经济波动加剧的背景下,上海顶豪定价权正在向纽约、伦敦看齐,重塑全球资产价值坐标系!

而且,从这样的价格分布中不难发觉,滨江豪宅正在改写传统上海顶豪的叙事规则!

保利世博天悦更是强势跻身第一梯队,甚至领先身位,带领上海乃至一线城市的顶尖资产向全球资产高地发起冲击!

编辑

世博天悦实拍图

为什么保利世博天悦能有这样的底气?

原因很简单,沪上最有钱的一批群体已经用真金白银坚定表明了自己的立场!

项目首开一周年热销200亿,全上海能卖这么高货值的豪宅屈指可数!

也是上海罕见均价17万/m²以上,单盘能卖到200亿的项目,大幅跑赢同期市面上绝大多数豪宅项目

编辑

再将时间轴往前移,从2023年至今上海豪宅单价超20万/m²的成交量排行中,保利世博天悦甚至力压新天地、外滩、陆家嘴、苏河湾、徐汇滨江等一众热门板块新盘,问鼎上海豪宅之巅!

编辑

别墅产品未统计;网签有滞后,仅供参考

越贵越抢手,这就是保利世博天悦的底气所在!

这是上海顶豪市场的一次“戴维斯双击”,是保利世博天悦的登顶时刻,自此之后一线滨江王者加冕,顶豪话语权交接,这就是上海楼市当前正在发生的改变...

还有一件非常重要,但很多人都还没注意到的事情,正在悄然发生

来看一组上海豪宅的真实网签统计数据:

编辑

别墅产品未统计;数据来源于上海房地产,网签数据有滞后

2024年至今,上海新房总价超4000万的房源成交量TOP10豪宅中

排在第1位的是黄浦滨江的外滩壹号院-324套

排在第2位的是外滩板块的金陵华庭-157套

排在第3位是新天地的上海壹号院-132套

入市刚满一年的保利世博天悦排在第4位-108套

但这并不是TA的全部实力,据悉,保利世博天悦整盘总价4000万的房源超过220套(还有部分未推售)

编辑

世博天悦实拍图

这就意味着,随着项目的持续发力,保利世博天悦在中国、在上海的地位只会越来越高,会有越来越多的高净值人群偏爱这里

毫无疑问,完全体的保利世博天悦将是上海未来烫金的至奢圈层!

尤其是对比目前上海很多小社区豪宅只有100+套甚至更少的4000万+房源,未来在二手市场保利世博天悦将掌握绝对的统治力和话语权!

这已经超脱出了一般豪宅的范畴,成为类似纽约One57或伦敦海德公园1号的全球资产价值坐标,成为高净值人群的汇集的超级圈层!

说完保利世博天悦的最新动态,再跟随小编的文字一起看下内在优势:

建筑面积约500m²一线滨江巨幕平墅

上海塔尖圈层俯瞰世界的专属坐席

目前OPUS ONE 500 还处于保密阶段,我们给大家带来一手爆料:

·约35米L形巨幕观景台,双面瞰江带来前所未有的景观视野

编辑

编辑

示意效果图,过程稿仅供参考

相当于将纽约432 Park的顶层视野平移到了黄浦江,这样的大国景观台,未来不会再有!

看过近几年形形色色的豪宅,似乎都带有一个无法避免的通病:

地块占地面积太小,即便再巧的工匠也很难做出什么文章。

这个状态,在保利世博天悦其实从一开始就不存在。

首先,项目整体占地面积就有8.3万方,在市中心已经是难得一见,足够体量的土地一定是可以完整规划整个绿化、景观、建筑的先决条件。

保利世博天悦,在8.3万方的占地中,景观面积就高达6.5万方,3倍于汤臣一品占地面积,景观全覆盖占比高达78%, 是所有滨江豪宅绿化面积No.1。

编辑

这只是第一步。

为了给足豪宅用户该有的体验感,保利足足花了7年时间,用足了成本和诚意:

项目即将首开的一期,不仅是楼栋外观已成型,社区景观、绿化、下沉式中庭花园、地下会所都完全实景呈现。

编辑

社区景观

编辑

庭院水系

编辑

会所也只有在保利,你才可以做到完全不需要想象, 当下所见,即是未来。

编辑

这是第二步。

接下来,是在每一个豪宅用户和地产从业者眼中都极具争议的样板展示段。

按照常规逻辑,你是当下极为少有的真正同时拥有一线滨江天际线和市中心珍稀园林的豪宅,安安分分的做一个“天才”就好,但保利似乎就是志不在此。

前两天,项目刚刚公开了装标,即便是看过了市区几乎所有豪宅的装标,笔者依旧被保利惊艳:

大家应该都已经发现,从年后开始,16万+的豪宅疯狂入市的同时都在卷装标,但毫不夸张的说,保利世博天悦是今年笔者看到可以被称作一个年度最高投入的室内:

首先,时间。

前面小编也提到,保利拿地距今已经7年,这7年时间,在保利世博天悦,每一刻,都有改变发生。

不止景观设计都是国际大师天团设计、比稿才敲定,室内设计也都有顶豪设计经验:

编辑

吴滨(无间设计) ——(代表作:汤臣一品、翠湖五集)

程绍正韬——建筑室内设计之东方主义集大成者

郑忠(CCD)(代表作:汤臣一品)

葛亚曦(LSD)(代表作:北京绿城御园)

林宪能(空间美学馆)(代表作:深圳湾一号)

用现场一位负责人的原话:“我这7年时间,一直都在做样板间,不满意就敲掉重做,就像是在养育一个孩子,不断去修正,打磨”。

直到前段时间示范区、样板间开放,保利还在邀请部分顶豪用户、业内人士参观、感受、提修改意见······

其次,装标。

在写文章之前,小编特意去收集了近期入市单价同样超过16万的豪宅装标。

中海项目约245㎡户型:实木复合地板/瓷砖,局部石材、局部木饰、厨房嘉格纳(或同档次)五件套;

编辑

融创项目:石材/木地板,墙面壁纸/瓷砖,雅士高灶具+油烟机,杜拉维特/高仪洁具;

编辑

绿城项目:瓷砖/木地板/石材,墙面瓷砖,厨房嘉格纳(或同档次)五件套;

编辑

保利世博天悦的装标(以约250㎡户型为例):

卧室实木复合地板,客餐、书房+三个卫生间地面台面全部天然石材;卧室壁布/木饰面/皮革,餐厅/卫生间/全部天然石材;厨房大面积石英石台面,嘉格纳(或同档次)7件套(灶具+油烟机+洗碗机+冷冻、冷藏冰箱+蒸汽烤箱+酒柜)!水槽龙头等:铂浪高/弗兰卡/高仪(或同档次)品牌。

全都是顶豪中的 顶配

编辑

也就是说,保利此次几乎是不计成本、不遗余力在给未来的业主一个好的体验。

从室外的庭院部分的“山西黑”石材开始,到了室内,奢石的用料、渗透的更加极致。

编辑

创意样板间就连卫生间部分,主、次、公卫肉眼可见几乎都被天然原石包裹,奢侈度、实用性,恒久性全部拉满。

而在其他豪宅厨房最高标准依然停留在嘉格纳五件套时,保利也早就升级成为了嘉格纳全系列六件套,打造出了真正的差异化豪宅。

编辑

创意样板间

显贵确实不是目的,但确实也是保利世博天悦所呈现的独有的气质。

这样的细节还特别特别多。

项目每一处细节,都在坚持顶配投入。

这次保利对装修的苛刻已经渗透到了遮阳和墙面的处理。

编辑

创意样板间我们可以看到,保利世博天悦在已经做到了恒氧恒净恒湿三恒的五感体验上,臻选了比利时欧家外遮阳系统。

270°的一线江景留给你,奢侈的居住体验留给你,最健康的生活方式也留给你,这可能就是保利在这个一线滨江给未来业主最大的诚意。

编辑

如果各位有机会去到现场,小编会建议你真的需要细细体验一下。

不是怕你错过保利,是怕这样的产品以后很难再有······

在顶级豪宅的定价体系里,江景从来都不是简单的自然景观,而是左右房产价值的关键砝码

买家支付的不仅是黄浦江的粼粼波光,更是对这座城市统治级资源的独占权

自然资源的稀缺性,最终都会转化为阶级壁垒的混凝土,而且只为少数人所拥有!

编辑

项目实景图

也正因此,保利世博天悦 3#楼一出场,便直接成为了整个上海一线滨江豪宅毫无争议的 瞰江王座

原因有2个:

①保利世博天悦是近乎绝版的 滨江首排,直线距离黄浦江只有约80米,与江几乎“触手可及”

而且,“近乎绝版”这4个字没有丝毫夸张成分!

据小编统计,浦东滨江核心段(杨浦大桥-徐浦大桥)共规划12幅一线滨江住宅用地,其中9个已是现状小区,1个即将交房,2个在售中(保利世博天悦就是其一)

编辑

整个浦西核心滨江段除了现状二手房小区之外,未来的一线滨江商品住宅小区供应量是【零】

对,你没有看错,就是

所以,保利世博天悦不仅是当下滨江顶豪的巅峰更是上海核心滨江段一线滨江住宅的绝唱,错过不会再有!

②3#楼是整个小区的 首排小高层,是所有滨江顶豪中的 VIP头等舱

编辑

3楼栋分布图

270°江景视野,将S湾尽收眼底!论江景质量绝对是滨江顶豪中独一档!

编辑

项目实景图

如此“亲江距离”、“极致江景”是当下滨江顶豪的巅峰,以后也不会再有了!

除了3#楼瞰江王座,前文也提到过保利世博天悦是由多家顶尖设计单位同台展露身手。

所以你能看到,项目类公建化立面,通过大面积 玻璃设计和开放式铝板密拼工艺,一同拼接出美轮美奂的建筑轮廓,同频全球顶豪作品

编辑

项目实景图

你能看到,约6万m²的度假风园林景观、以水带路打造的 “小黄浦江”

编辑

项目实景图

要知道,社区是未来普通豪宅与顶豪的分水岭,装修不满意大可砸掉重装,但社区审美、工艺、用材等就像地段一样,你后期花再多钱都无法改变

这样得天独厚的江景天赋和匠心独具的大师定制,造就了保利世博天悦无可撼动的全球资产封面地位!

编辑

编辑

景观设计方面,保利世博天悦采用引江入园、以水带路的手法,将滨江舒阔的国际生活平移到社区内,打造约6万㎡景观秘境,媲美全球奢华酒店。采用大面积的留白和现代禅意的表现手法,呈现开阔舒展的质感。

编辑

编辑

项目采用空间、光、结构秩序来塑造静谧与典雅的氛围。

这分为两部分,一部分是针对体验进行设计,整合一系列随光线和结构变化的空间,进而提升使用者的感官体验。

另一部分是关于如何构建结构秩序,这部分由建筑设计语言决定,将场所营造,文化,工艺等元素融入其中。

编辑

编辑

编辑

室内设计效果图如下:

编辑

编辑

建议旋转手机90°欣赏沿江美景:

编辑

编辑

项目配备了约2600㎡双首层地下会所,只对小区业主开放。内部配置25*11m半标恒温泳池,泳池配设 4 条泳道,还有约180㎡私宴厅,酒窖、会客厅及健身房等功能。

编辑

编辑

实景图

会所中定制打造了以“文明之海、时间之轮、永恒之光”为主题的艺术品。仿佛置身于一个艺术博览馆,为这座黄浦江畔超级豪宅注入有趣且独特的灵魂。

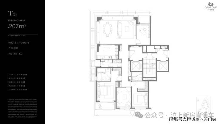
户型图参考如下:

编辑

编辑

板块方面

世博 板块再进化

无可争议的科创、文艺高地

今年3月,上海一江一河专项规划迎来全新面貌,世博板块定位 科技创新中心和文化交流中心

编辑

图片来源于上海发布

从产业定位来看,世博地区聚焦打造“秀外慧中”世界会客厅、“绚丽璀璨”世博国际城的目标,加快推进“五个集聚区”建设,即跨国公司总部集聚区、央企总部和科创承载区、世界级文化集聚区、国际经济组织集聚区、大宗商品国际贸易生态集成区

未来,这里成为上海乃至全球的科技创新重要节点和文艺高地,引领城市发展的新风尚!

而且,这一切已经在发生了!

“城市生态滨水空间再提升”

根据《2025年上海市城市更新规划资源行动方案》任务安排,上海今年将启动规划编制的有11个,其中徐汇区西岸-01、浦东新区白莲泾-01、普陀区长寿路等3个城市更新单元重点衔接“一江一河”专项规划

编辑

白莲泾规划效果图;图源网络

区域面积1.2平方公里,总开发面积为181.15万平方米,规划能级同频徐汇西岸-01,未来白莲泾会联通区域内的其余河流组成“世博水环”,共同增强地区活力,提升板块生态宜居属性(预计2025年6月启动,数据来源于浦发集团公众号)

“科技创新中心再加码”

①近日,世博地区新增跨国公司地区总部2家、外资研发中心1家

截至目前,浦东世博地区已拥有37家跨国公司地区总部

编辑

实景图

②世博管理局发布近期“十大重点落地项目”,包括英国皇家特许管理会计师公会上海代表处等重要机构;预示着世博板块在未来的城市发展中将扮演更加重要的角色

编辑

图源网络

“文化交流中心再加速”

下半年的世博板块有点忙!

“水果姐”凯蒂·佩里(KatyPerry )的演唱会已正式官宣,还有Camila Cabello2025上海演唱会、石原崇雅“我是你的超级明星”中国巡回演唱会、袁娅维“月亮撒野”巡回演唱会等等一系列国内外知名歌手的演唱会都将世博板块作为上海站的首选之地

编辑

图源网络

这些文化盛事不仅丰富了保利世博天悦业主们的精神生活,也进一步提升了世博板块的国际知名度和影响力

不止于此,根据规划,未来徐汇滨江对面的前滩区域也将建造游船码头,届时外滩核心段、西岸、前滩、世博文化公园都将成为浦江游览的体验内容!

科创、艺术、生态配套核聚一处,这样的生活方式,放眼整个黄浦江畔仅此一案!

交通方面

项目周边路网成熟两桥两隧四地铁(南浦大桥、卢浦大桥、西藏南路及打浦路隧道、6、7、8、19号线);北侧比邻世博洲际酒店、南侧比邻上海地产集团、西侧比邻世博大道、东侧比邻雪野路。

教育方面

项目周边有浦东南路小学、上海市上南中学、上南中学东校邹平校区、上海市南洋中学、上海市第八中学、上海纽洋大学等教育资源。

编辑

医疗方面

项目周边有上海市浦东新区浦南医院、上海儿童医学中学、第九人民医院浦东分院、上海交通大学医院附属瑞金医院等医疗配套。

编辑

保利·世博天悦售楼处电话:400-8669-938

编辑

全部

相关资讯

报名成功
稍后会有专业的置业顾问联系您
返回楼盘

频道导航

返回首页

看房小程序

APP下载

电话拨通后,请您手动拨打分机号

确定拨打电话

电话号码:

分机号:(可能需要拨分机号)