信达·信安里售楼处(2025)首页网站-信达·信安里售楼处欢迎您-2025最新价格/户型/配套/小区环境

搜狐焦点天门站

2025-12-30 17:26:00

购房群

买房如何避坑,加入购房群,看看他们怎么说

立即进群

信达·信安里售楼处电话:400-118-3159(已认证)

信达·信安里营销中心热线:400-118-3159(欢迎致电)

信达·信安里售楼处预约电话:400-118-3159☎☎☎如有问题可来电咨询,预约销售专员,一对一为您服务!

静安内环内·全新盘

【信达·信安里】

建面约280-540㎡风貌别墅

均价19.98万/㎡ 总价约5686万起

高附赠率别墅空间 独享私家花园庭院

无柱、无廊、大落地窗设计

独门独院、围合天地、连院宽厅

售楼处线上预约尊享团购优惠

— 品鉴热线 —

信达·信安里售楼处电话:400-118-3159(已认证)

信达·信安里营销中心热线:400-118-3159(欢迎致电)

信达·信安里售楼处预约电话:400-118-3159☎☎☎如有问题可来电咨询,预约销售专员,一对一为您服务!

效果图/最终交付为准

项目基本信息

项目名称: 【信达信安里】

物业类型: 70年住宅产权

建筑面积: 地上276㎡、286㎡,365㎡,460㎡,541㎡,

送地下面积250-500平

总套数 : 27套

价格: 均价19.98万/㎡,总价约5686万起

物业费: 20元/平/月

梯户比 : “独立电梯厅”设计

产品设计: 三种风格石库门、红砖、法式

别墅面宽 : 约12米

层数: 地上2层➕阁楼,地下2层

层高: 1F3.6米;2F-3F3.3米;地下约7.2米(挑高)

花园面积: 约50-100㎡(赠送)

物业公司: 信达自持物业(委托绿城物业管理)

容积率: 2.5

车位配比: 1:1.17

交房时间: 2026年12月

别墅双拼:

275-287平:5686-5920万(3套)4房4厅7卫

360-384平:6900-7747万(18套)5房5厅8卫

460-541平:8923-9847万(4套)5房5厅8卫

别墅类独栋:463平-1.06亿(1套)5房5厅10卫

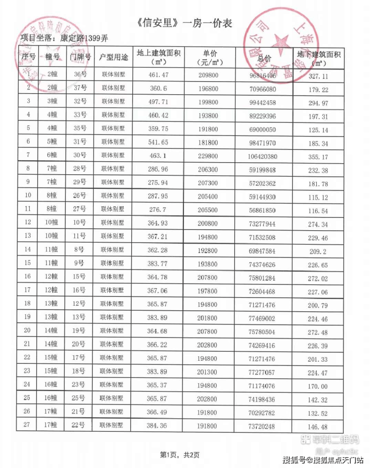
项目一房一价 👇

«上下滑动查看»

别墅一房一价 👇

— 品鉴热线 —

13636358387(微信同号)

或长按识别二维码加微信

源起静安 时代璀璨的东方峯尚目的地

自1862年静安肇始,从张园、百乐门到美琪大戏院、梅龙镇酒家,缩影上海百年精粹。百年后,静安寺商圈荟萃“梅恒泰”、嘉里中心、芮欧百货、兴业太古汇等,执掌上海奢贵据点。

静安第一代梧桐浓荫区 全球隐贵名宅区 世代相承

老静安——上海第一代梧桐区肇始地,这里走出了“民国第一外交官”顾维钧、“中华民国教育总长”蔡元培、“晚清第一首富”盛宣怀、“香港第一首富”何东、“世界建筑大师”贝聿铭等,名流风范世代相承,东西文明由此赓续,静安由此迈向全球名宅区。

散落浓荫的高贵门庭 动辄亿元的风貌老洋房 于此溯源

一座静安寺,三片风貌区。南京西路历史风貌区——凤阳路、陕西北路,衡复历史风貌区——华山路、湖南路,愚园路历史风貌区——愚园路、常德路,动辄亿元的浓荫区老洋房,历史从这里溯源。

大师杰作 里藏百年风华

【信达信安里】邀请日清设计创始人宋照青、朗道设计创始人叶翀岭、梁志天设计团队,从历史建筑风貌保护出发,融入当代新式里弄创新手法,建筑面积约270-525㎡风貌艺墅,里献世界的名宅隐贵之所。

•永和邨\得发里 采取保留改造策略 结合现代生活需求进行优化提升

•积善里\高家宅\太平坊 采取更新改建策略 保留原有材质样式、建筑格局、局部改建

•永和邨沿街特色立面 采取保留外立面的策略 并沿用康定路沿街配套市房的立面上

【信达信安里】植入曹家渡历史场景记忆,融入“渡口溯源、百乐门印象、沪西电影院”国际静安的文化元素,永葆当代海派门第涵养,以全球在地化语境的当代转译,激活百年风貌的艺术人文新里。

•市政绿化公园·归家花园 车行次入口,植入渡口溯源文脉记忆,由喧嚣都会转入游园幽径

•上海百乐门印象·海派门仪 海派文化综合体验馆,尊奢门廊、仪式水景、雕塑水景、仪式景墙

•沪西电影院·花园客厅 休闲吧台、社交娱乐、红砖景墙、影院记忆、观景平台、游园幽径

风貌灵魂保留 从巴黎孟莎顶的法式⻛情

到上海人文屋脊的海派风华

双折式屋顶—孟莎式屋顶,源自法国古典主义建筑师弗朗西斯科·孟莎。17世纪晚期,成为法国古典主义建筑的流行形式。今天,人们依旧能在巴黎、法国北部看到成片的孟莎式屋顶,其中包括著名巴黎老佛爷百货公司。

信达信安里,遵循 “修旧如旧、以存其真”修缮更新理念,还原清水红砖山墙、孟莎式折坡屋顶、石材石库门门头,保留红色机平瓦屋面、老虎窗、转角石构件,改善石库门格栅内院采光,将石库门建筑的风貌灵魂保留。

深度酒店化 营造归家艺术之旅

公区设计,巧妙融入百乐门印象、沪西电影院等文化元素,将过去记忆植入场景。嘉佩乐酒店式门庭、琉璃光廊式车库、海派人文哲思花园,以“深度酒店化”营造归家艺术之旅。

建面约280-540㎡风貌艺墅 惟此27席

从藏身到藏心 藏物到藏己的生活进阶

地下1F志趣空间,约7.2m层高,私人菁英社交圈层。首层花园入户,大横厅会晤场域,与时代精神际会。二三层静谧于心,起居室多套房设计,梧桐下的栖心之所。屋顶露台、花园庭院,超大附赠面积,藏身心于天地恢弘。

•类独栋别墅·翠竹雅苑 印象公馆、琉璃光廊、雅集花园、人文巷道、私家庭院

•百乐门印象·休闲社交 架空层泛会所,酒店式大堂、阅读区、健身区、多功能区

•别墅巷道·艺文烟火 公共巷道、主题纵巷、端头水景、宅间花园,四级里弄巷道

【围合墅藏】私家花园庭院,独门独院、围合天地、连院宽厅,世界尽藏一隅。

【志趣墅藏】最高约7.2m地下一层层高,可改造地下挑高夹层,延伸无尽生活志趣。

创意展示空间 实景图

【奢享墅藏】高附赠率别墅空间,无柱、无廊、大落地窗设计,人生得意须尽宽。

【静谧墅藏】独创双层分户墙隔音技术,外墙&楼板约200mm厚度,首层北侧和山墙面开窗外置百叶。

双层分户墙做法示意图

并且,忻园还是上海较早采用外墙PC板夹芯保温技术的风貌住宅,隔音的同时,保温防水性能更是优异。

外墙PC板夹芯保温做法示意图

为了呈现立面的精细化,项目更是运用了60多种定制砖,尽显品质感。在建筑的拐角处,延续现状并结合历史建筑中“拐弯抹角”的做法,把转角隅石优化为弧形。“上方下圆”的抹角设计,不仅体现了通行方便安全,也是一种谦和,更是一种传统美德,表达街坊邻里间和谐友善的氛围。

延续并优化转角隅石示意图

60多种定制砖示意图

每户配置30-100㎡私家庭院 ,以"通透格栅+景墙漏窗"取代传统石库门的封闭木门。

南侧雅集花园以 "海派园林" 为蓝本,设置跌水景观、竹影茶寮与露天剧场,成为邻里交流的天然客厅;

车行主入口的水景广场,以镜面水池倒映历史建筑,归家动线化作穿越时光的仪式。

创意展示空间 实景图

【信达·信安里】 项目风貌别墅19.98万/㎡,推出27套建筑面积约280-540平的稀缺房源。 总价约5686万起!

最长19.5米的超大宽厅!!

相比于市面上多数风貌产品仅能做到1.5-2开间,难以匹配当代高净值家庭对开阔感与通透性的要求,信安里·忻园,实现了真正意义上的 “空间跨越”

其主力户型做到约360㎡建筑面积、4开间朝南、总体面宽约16米,堪比一线大平层的尺度感。

尤其值得一提的是建面约540㎡的楼王户型,更是以5开间朝南、约19.5米超大宽厅,刷新了市场对风貌别墅的空间认知。

创意展示空间 实景图

建面约280㎡户型,赠送面积可达约280㎡;建筑面积约460㎡的楼王,赠送面积甚至高达500多㎡。

这对开发商来说,大大增加了成本,所以这样的产品十分罕见。但是对于居住者来说,却是增加了地下空间的通透性,并且实现了更多的功能性。

它意味着生活想象力的彻底释放。业主可据此打造私人健身区、恒温酒窖、专业影音室、SPA疗愈空间、收藏画廊甚至子女兴趣工坊。

创意展示空间 实景图

爱俪里 | 建面约366m²摩登复古的艺术之家

得发里 | 建面约463m²独揽世界的海派墅邸

建面约275㎡户型图

【信达·信安里】风貌别墅的内部空间突破了许多风貌别墅 “窄开间”的瓶颈,打造出 奢阔舒适的现代居住空间。这在市面上极其少见!

风貌别墅 效果图/最终交付为准

— 品鉴热线 —

信达·信安里售楼处电话:400-118-3159(已认证)

信达·信安里营销中心热线:400-118-3159(欢迎致电)

信达·信安里售楼处预约电话:400-118-3159☎☎☎如有问题可来电咨询,预约销售专员,一对一为您服务!

稀缺地段 无可超越的资源能级

稀缺的地段,归根结底是对资源的占有。

老静安,上海内环内资源最密集的地段之一,其能级可以说是无可超越!

老静安的基建大手笔大投入

根据规划, 老静安全域CAZ(中央活动区),这意味着这里是中心的中心,政府将投入大量资源进行城市更新和基础设施建设,用来提升该区域的商业、金融、文化和旅游功能,使其成为城市的核心和经济增长的引擎,进一步提升其在全球城市中的地位和影响力。

2035规划 静安区战略指引图

今年1-7月的数据显示,静安158.42亿元的财政收入,排在全市第5;截至2023年,区级一般公共预算收入总量,静安连续第八年位列上海中心城区第一!

静安有钱,更重要的是静安愿意把钱都花在公共建设上。看看每年路边的时令花圃就知道,郁金香、朱顶红、北美冬青……绝对都是大手笔。

无法复制的顶级生活资源

对于老静安来说,面积不大,只有7.62平方公里,但是这么点面积内,却集中了众多顶级资源。

示意图

以千年古刹静安寺为核心的 静安寺商圈,嘉里中心、久光百货、芮欧百货等高端商业体齐聚;

不断蜕变的南京西路商圈, 顶奢商业恒隆广场、中信泰富,潮奢商业兴业太古汇,还有重奢最爱的张园等等;

商业实景图

除了商业综合体,名人故居、各种老建筑更是静安的一张名片。 张爱玲故居、胡适故居、小白楼、徐园旧址等等,像是走进了历史书。

而这些顶级资源,对于信达·信安里来说,就是一个 “15分钟生活圈”,资源密集度其他项目难以匹敌!

信安里高奢与烟火气兼具的高浓度生活圈

【信达·信安里】位于老静安核心的康定路余姚路交汇口南侧,与经典的市中心别墅豪宅静鼎安邦府邸仅一条康定路之隔。

商业配套方面:步行大约两个路口, KING88购物中心、星方汇、889广场、开开广场、七彩里5个商场任君选择。

交通配套方面:项目还有着高效的出行系统,增强了通达性。 13、14号线都步行可达,武宁路站和武定路站都步行约500米左右。1公里范围内,地铁线路就更丰富了,2号线、7号线的昌平路、隆德路、江苏路、静安寺等市中心地铁站都可步行到达。

示意图

信达·信安里售楼处电话:400-118-3159(已认证)

信达·信安里营销中心热线:400-118-3159(欢迎致电)

信达·信安里售楼处预约电话:400-118-3159☎☎☎如有问题可来电咨询,预约销售专员,一对一为您服务!

全部

相关资讯

报名成功
稍后会有专业的置业顾问联系您
返回楼盘

频道导航

返回首页

看房小程序

APP下载

电话拨通后,请您手动拨打分机号

确定拨打电话

电话号码:

分机号:(可能需要拨分机号)