泗泾绿中海-2025松江泗泾绿中海楼盘详情-绿中海小区环境-房价-地址-户型-容积率

搜狐焦点天门站

2025-08-21 13:56:00

购房群

买房如何避坑,加入购房群,看看他们怎么说

立即进群

绿中海售楼处电话:400-118-3159(已认证)

有问题可来电咨询,预约销售专员,一对一为您服务!

点击输入图片描述(最多30字)

核心亮点

稀缺顶楼复式: 此户型属于稀缺户型,共八套,拿出来卖的基本上没有,产证面积218.57㎡,加阳光房露台 实际使用面积超300㎡,层高3.25米,无遮挡视野,俯瞰徐泾繁华。

点击输入图片描述(最多30字)

超大露台花园:赠送70㎡阳光露台+阳光房,可改造为私人花园、星空酒窖或休闲娱乐空间,打造城市中的世外桃源。

满五唯一现房:业主自住精装修,家具家电齐全,无增值税,即买即住,产权清晰无纠纷。

地理位置;

地铁零距离:紧邻17号线徐盈路站(步行约600米),3站直达虹桥枢纽,无缝衔接2/10号线,通勤上海核心区、浦东机场及长三角城市群。

点击输入图片描述(最多30字)

商业综合体:步行可达万科天空之城商业广场(含盒马超市、影院、亲子教育),3公里内有蟠龙天地、夏都小镇等高端商圈,生活便利度拉满。

点击输入图片描述(最多30字)

主卧套间:独立衣帽间+卫浴,私密性与舒适性兼备。

多功能空间:书房、影音室、健身房随心改造,满足多代同堂或精英家庭需求。

南北通透:客厅面宽5.8米,餐客一体设计,70㎡露台与室内空间无缝衔接,通风采光俱佳。

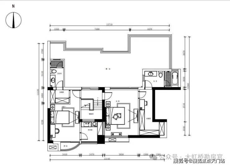
户型图

房源信息

房源详情:

产证面积:218.68+75赠送露台

户型:4室2厅4卫

车位:带一个产权车位

楼层:顶楼复式

税费:满五,

屋况:屋况极佳

售价:(详情咨询)诚意出售.看中可谈

点击输入图片描述(最多30字)

点击输入图片描述(最多30字)

室内照片;

客厅

点击输入图片描述(最多30字)

餐厅

点击输入图片描述(最多30字)

厨房

点击输入图片描述(最多30字)

一层客卫

点击输入图片描述(最多30字)

点击输入图片描述(最多30字)

北房间

点击输入图片描述(最多30字)

一层南卧室套间

点击输入图片描述(最多30字)

点击输入图片描述(最多30字)

点击输入图片描述(最多30字)

点击输入图片描述(最多30字)

二层

点击输入图片描述(最多30字)

卧室套间

点击输入图片描述(最多30字)

点击输入图片描述(最多30字)

点击输入图片描述(最多30字)

主卧套间

点击输入图片描述(最多30字)

点击输入图片描述(最多30字)

点击输入图片描述(最多30字)

阳光房+露台

点击输入图片描述(最多30字)

点击输入图片描述(最多30字)

点击输入图片描述(最多30字)

配套资源

教育:青浦世外双语学校、协和双语、西华国际等国际学校环绕,步行或短途车程可达,子女教育无忧。

点击输入图片描述(最多30字)

医疗:华山医院西院(5公里)、德达医院(2公里)、远大健康城(1.5公里),三甲医疗资源触手可及。

点击输入图片描述(最多30字)

生态:双面临河,小区内绿化率35%,下沉式球场、网球场等设施完善,居住环境静谧宜居。

稀缺价值;

虹桥核心资产:项目位于虹桥国际中央商务区辐射区,未来土拍热度、交通升级(如崧泽高架西延伸)将推动价值跃升。

顶楼复式溢价:相比同小区平层房源,复式户型空间利用率高、景观资源稀缺,市场稀缺性显著。

限时机遇

价格可谈:当前市场同类房源挂牌价已突破7万/㎡,本房源因业主急售,价格低于行情,是抢占虹桥核心资产的最后机会。

绿中海三期顶楼复式——以顶豪视野、现房品质、全能配套,重新定义徐泾人居标杆。立即行动,开启您的城市顶豪生活!

总结;

绿中海明苑凭借国际化定位、优质教育资源和轨交便利性,持续吸引改善型买家。当前二手房市场活跃,高性价比房源可重点关注,建议实地考察楼栋位置与装修保养情况

绿中海售楼处电话:400-118-3159(已认证)

有问题可来电咨询,预约销售专员,一对一为您服务!

全部

相关资讯

报名成功
稍后会有专业的置业顾问联系您
返回楼盘

频道导航

返回首页

看房小程序

APP下载

电话拨通后,请您手动拨打分机号

确定拨打电话

电话号码:

分机号:(可能需要拨分机号)