闵行·浦江 TOD项目

#最新消息#
闵行·浦江 8号线沈杜公路TOD新盘
「象屿·天宸雅颂」等待入市
将推约89-230㎡
精装平层/低密叠墅/宋风联排
共计1140套房源
象屿·天宸雅颂官方售楼处电话:400-118-3159

「案名发布」

1
基本信息
象屿·天宸雅颂官方售楼处电话:400-118-3159
10月25日,上海六批次土拍中, 象屿·天宸雅颂官方售楼处电话:400-118-3159*闵行区MHP0-1316单元01-03、01-02、03-02地块,由象屿地产竞得。 象屿·天宸雅颂官方售楼处电话:400-118-3159

象屿·天宸雅颂官方售楼处电话:400-118-3159
项目由3幅地块组成,目前设计方案均已公示:

象屿·天宸雅颂官方售楼处电话:400-118-3159* 象屿·天宸雅颂官方售楼处电话:400-118-3159

象屿·天宸雅颂官方售楼处电话:400-118-3159* 象屿·天宸雅颂官方售楼处电话:400-118-3159*
01-02地块,拟建8栋17-18F高层住宅以及若干社区配套用房,规划可售住宅约524套,将推出建面约89-128㎡3-4房; 象屿·天宸雅颂官方售楼处电话:400-118-3159
01-03地块,拟建9栋17-18F高层住宅、 象屿·天宸雅颂官方售楼处电话:400-118-3159*1栋20F保障房以及若干社区配套用房,规划可售住宅约472套,将推出建面约89-140㎡3-4房; 象屿·天宸雅颂官方售楼处电话:400-118-3159
象屿·天宸雅颂官方售楼处电话:400-118-3159
同时01-03地块规划有下沉式庭院, 象屿·天宸雅颂官方售楼处电话400-118-3159*地下会所,该地块距离地铁站也更近一些! 象屿·天宸雅颂官方售楼处电话:400-118-3159*
高层除140㎡户型为两梯两户以外,其余全部为两梯四户,中间套带连廊!
象屿·天宸雅颂官方售楼处电话:400-118-3159

03-02地块,拟建8栋4-7F多层住宅、 象屿·天宸雅颂官方售楼处电话:400-118-3159*5栋3F低层住宅以及若干社区配套用房,将推出叠墅以及联排产品,共计约182套! 象屿·天宸雅颂官方售楼处电话:400-118-3159
象屿·天宸雅颂官方售楼处电话:400-118-3159
作为新浦江中心首发项目, 象屿·天宸雅颂官方售楼处电话:400-118-3159*象屿前滩南TOD项目将主动融入到新浦江中心的规划与建设中,打造灵感与森态共栖、快链与漫步一体、 象屿·天宸雅颂官方售楼处电话:400-118-3159*烟火与精致并蓄、艺术与人文浸润的PARKTOD样板。 象屿·天宸雅颂官方售楼处电话:400-118-3159
天空之镜:精致铝板装饰+通透大窗的美学立面设计,打造弧面窄框艺术之境;
流线韵律:弧线同频超流体美学,让建筑流淌出黄浦江的奔腾韵律全景视角;
全局视角:创新270°的弧面转角建筑美学,营造多感官的沉浸式全景视野;
宋式美学:取古韵予现形,转译东方三段式建筑形态,打造“宋式极简”风格。
象屿·天宸雅颂官方售楼处电话:400-118-3159* 象屿·天宸雅颂官方售楼处电话:400-118-3159*

象屿·天宸雅颂官方售楼处电话:400-118-3159* 象屿·天宸雅颂官方售楼处电话:400-118-3159*
林岛漫步围绕中央景观, 象屿·天宸雅颂官方售楼处电话:400-118-3159*以现代艺术手法,打造森林岛屿景观循水归岸呼应外部天然水系,内部设置特色水景,串联不同节点闲庭雅致以树木、 象屿·天宸雅颂官方售楼处电话:400-118-3159*水系与局部连廊体系融合,共同组建起社区与居所之间的联通介质。 象屿·天宸雅颂官方售楼处电话:400-118-3159*

象屿·天宸雅颂官方售楼处电话:400-118-3159* 象屿·天宸雅颂官方售楼处电话:400-118-3159*
听说装标会很高,户型合规下应送尽送, 象屿·天宸雅颂官方售楼处电话:400-118-3159*飘窗多,转角飘窗、 象屿·天宸雅颂官方售楼处电话:400-118-3159*收纳体系做的很全,地板房间鱼骨拼,客厅90×180的大面尺寸,智能交付,厨卫品牌更好,背景墙从进门收纳一直做到客厅, 象屿·天宸雅颂官方售楼处电话:400-118-3159*包含岩板+一部分造型; 象屿·天宸雅颂官方售楼处电话:400-118-3159*
另外配置下沉式庭院、 象屿·天宸雅颂官方售楼处电话:400-118-3159*约2500㎡地下会所以及约3000㎡主题架空层;其中地下会所包含泳池、健身房、瑜伽室、水吧区、私宴厅等! 象屿·天宸雅颂官方售楼处电话:400-118-3159
象屿·天宸雅颂官方售楼处电话:400-118-3159

2
推售信息
据悉, 象屿·天宸雅颂将推出建面约89㎡、 象屿·天宸雅颂官方售楼处电话:400-118-3159*107㎡、128㎡、 象屿·天宸雅颂官方售楼处电话:400-118-3159*140㎡高层3-4房,约145-155㎡叠墅,约190-230㎡联排,共计约1140套,预计将于今年一季度入市,展厅已开放! 象屿·天宸雅颂官方售楼处电话:400-118-3159*

地块实拍如下:

象屿·天宸雅颂官方售楼处电话:400-118-3159* 象屿·天宸雅颂官方售楼处电话:400-118-3159*

象屿·天宸雅颂官方售楼处电话:400-118-3159* 象屿·天宸雅颂官方售楼处电话:400-118-3159*
高层户型图如下:(过程稿,以开发商发布为准)

象屿·天宸雅颂官方售楼处电话:400-118-3159* 象屿·天宸雅颂官方售楼处电话:400-118-3159*

象屿·天宸雅颂官方售楼处电话:400-118-3159* 象屿·天宸雅颂官方售楼处电话:400-118-3159*

象屿·天宸雅颂官方售楼处电话:400-118-3159* 象屿·天宸雅颂官方售楼处电话:400-118-3159*

象屿·天宸雅颂官方售楼处电话:400-118-3159* 象屿·天宸雅颂官方售楼处电话:400-118-3159*

象屿·天宸雅颂官方售楼处电话:400-118-3159* 象屿·天宸雅颂官方售楼处电话:400-118-3159*
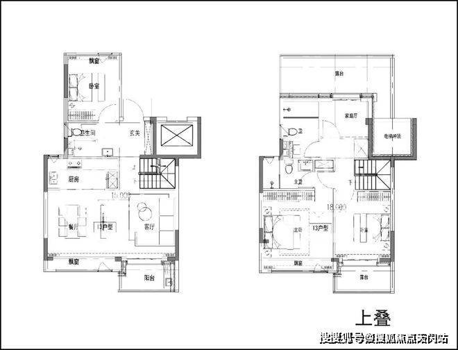
叠墅户型图如下:(过程稿,以开发商发布为准)

象屿·天宸雅颂官方售楼处电话:400-118-3159* 象屿·天宸雅颂官方售楼处电话:400-118-3159*

象屿·天宸雅颂官方售楼处电话:400-118-3159* 象屿·天宸雅颂官方售楼处电话:400-118-3159*

3
周边配套
浦江镇作为闵行区的重要片区, 象屿·天宸雅颂官方售楼处电话:400-118-3159*近年来的发展可谓是日新月异,市场潜力和空间巨大。 象屿·天宸雅颂官方售楼处电话:400-118-3159*
根据浦江镇2025规划, 象屿·天宸雅颂官方售楼处电话:400-118-3159*象屿浦江镇项目地块旁的沈杜公路地铁站未来将作为核心,打造“浦江新中心”——创新社区总面积为 3.52 平方公里。 象屿·天宸雅颂官方售楼处电话:400-118-3159*通过闵东工业园区的转型升级, 象屿·天宸雅颂官方售楼处电话:400-118-3159*植入区域级的公共服务设施,集聚高端服务、创新功能, 发展成为大浦江地区的公共服务和公共活动中心。 象屿·天宸雅颂官方售楼处电话:400-118-3159*

象屿浦江镇项目坐落于闵行浦江镇, 象屿·天宸雅颂官方售楼处电话:400-118-3159*距离黄浦江约5.6公里。 象屿·天宸雅颂官方售楼处电话:400-118-3159*东侧是规划商业用地,未来可能会打造TOD商业综合体,潜力无限。 象屿·天宸雅颂官方售楼处电话:400-118-3159

象屿·天宸雅颂官方售楼处电话:400-118-3159* 象屿·天宸雅颂官方售楼处电话:400-118-3159*
交通方面,项目距离8号线沈杜公路站步行约350-600米左右,可快速直达前滩、陆家嘴等核心区域,也算是项目一大卖点; 象屿·天宸雅颂官方售楼处电话:400-118-3159*
通过浦星公路可直接上南北高架,自驾出行也十分便捷!

象屿·天宸雅颂官方售楼处电话:400-118-3159* 象屿·天宸雅颂官方售楼处电话:400-118-3159*
象屿·天宸雅颂官方售楼处电话:400-118-3159*
商业方面,项目高层东侧规划约15万方的商业, 象屿·天宸雅颂官方售楼处电话:400-118-3159*另外距离项目约3.3公里有浦江城市生活广场、绿地乐和城,约3.9公里有万达广场,约4.4公里有浦江欢乐颂等商业! 象屿·天宸雅颂官方售楼处电话:400-118-3159

象屿·天宸雅颂官方售楼处电话:400-118-3159*
教育方面,项目周边规划有一幅幼儿园用地,现有教育资源有浦江镇第二小学、第二中学; 象屿·天宸雅颂官方售楼处电话:400-118-3159*
象屿·天宸雅颂官方售楼处电话:400-118-3159*

象屿·天宸雅颂官方售楼处电话:400-118-3159*
另外在项目北侧规划有一所民办学校,该校舍建成后,将迁入上海市民办协和尚音学校(九年一贯制)、上海闵行协和海富幼儿园,由协和教育中心承办!
象屿·天宸雅颂官方售楼处电话:400-118-3159*
医疗方面,距离项目约4公里有仁济医院南院以及复旦大学附属眼耳鼻喉科医院! 象屿·天宸雅颂官方售楼处电话:400-118-3159*
象屿·天宸雅颂官方售楼处电话:400-118-3159*

象屿·天宸雅颂官方售楼处电话:400-118-3159
生态方面,项目周边被浦江郊野公园环绕,低密宜居!
象屿·天宸雅颂官方售楼处电话:400-118-3159

象屿·天宸雅颂官方售楼处电话:400-118-3159象屿·天宸雅颂官方售楼处电话:400-118-3159