创瓴公馆2025首页网站|创瓴公馆售楼处电话|创瓴公馆在售户型|小区配套|最新价格|周边详情|容积率|楼盘详情

搜狐焦点天门站

2025-06-10 14:31:42

购房群

买房如何避坑,加入购房群,看看他们怎么说

立即进群

创瓴公馆

售楼处电话:400-1789-208(已认证)

创瓴公馆营销中心热线:400-1789-208(欢迎致电)

创瓴公馆售楼处预约电话:400-1789-208☎☎☎如有问题可来电咨询,预约销售专员,一对一为您服务!

卖点:

1、地段——距离徐家汇最近居住区(960米),马路对面就是万体馆及体育公园

2、交通——公共交通(距1/4号线300米),自驾内环漕溪北路500米

3、总价优势——小户型低总价 200 多万购买徐汇区核心区,周边二手高层住宅最低千万级别

4、物业形态——独栋低层建筑,40余户业主,同时位于小区内,更安全及隐私性更高,更适合居住

5、整栋重装——不仅室内精装修,工程包含结构加固,独立上下水及电路重装,外立面更新

6、剩余年限——70 年产权 剩余44年,对比新批土地同类产品40-50年无差异

7、生活成本低——物业费3.8

8、宜居、自带小区环境、宜投资、配套齐全氛围好收益稳定。

配套:

1、交通:

300米内:1、4号线

1公里内:9、11号线

规划在建:23号线

2、商业

300范围:飞洲国际、星游城

1公里范围:港汇恒隆、美罗城

3、医疗

1公里左右3甲医院:复旦大学附属中山医院、龙华医院、肿瘤医院

4、教育

光启小学、徐汇中学、汇师小学

5、文体

徐家汇书院、徐家汇公园、上海体育公园

样板房开放中

项目线上预约看房

【案 名】 徐汇创瓴公馆(近万体馆)

【产权年限】 70年

【交付标准】 精装交付

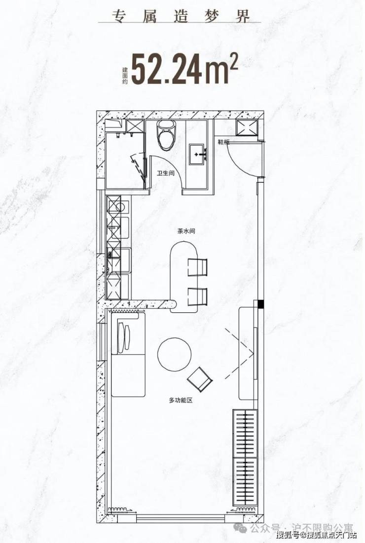
【户型面积】 40-80㎡

【总价】250-350万

【物 业 费】 3.8 元

【水 费】5.9 元一吨

【电 费】1.1 元 10 点后半价

【总高】:3层

【得房率】70%

【区位优势】

地处内环内

择址徐家汇万体馆旁

“百亿徐家汇”和“世界型商圈”的标签占位

迈向全新的生活高度

徐家汇中央活动区

文化、商务、商业、生活、生态彼此交融

全球化塔尖生活方式和海派文化碰撞

令其成为这座城市的封面之选

【硬核交通】

网罗上海交通主动脉,内环高架通达

1号线、4号线、9号线轨交串联

打造上海硬核出行路网

【地标商圈】

近享港汇恒隆广场、徐家汇中心ITC、美罗城、徐家汇书院等商业

城市繁华尽揽于心

在经典与摩登间左右逢源

【项目介绍】

【徐汇创瓴公馆】

本案位于内环内徐家汇万体馆旁

项目仅40余席, 精研百变奢适空间

秉承“多元化”空间创享主义,打造小而美的品质空间

都会SOHO主义与精致生活主义相融

优质资产配置,SOHO居家随心而选

【周边价格】

动辄10万+单价,总价置业成本高

核心地段入场券一票难求

徐汇创瓴公馆无需积分,不限购

总价友好,轻松置业徐家汇

品质精装交付,轻松实现入住

徐家汇品价比首选实至名归

【户型及精装】

【装修风格】

徐汇创瓴公馆户型方正,格局灵动

深谙海派菁英生活方式

创享百变空间主义

完美演绎“大都会”装修风格

售楼处电话:400-1789-208(已认证)

创瓴公馆营销中心热线:400-1789-208(欢迎致电)

创瓴公馆售楼处预约电话:400-1789-208☎☎☎如有问题可来电咨询,预约销售专员,一对一为您服务!

全部

相关资讯

报名成功
稍后会有专业的置业顾问联系您
返回楼盘

频道导航

返回首页

看房小程序

APP下载

电话拨通后,请您手动拨打分机号

确定拨打电话

电话号码:

分机号:(可能需要拨分机号)