2026上海 (国贸虹桥璟上售楼中心) 网站 - 国贸虹桥璟上销售中心 - 户型 - 价格 - 地址 - 楼盘详情 - 配套 - 电话 - 交房时间 - 配套 - 电话 - 交房时间

搜狐焦点天门站

2026-03-07 14:40:00

购房群

买房如何避坑,加入购房群,看看他们怎么说

立即进群

国贸虹桥璟上售楼处电话☎:400-866-9938【预约☎】

17号线嘉松中路站直线约700米

2站天空之城,3站蟠龙

「国贸· 虹桥璟上」

建面约89-129㎡3-4房户型

准现房 总价约490万起

01.

基本信息

项目由两条天然水系穿流而过,形成了上海罕见的三座天然“岛屿社区”。

那每座“岛屿”就能更亲近水系。想象一下,以后整个小区碧水环绕、绿茵延绵,水景与绿化景观自然融合,所造就的是“慢生活”生活方式!

国贸地产上海第一个“上系”作品双水系、三座天然“岛屿社区”

大虹桥赵巷,国贸地产在“原系”之上进行了全面升级,打造了上其在上海第一个“上系”作品。

罕见双自然水系!一横一纵2条水系将项目地块一分为三,形成三座天然“岛屿社区”,这在市面上非常少见。

而这种天赋对应的是更宜居、更舒适的滨水慢生活。

居住方式是无价的!这种临水、亲近自然的生活方式,能更好调节上海快节甚至996的生活状态。

项目外立面设计上,立面利用大面积玻璃+阳台落地窗+金属型材+层间装饰提升建筑整体感和精致度,顶层外挑飘板使得建筑立面体块清晰,层次丰富。

外立面大面采用浅色仿石多彩漆,浅灰色金属格栅,浅灰色玻璃,香槟色金属型材收边形成。楼体顶部也是运用了香槟色铝板以及香槟色的铝格栅。整体几何立面非常具有秩序感。

丰富的景观功能性!

据悉,沿滨河岸线布置功能场地 , 打造更多的水岸生活场景;东地块的东侧还会打造一个约3万方的水岸公园,公园北角还将修建篮球场;另外社区内部还将打造泛会所架空层,功能上更全面满足业主日常活动需要。

在沿河水岸,国贸打造沿河客厅,可以日常会客。难得的是,社区内部还配置四大主题八大架空层泛会所,用于儿童阅读、青年运动、老年康养等。

另外,项目营造出了多层次、多元的生活方式,这意味着你住在这里生活会更便捷,同时从孩童到老人,都能找到各自的乐土。

比如,第一层:小孩子下楼就是架空层,可以和小朋友共同成长。据悉项目设置了8大架空层,聚焦儿童体验、社交阅读、青年运动、老年康养的全龄段社区休闲空间需求。第二层:国贸地产还代建了一座约1.8万方的滨河市政公园,在公园北角还将修建篮球场,以后在家门口就能逛公园,也能挥汗如雨。

第三层:项目其中一个地块自带约1300㎡底商,另一个地块内有约1800㎡菜场,相比现在大部分纯住宅的街区,生活方便太多。

02.

推售信息

「国贸·赵巷项目」 本次加推收官132套房源,两栋楼的位置非常好,被水系环绕,且非常接近地铁站!主力户型为建面约105㎡3房,以及建面约129㎡4房,均价56352元/㎡!

「四期 户型楼栋落位图」

项目全套户型图如下:

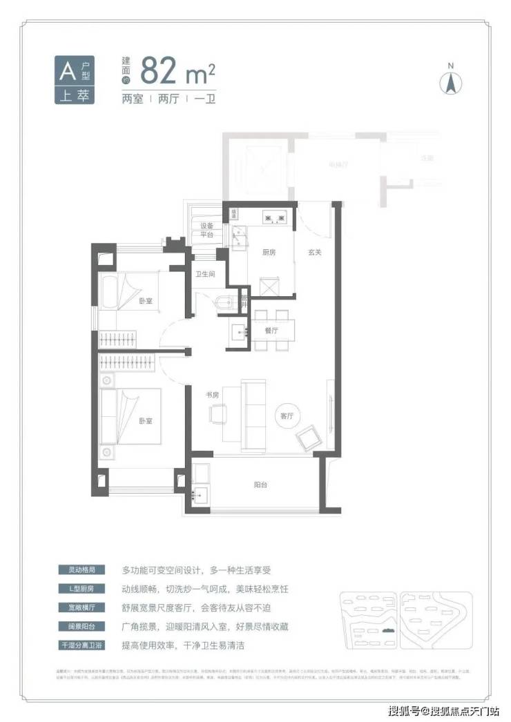
【建筑面积约82㎡2+1房2厅1卫】

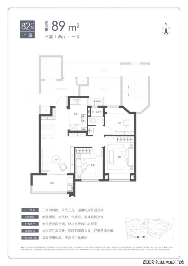
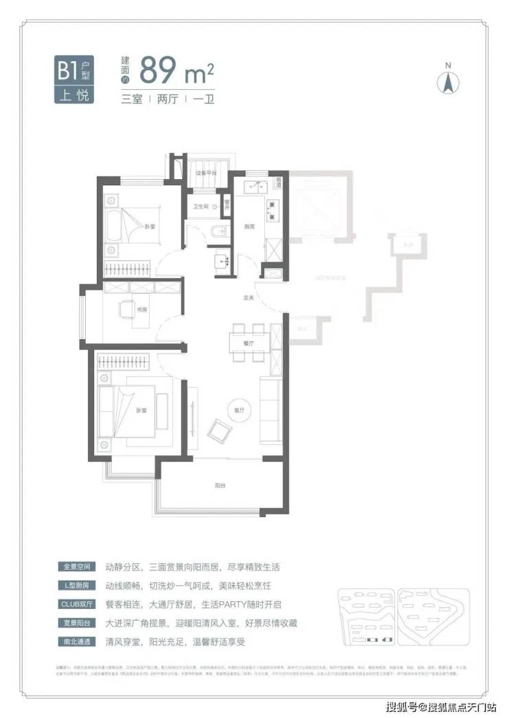
【建筑面积约89㎡3房2厅1卫】

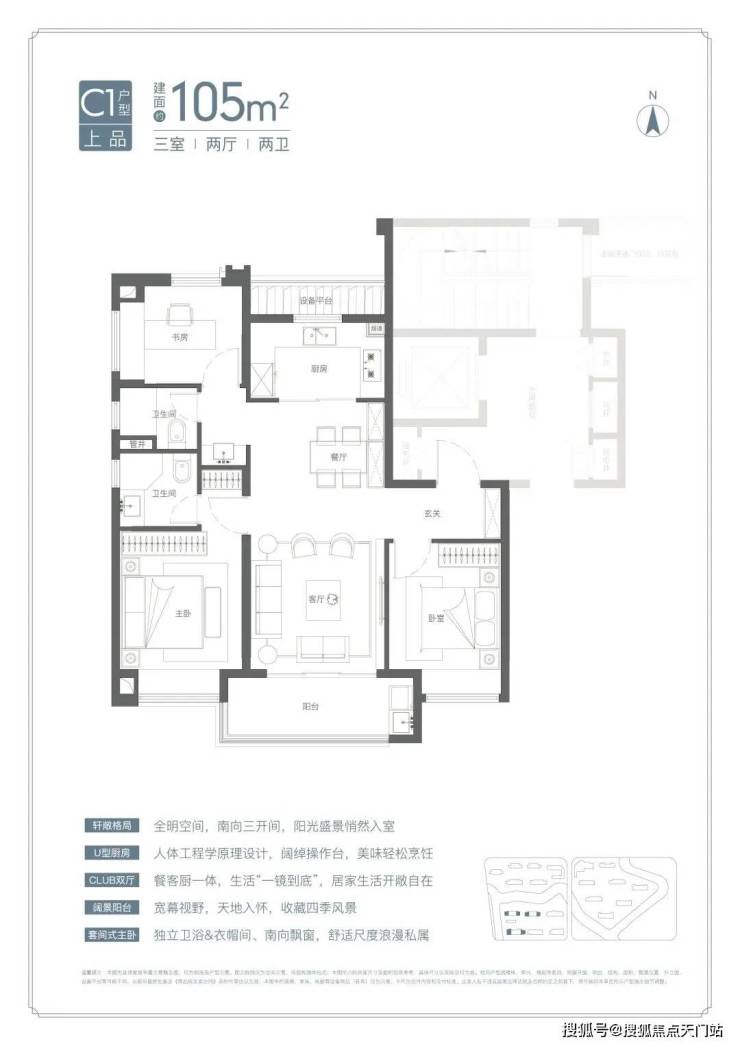
【建筑面积约105㎡3房2厅2卫】

罕见宽厅设计: 约95%的宽厅设计出现在120㎡以上户型中,而项目在约105㎡面积段就做了宽厅,非常难得,这个户型进入二手房市场将极具竞争力。

宽厅面宽约 5.5米 ,3.5开间面宽共约 11.5米 ,再加上约 8㎡ 的阳台,使得整个家庭的公共区域尺度感十足、功能也更加灵活多变。

全屋六处飘窗: 常规户型一般全卧飘窗,一共3处。但项目竟然有 6处飘窗 ,3个卧室和主卫、次卫都设有飘窗,拓展空间和采光效果优秀。

套房式主卧: 主卧的面宽和进深都很充裕,为每一个生活场景预留了足够的空间。双面转角的衣帽间区域,非常实用。

还有一种是竖厅风格 ,经典的飞机户型,房间分列客餐厅两侧,互不干扰,各有各的隐私空间。

U型厨房、餐厅、客厅、阳台一线联通,南北通透。主卧套房、全卧飘窗、次卫干湿分离也都是标配。

【建筑面积约129㎡4房2厅2卫】

03.

社区品质

项目由两条天然水系穿流而过,形成了上海罕见的三座天然“岛屿社区”。

那每座“岛屿”就能更亲近水系。想象一下,以后整个小区碧水环绕、绿茵延绵,水景与绿化景观自然融合,所造就的是“慢生活”生活方式!

国贸地产上海第一个“上系”作品双水系、三座天然“岛屿社区”

大虹桥赵巷,国贸地产在“原系”之上进行了全面升级,打造了上其在上海第一个“上系”作品。

罕见双自然水系!一横一纵2条水系将项目地块一分为三,形成三座天然“岛屿社区”,这在市面上非常少见。

而这种天赋对应的是更宜居、更舒适的滨水慢生活。

居住方式是无价的!这种临水、亲近自然的生活方式,能更好调节上海快节甚至996的生活状态。

项目外立面设计上,立面利用大面积玻璃+阳台落地窗+金属型材+层间装饰提升建筑整体感和精致度,顶层外挑飘板使得建筑立面体块清晰,层次丰富。

外立面大面采用浅色仿石多彩漆,浅灰色金属格栅,浅灰色玻璃,香槟色金属型材收边形成。楼体顶部也是运用了香槟色铝板以及香槟色的铝格栅。整体几何立面非常具有秩序感。

丰富的景观功能性!

据悉,沿滨河岸线布置功能场地 , 打造更多的水岸生活场景;东地块的东侧还会打造一个约3万方的水岸公园,公园北角还将修建篮球场;另外社区内部还将打造泛会所架空层,功能上更全面满足业主日常活动需要。

在沿河水岸,国贸打造沿河客厅,可以日常会客。难得的是,社区内部还配置四大主题八大架空层泛会所,用于儿童阅读、青年运动、老年康养等。

另外,项目营造出了多层次、多元的生活方式,这意味着你住在这里生活会更便捷,同时从孩童到老人,都能找到各自的乐土。

比如,第一层:小孩子下楼就是架空层,可以和小朋友共同成长。据悉项目设置了8大架空层,聚焦儿童体验、社交阅读、青年运动、老年康养的全龄段社区休闲空间需求。

第二层:国贸地产还代建了一座约1.8万方的滨河市政公园,在公园北角还将修建篮球场,以后在家门口就能逛公园,也能挥汗如雨。

第三层:项目其中一个地块自带约1300㎡底商,另一个地块内有约1800㎡菜场,相比现在大部分纯住宅的街区,生活方便太多。

04.

板块潜力

青浦区2035规划形成”一城两翼“的空间结构;

一城:长三角综合性节点城市

东翼:国际一流的现代服务业集聚区

西翼:长三角一体化的协同创新区

值得注意的是,赵巷和徐泾一同被划入国际一流的现代服务业集聚区,并处于沪湖复合功能发展带上。

赵巷作为虹桥商务区三期与科创中心,未来将依托市西软件园、漕河泾赵巷科技绿洲、网易上海国际文创科技园等科创产业基地,构建长三角产业创新的“神经中枢”,打造上海下一个“张江”,区域发展潜力巨大。

根据青浦2035规划,“十三五”期间将建设上海市西软件信息园,核心区就选址赵巷。

这里承载着青浦乃至上海软件开发和新一代信息技术的产业功能,被定位为千亿级产业园区。

到2025年总建筑面积达到400万方,产值破1000亿,提供就业岗位15万。未来将有大量居住在虹桥枢纽、徐泾、甚至传统市中心的人来赵巷工作,带来持续的人流和资源。

据悉,市西软件园目前已有字节跳动(今日头条/抖音)、日本骊住亚太研发中心、商汤科技、术康医疗等众多科创龙头企业入驻。

近期又吸引了行业标杆型上市企业和全球总部,如科顺股份、欣巴科技等,同时还引入了数迅信息、奇科信息、博慈、璞石医疗科技等高新技术企业和软件信息类企业。(信息来源:绿色青浦官微)

东张江,西赵巷,绝对不是空穴来风。产业带动高端人口聚集,赵巷就是大虹桥里的”张江“。

04.

周边配套

项目东侧为金地虹桥峰汇,南侧为漕河泾开发区赵巷园区一期,东南侧距离17号线嘉松中路站800米,周边嘉松中路、盈港东路交通出行便捷,小区位优越。

交通方面:地块距离17号线嘉松中路站约800米,自驾可快速至崧泽高架与G50沪渝高速,出行非常方便。

商业方面:周边拥有奥特莱斯、合生新天地、吉盛伟邦三大百万方商业环伺。

医疗方面:地块周边有AED上海德达医院、上海市青浦区红十字护理医院等医疗服务配套。

教育方面:周边拥有青浦世外、宋庆龄学校、兰生复旦、英国学校、法国学校等多家名校。

国贸虹桥璟上售楼处电话☎:400-866-9938【预约☎】

全部

相关资讯

报名成功
稍后会有专业的置业顾问联系您
返回楼盘

频道导航

返回首页

看房小程序

APP下载

电话拨通后,请您手动拨打分机号

确定拨打电话

电话号码:

分机号:(可能需要拨分机号)