国贸虹桥璟上-上海 国贸虹桥璟上售楼处预约电话(国贸虹桥璟上售楼处电话)最新房价-小区环境-户型-停车位

搜狐焦点天门站

2025-12-20 15:47:00

购房群

买房如何避坑,加入购房群,看看他们怎么说

立即进群

国贸虹桥璟上售楼处电话:400-961-9938(已认证)

国贸虹桥璟上三期

17号线嘉松南路站约700米

建面约105-129㎡3-4房户型

准现房 房源200套

均价54500元/㎡ 特价约450万起

项目推售详情

【国贸虹桥璟上】由品牌国企国贸地产匠心打造。

效果示意图,仅供参考

作为深耕上海的老牌国企之一,国贸地产近年来已经筑造了多个住宅标杆,例如国贸天悦、国贸佘山原墅和国贸凤凰原等“原系”项目,积累了口碑极高的产品力和交付力。此次在大虹桥,国贸地产在“原系”之上进行全面升级,推出了上海第一个“上系”作品,为购房者带来更高层次的品质和享受。

接着便是由3座住宅岛屿空间和1座公园岛屿空间组成的社区,岛屿由桥梁和水系串联,归家路线也变得生动有趣起来。

效果图

这种天赋对应的是更宜居、更舒适的滨水慢生活,国贸虹桥璟上从环境和氛围感上就区隔了其它项目。

丰富的景观功能性:国贸根据地块的特点,引入“微度假”的概念,不仅打造“休闲氛围”,更营造了“丰富体验”

比如,三座岛屿社区都有不同主题,并设置了非常丰富的景观节点

景观示意图

同时,国贸地产还代建了一座约1.8万方的滨河市政公园,以后业主出门除了水系,还有公园,在公园北角还将修建篮球场。

另外还设置8大架空层,聚焦儿童体验、社交阅读、青年运动、老年康养的全龄段社区休闲空间需求。

架空层示意图,仅供参考,以项目最终呈现为准

更加便捷的社区配套:项目其中一个地块自带约1300㎡底商,另一个地块内有约1800㎡菜场,是市面非常难得的生活非常便捷的新房。

菜场效果图

建筑风格遵循少即是多的设计理念,现代而又简约:立面利用大面积玻璃窗+仿石多彩漆,局部层间金属线条,并在首层基座采用人造石材和铝板等装饰材料,提升了建筑整体感和精致度。顶层外挑飘板使得建筑立面体块清晰,层次丰富。

项目推售详情

最新动态,【国贸·虹桥璟上】三期新加推约105-129㎡3-4房,均价54500元/㎡,项目已经开盘,剩余房源特价约450万起,可直接认购!

三期区位示意图

建面约105㎡3房2卫:项目建面约105㎡3房2卫有两种风格(宽厅、竖厅),尤其是宽厅户型,设计格外惊艳。

国贸虹桥璟上建面105㎡3房样板间实拍视频:

罕见宽厅设计:约95%的宽厅设计出现在120㎡以上户型中,而项目在约105㎡面积段就做了宽厅,非常难得,这个户型进入二手房市场将极具竞争力。

宽厅面宽约5.5米,3.5开间面宽共约11.5米,再加上约8㎡的阳台,使得整个家庭的公共区域尺度感十足、功能也更加灵活多变。

全屋六处飘窗:常规户型一般全卧飘窗,一共3处。但项目竟然有6处飘窗,3个卧室和主卫、次卫都设有飘窗,拓展空间和采光效果优秀。

套房式主卧:主卧的面宽和进深都很充裕,为每一个生活场景预留了足够的空间。双面转角的衣帽间区域,非常实用。

还有一种是竖厅风格,经典的飞机户型,房间分列客餐厅两侧,互不干扰,各有各的隐私空间。

U型厨房、餐厅、客厅、阳台一线联通,南北通透。主卧套房、全卧飘窗、次卫干湿分离也都是标配。

此外,项目 建面约89㎡做到了市场难得3房,可以让小家庭一步到位3房;

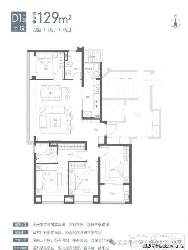
预算充足的小伙伴,可以选 建面约129㎡4房,经典的三卧朝南、边套观景户型。

建面约89㎡样板间实景图▼

国贸虹桥璟上建面129㎡4房实际交付视频:

国贸虹桥璟上建面129㎡4房样板间实拍视频:

该户型 格局方正,合理布局。餐客厅是 开放式横厅布局,搭配超长飘窗,让奢阔尺度,进一步升级;

南向三开间大卧室,让阳光溢满整个空间;

大面宽L型厨房,搭配北向生活阳台,整体尺度奢阔从容的同时,更显通透;

奢享南向套房主卧并配置步入式衣帽间、独立卫浴和观景飘窗,更尊崇、更私密,让生活格调自由释放。

项目周边配套

项目东侧为金地虹桥峰汇,南侧为漕河泾开发区赵巷园区一期,东南侧距离17号线嘉松中路站800米,周边嘉松中路、盈港东路交通出行便捷,小区位优越。

交通配套方面:地块距离17号线嘉松中路站约800米,自驾可快速至崧泽高架与G50沪渝高速,出行非常方便。

实景示意图,来自沪上好房助手 公众号实拍

商业配套方面:周边拥有奥特莱斯、合生新天地、吉盛伟邦三大百万方商业环伺。

医疗资源方面:地块周边有AED上海德达医院、上海市青浦区红十字护理医院等医疗服务配套。

教育资源方面:周边拥有青浦世外、宋庆龄学校、兰生复旦、英国学校、法国学校等多家名校。

国贸虹桥璟上售楼处电话:400-961-9938(已认证)

全部

相关资讯

报名成功
稍后会有专业的置业顾问联系您
返回楼盘

频道导航

返回首页

看房小程序

APP下载

电话拨通后,请您手动拨打分机号

确定拨打电话

电话号码:

分机号:(可能需要拨分机号)