信达海上院子项目详情-信达海上院子销售中心(营销中心)开放!全面解析小区环境、户型布局、价格信息及地址周边配套

搜狐焦点天门站

2025-10-19 18:59:00

购房群

买房如何避坑,加入购房群,看看他们怎么说

立即进群

信达海上院子售楼处电话:400-8669-938

编辑

信达·上海院子

新江湾是上海传统豪宅区,毗邻五角场城市副中心,拥有9.45平方公里的原生湿地以及约15万㎡的新江湾湿地公园生态稀缺资源。信达泰禾·上海院子位于新江湾城核心位置,家门口就是10号线殷高东路站,步行可达。

编辑

地理位置:

殷高东路与淞沪路交叉口

上海市杨浦区

项目基本信息

区域板块

杨浦新江湾

开发商

信达

体量

2套

产品类型

联排

户型面积

989.55 ㎡地上,地下663.52㎡

总价区间

8915万

交房标准

毛坯现房

产权年限

70年产权

物业公司

金帆物业

物业费

地面12.1元/平/月,地下6.05元/平/月

绿化率

35%

容积率

1.125

编辑

「上海院子」独特的院落式社区打造,融合了“院子系”特点、福州三坊七巷和上海弄堂形制,规划了“三街九坊十八巷”。且以“大门、坊门、院门、宅门”四进系统层层递进。项目精益求精,如吊顶天花雕刻的是龙纹和祥云的图案,寓意吉祥安康。

编辑

一、

编辑

二、小区会所

编辑

编辑

编辑

编辑

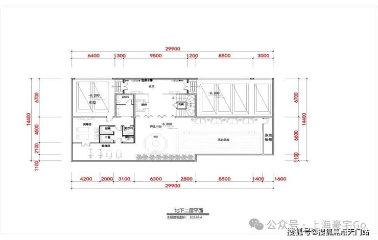
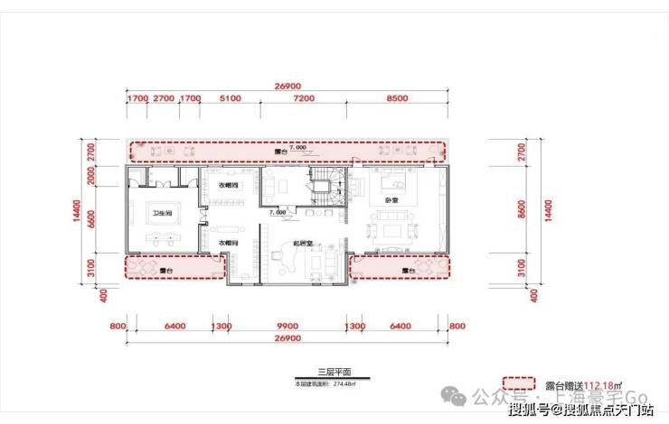
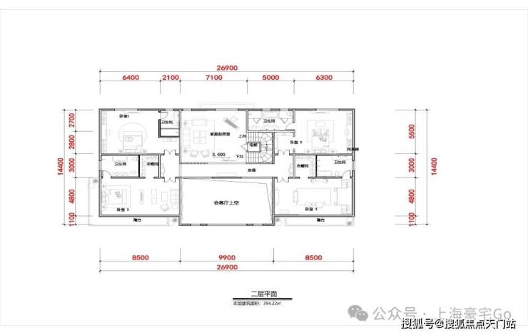
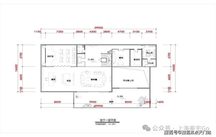
三、户型

编辑

编辑

编辑

编辑

编辑

编辑

编辑

四、装修建议

编辑

编辑

编辑

编辑

编辑

编辑

信达海上院子售楼处电话:400-8669-938

编辑

全部

相关资讯

报名成功
稍后会有专业的置业顾问联系您
返回楼盘

频道导航

返回首页

看房小程序

APP下载

电话拨通后,请您手动拨打分机号

确定拨打电话

电话号码:

分机号:(可能需要拨分机号)