华发仁恒苏河世纪-售楼处首页网站-华发仁恒苏河世纪售楼处营销中心欢迎您|2025楼盘详情/价格/户型

搜狐焦点天门站

2025-06-09 18:11:00

购房群

买房如何避坑,加入购房群,看看他们怎么说

立即进群

「华发仁恒苏河世纪」售楼处电话:400-118-3159

案场预约制 看房需提前来电预约登记

温馨提示:点击上方号码可直接拨打电话

请务必致电与销售确认时间,仅预约客户可进入销售现场,感谢您的支持

点击输入图片描述(最多30字)

「华发仁恒苏河世纪」

静安内环苏州河板块

建面约480-498㎡大平层&复式

仅剩6套房源 精装交付

总价7000万-7360万

收官发售 错过不再有

售楼处火热预约中

点击输入图片描述(最多30字)

样板房开放中

项目线上预约看房

进入“华发仁恒苏河世纪”官方预约通道

案场销售会第一时间与您联系

点击输入图片描述(最多30字)

仅预约客户可实体参观!

请务必报名后静待销售电话确认,确认后再行前往现场 !仅预约客户可进入销售现场,感谢您的理解和支持!「华发仁恒苏河世纪」售楼处电话:400-118-3159

项目一房一价表

点击输入图片描述(最多30字)

点击输入图片描述(最多30字)

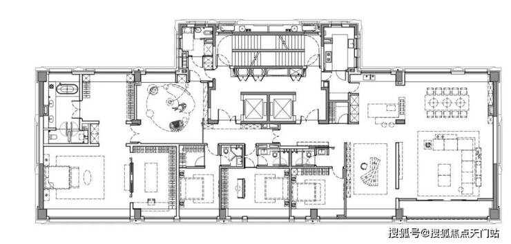
项目户型图

【华发仁恒·苏河世纪】此次项目推3#、6#两栋住宅,建面约102-245㎡3-4房。共计44套房源,均价13.9万/m²。另有6套大平层和2套复式。「华发仁恒苏河世纪」售楼处电话:400-118-3159

具体如下:

16套约102㎡3房、

20套约245㎡4房、

6套约498㎡大平层、

2套约480㎡复式。

点击输入图片描述(最多30字)

建面约102㎡3房户型▼

点击输入图片描述(最多30字)

建面约245㎡4房户型▼

点击输入图片描述(最多30字)

建面约480㎡复式户型▼

点击输入图片描述(最多30字)

建面约498㎡大平层户型▼

点击输入图片描述(最多30字)

2020年10月,华发、仁恒联合体以总价421080万元竞得静安区天目社区C070102单元38-01、39-01地块,成交楼面价52833.79元/㎡,该地块是商住办性质。

点击输入图片描述(最多30字)

位置示意图

38-01地块要求5%保障房、100%全装修、80%以上中小套。规划建设6栋住宅,共288套住宅,预计明年入市。其中1#9F,2、4、5#26F,3#19F,6#8F。「华发仁恒苏河世纪」售楼处电话:400-118-3159

点击输入图片描述(最多30字)

示意图

项目基本参数

区位板块:静安区苏河湾

建筑面积:住宅部分约4.2万方,商业、文化及办公部分约3.6万方。

绿化率:35%

容积率:3.0

住宅产品:3幢26层公寓、1幢19层公寓、1幢8层公寓

总户数:348套

车位配比:478个

主力户型:建筑面积约99㎡-240㎡高层

交付标准:精装

点击输入图片描述(最多30字)

【华发仁恒·苏河世纪】共6栋住宅,首开300套房源,以105-107㎡左右户型为主。推出三栋住宅,均价13.3万/㎡,入围分68.8分。时隔两年多,项目第二批房源少量房源正在认购中!

点击输入图片描述(最多30字)

项目效果图

【华发仁恒·苏河世纪】眺望苏州河,地理位置得天独厚,一线水景饱览城市天际线的壮丽。「华发仁恒苏河世纪」售楼处电话:400-118-3159

点击输入图片描述(最多30字)

点击输入图片描述(最多30字)

项目效果图

铝板和玻璃幕墙遵循现代建筑的先锋美学,超大窗墙比将景色尽收眼底。

点击输入图片描述(最多30字)

点击输入图片描述(最多30字)

项目实拍图

同时国企领袖的华发股份与实力外企仁恒置地强强联合,站位“中央活动区”,携手打造史诗级典藏作品——【华发仁恒·苏河世纪】。「华发仁恒苏河世纪」售楼处电话:400-118-3159

点击输入图片描述(最多30字)

点击输入图片描述(最多30字)

项目区位配套

地块位处苏州河畔,周边有1、2、8号线三条轨交,距离8号线曲阜路站仅约300米,位置优越,交通便捷,且与大名鼎鼎的四行仓库仅一路之隔。「华发仁恒苏河世纪」售楼处电话:400-118-3159

点击输入图片描述(最多30字)

点击输入图片描述(最多30字)

交通资源方面:地块距离8号线曲阜路站直线距离约200m,周边还有1、12号线,与四行仓库仅一路之隔。「华发仁恒苏河世纪」售楼处电话:400-118-3159

点击输入图片描述(最多30字)

曲阜路站

教育资源方面:项目周边有惠思顿高瞻幼儿园、上海音乐幼儿园、棋院实验小学、静安第三中学小学、向东中学。「华发仁恒苏河世纪」售楼处电话:400-118-3159

点击输入图片描述(最多30字)

静安第三中学小学

医疗资源方面:静安区北站医院(二甲医院)、上海健桥医院、上海长征医院等为健康保驾护航!「华发仁恒苏河世纪」售楼处电话:400-118-3159

点击输入图片描述(最多30字)

长征医院

商业资源方面:距离静安大悦城直线距离约300m,静安大悦城是国家5星级购物中心,项目整体开发超过40万平米,总投资额超过120亿,规划包括大型时尚购物中心、第一居所临水豪宅、高品质酒店式公寓、甲级写字楼及步行商业街,打造海派文化与国际文化的兼容并蓄,创造动静结合的高品质生活第一选择。

点击输入图片描述(最多30字)

静安大悦城

点击输入图片描述(最多30字)

一江一河规划中,苏州河沿岸明确定位为“特大城市宜居生活的典型示范区”,上海2035规划中,苏河湾定位上海中央活动区!

点击输入图片描述(最多30字)

苏州河中心段范围图

「华发仁恒苏河世纪」售楼处电话:400-118-3159

案场预约制 看房需提前来电预约登记

温馨提示:点击上方号码可直接拨打电话

请务必致电与销售确认时间,仅预约客户可进入销售现场,感谢您的支持

全部

相关资讯

报名成功
稍后会有专业的置业顾问联系您
返回楼盘

频道导航

返回首页

看房小程序

APP下载

电话拨通后,请您手动拨打分机号

确定拨打电话

电话号码:

分机号:(可能需要拨分机号)