华润华发·时代之城-嘉定南翔(时代之城)楼盘详情-房价-户型-容积率-小区环境

搜狐焦点天门站

2025-09-28 18:22:00

购房群

买房如何避坑,加入购房群,看看他们怎么说

立即进群

[华润时代之城]

售楼处电话:400-1787-138(已认证)

营销中心热线:400-1787-138(欢迎致电)

售楼处预约电话:400-1787-138☎☎☎如有问题可来电咨询,预约销售专员,一对一为您服务!

「华润华发时代之城」

嘉定南翔新城核心板块

加推约104-177㎡高层&叠加

均价60186元/㎡ 正在认购中

实景示范区线上提前预约

样板房开放中

项目线上预约看房

时代之城街区效果图时代之城街区效果图实景图,仅供参考

项目一房一价▼

«上下滑动查看»

项目基本信息

【项目名称】时代之城

【开发商】华润置地&华发股份

【拿地信息】总价约89.14亿元,山姆旁超白金超大宅地群

【项目区位】南翔正核·中央生活圈

【总体量】约30万方墅境国际美学社区

【产品类别】建面约92-135㎡墅区高层/小高层,建面约140-178㎡精装叠墅

【设计风格】现代极简+摩登国际

【楼幢数】4个地块相连,共38幢住宅

【总户数】约2871

【容积率】约2.2-2.4

【项目动态】实景示范区已开放

墅境美学社区 匠筑产品力标杆

10年前,华润置地首入南翔就打造了超前设计的 「中央公园」,迄今为止,依然是南翔的人居标杆。

过去一年,华润置地在上海开启海派风格产品序列。 从前滩润璟,到虹桥润璟,再到观宸润府、中環置地中心润府,奢玉、奢石、奢板等高端材质的甄选,定制化的海派花园,华润置地 “品质卷王”名副其实~

华润置地近期标杆项目

如今 华润置地和华发股份强强联袂,在南翔这块热土之上打造时代之城,依然是 “卷到极致”!

项目聘请了 GAD、陌向景观、FACE飞视等大师级别设计团队,分别负责项目的建筑设计、景观设计以及家装设计!

其中负责建筑设计的GAD团队,行业水平遥遥领先,代表作有上海黄浦8号、上海玫瑰园、北京豫园、杭州绿城江南里、苏州桃花源等斐名全国的豪宅项目,实力非凡!

时代之城鸟瞰效果图

建筑方面,美学立面质感十足!

高层/小高层立面采用 极简线条垂直一体化设计,局部甄选 天青色铝板和超大面玻璃开窗(LOW-E玻璃),彰显澄澈简约、时尚前卫的建筑气质;顶部具有昭示感的塔冠,成就璀璨夺目的城市天际线。

时代之城高层建筑效果图

叠墅立面则采用 经典三段式设计,以传统经典演绎现代时尚,部分采用天青色釉面陶板,同样融合大面玻璃开窗(LOW-E玻璃),可更大程度的为业主带来宽绰视野,体验摩登生活。

时代之城叠墅建筑效果图

景观方面,大师级别的设计团队也没有让人失望!

约30万方墅境美学社区内,项目规划 九重归家礼序,从酒店式落客-迎宾式花园-摩登式会所-下沉式庭院-空中式庭院-主题式景观-架空式场景-精装式大堂-低密式住品,其中包含丰富多样的全龄化生活场景,如屋顶花园、下沉吧台、精装大堂、架空层等功能一应俱全,可满足全家人的生活志趣。

项目还配置了约2500平的奢华会所。这里集健身、游泳、瑜伽、私宴、空中花园等于一体,可以为城市精英带来一次质感生活的全然焕新与高端享受。

这些丰富的生活场景,则由两条景观轴线串联: 一条是约300米的连续花园轴;一条是约600米的日常漫步街区。与此同时,项目在街角处还打造了多个口袋公园!

社区内部景观街区示意图,仅供参考

社区与街道融合和延伸示意图,仅供参考

居于此,推窗即是直击心灵深处的绿意美景,下楼即达治愈繁忙世界的漫步空间!理想生活莫过于此。

项目推售详情

【华润华发·时代之城】项目推出 建面约92-135㎡墅区高层/小高层,建面约140-178㎡精装叠墅。不同类别的户型选择,可匹配不同客户在不同人生阶段的生活方式所需。

精装设计沿袭华润置地“精致了无痕”品质修为,配置西门子、高仪等国际一线品牌,再加上精工细节营造,敬呈居者更美好的理想生活!

据悉,【 时代之城】十二期加推建面约104-178㎡小高层&叠墅,共计131套房源,火热建档中!目前已过会, 均价60186元/㎡!项目正在认购中!

全新叠墅户型如下:

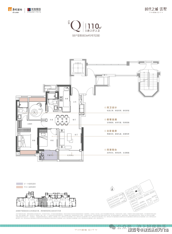
建面约110㎡的三房两厅两卫,非常适合年轻家庭上车,它的设计风格偏法式,符合年轻人审美。

实景图,仅供参考

南向双阳台,在原先一个阳台的基础上再加一个开敞阳台(仅计算一半阳台面积为建筑面积) ,实现客厅与次卧联通,不仅让得房率瞬间提升一个level,视野更敞亮!整体格局方正,南北通透,每个卧室大小宽裕,实现小家的超满足获得感!

户型图,仅供参考

时代之城110㎡3房样板间实拍:

收纳作为中小户型的一个痛点,在时代之城得到了完美解决,它几乎把小户型所有的收纳都搬进家里——

厨房超大柜体的收纳空间,包括调味拉篮、岛台双面收纳,将厨房空间直接扩容约80%,贴心的灶前龙头设计,开火时直接上方接水,非常灵活;

玄关S墙设计,同样包含MAX巨量收纳;创新性采用了钢琴键收纳,600万级的刚需项目中能享受大几千万的豪宅配置;

主卫的美妆冰箱、镜柜收纳、常用物品置物台,可以隐藏90%的卫浴物品......

同时,这个户型主力总价600万级起,很适合刚需家庭上车!

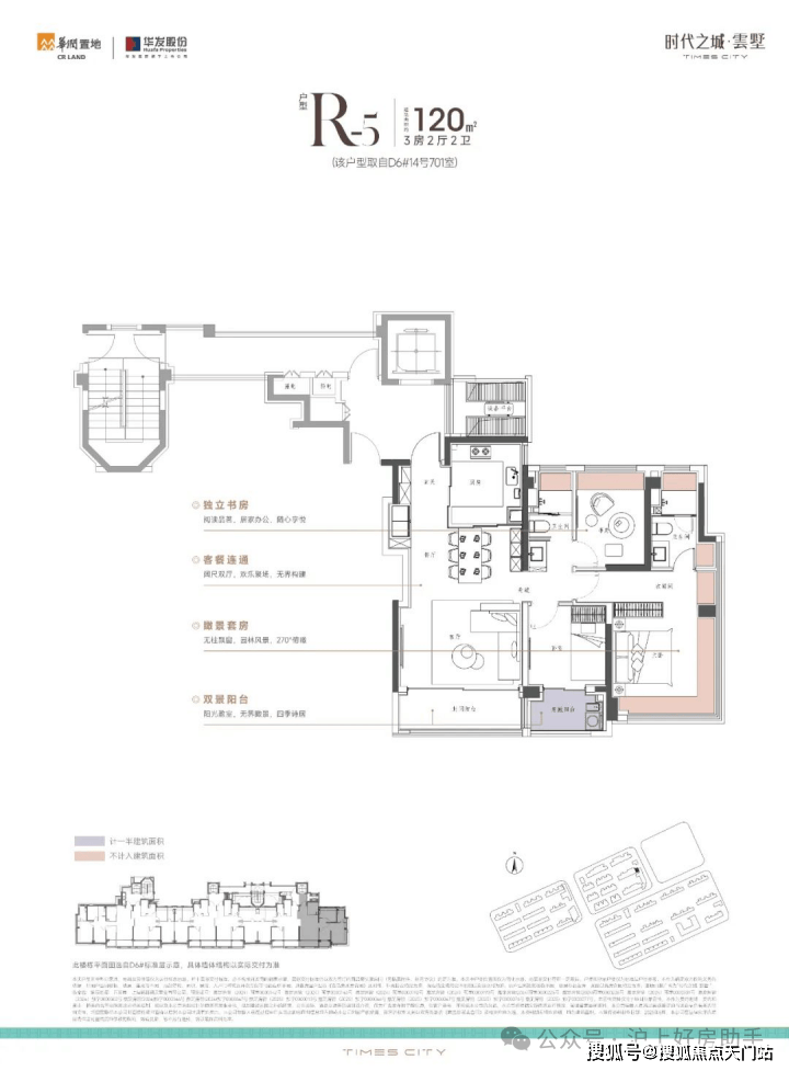
建面约120㎡的大三房做了一个u型厨房,餐桌可以容纳八人餐桌,双阳台配置+加上所有飘窗都是附赠面积,整体的实用面积可想而知。

S墙的设计,使得玄关和冰箱得到兼容,凹进去的部分放置冰箱,凸出的墙面做成了钢琴键收纳。

时代之城120㎡3房样板间实拍:

户型图,仅供参考

建面约135㎡的四房是项目的明星户型,几乎是一抢而空的状态,采光、视野非常敞亮,南北通透,双阳台还能看到窗外的中庭景观。

它的收纳亮点:钢琴键烤漆板,玄关处有一个八百库收纳,厨房扩容80%......800多万能买到这样的一个房子,哪怕是在市区买二手房也买不到这么多的赠送面积!

实景图,仅供参考

户型图,仅供参考

时代之城135㎡4房样板间实拍:

总结一下,高层户型可以说在同价位段中,很难再找到比它更出彩的户型了。南向双阳台+巨量收纳体系+超高水准的精装标准,几乎榨干每一寸空间,实用性与美观性都拉到了顶!

2、附赠面积超多的叠墅产品,包含地下室+阁楼

1000万级,挤一挤能在市区买个小三房,但是在时代之城,能享受到完全不一样的生活场景,有天有地有庭院,还有地下室的美好生活!

加上南翔比较宜居,离市区又很近,非常便利。学长很看好这里的叠墅产品:居住起来真的舒服!

1

建面约174㎡的下叠

户型图,仅供参考

时代之城174㎡下叠样板间实拍:

下叠二期做了改动,一层拥有一个充足的采光面&超级全明的空间,即使是七八月份的上海也丝毫不会闷热潮湿。附赠宽绰地下室+公共绿地(实际交付为毛坯)闲暇时可以在院子里养鱼,种花等等。

实景图,仅供参考

地下室的两个夹层(作为生活场景示意) ,不仅赠送面积多,还是三面采光!挑高开阔,丝毫没有压抑感。

实景图,仅供参考

一楼,客厅到庭院是全景的落地门窗,夏日凉风习习,边套下叠还拥有全明餐厅。

实景图,仅供参考

主卧拥有270度环幕飘窗,视野和采光优越,配备了高奢卫生间,空间感、尊崇感拉到顶格。

实景图,仅供参考

下叠的总价段在1300-1600万左右,完全能容纳三代同堂的温馨的墅居生活,置业的终极目标,一步到位!

2

建面约178㎡的中平

户型图,仅供参考

中平户型以四开间朝南的IMAX级采光面,打造出堪比市区豪宅的尺度感。4房4飘窗2阳台的设计,配合双套房布局,一共有三个套房,让每个家庭成员都享有独立私密空间。

客厅+餐厅联通+南向双阳台,尺度感非常强。同时还配备了独立的家政间,约4.4个m³,约等于100个标准登机箱的空间!

实景图,仅供参考

玄关也是非常具有仪式感,包括厨房拥有超长的操作台面,同样也是做了满级收纳。

主卧套房,不仅有豪华卫浴,女王卫生间+双台盆,大尺度衣帽间,甚至书房、工作室空间就在边上,业主能体验无上的尊崇与私密。

实景图,仅供参考

中平的价格在1100-1300万左右,大平层的居住体验,媲美奢华酒店的感觉,妥妥秒杀市区拥挤又高密度的小三房了。

时代之城178㎡4房样板间实拍:

3

建面约170㎡的上叠

户型图,仅供参考

上叠产品创新采用南北双露台+南向双阳台布局,270度全景采光面让室内外空间完美融合。边套户型的1楼客餐厅和2楼主卧,更增设侧飘窗,将社区美景尽收眼底。

日常在露台barbecue、在阳台养养花、晒晒太阳好不惬意!阁楼还能做到大面积玻璃采光!

毫不夸张地说,「时代之城·雲墅」的户型设计,算得上嘉定“遥遥领先的TOP”户型!在这里,每个价位段的客户都能匹配到满意的产品。

170m²上叠,南向双阳台+南北双露台:

二期叠墅新品从南向双阳台、U型厨房、多重收纳等维度入手,重新定义低密墅居生活。

下叠户型:

负一层地下室空间挑高开阔,功能多样化,更创新设计夹层,打造家政间与音乐厅,满足多样化品质生活需求;(地下室非精装交付)

一层步入玄关,迎面便是开阔的南向全景落地窗,将阳光与绿意尽收眼底,窗外超大公共绿地,不仅是生活空间的延伸,亦是连接自然、放松身心的理想场所;

二层主卧同样大面积采光窗设计,搭配双一字衣帽收纳与奢华卫浴空间,营造极致的尊崇体验与私密享受。

中叠户型:

入户独立玄关门厅,营造归家的私密与仪式感;

大尺度横厅布局,空间开阔通透,尽显大气格局;

南向双阳台,不仅是空间的巧妙拓展,更是生活品质的提升;

而且还是落地窗设计,超大采光面引入充沛自然光线,让居室沐浴在阳光之中。

上叠户型:

上叠户型更拥有南北双露台,实现空间利用最大化,满足多样化生活需求;

主卧套房布局配备独立卫浴,既保障私密性,又提升居住舒适度,打造专属的奢华休憩空间;

此外,二期叠墅新品,还在原有的精装交付基础上实现迭代,臻选国际精装品牌奢装,让空间更具实用主义、温暖感和精致感。

项目区位配套

【南翔正核封面 链接主城桥头堡】

南翔紧贴外环线,可快速链接上海内中环核心区及虹桥商务区,直享市区辐射。项目择址云翔板块,是南翔不可多得的可持续发展区域,承载南翔乃至嘉定2035发展目标使命,文教、产业、生态优势显著,发展潜能无限。

【华润华发·时代之城】位于嘉定南翔板块,作为南翔3.0发展的核心区域坐拥3km醇熟生活圈。

交通配套方面:【立体交通网络 高效通达世界】

直距地铁11号线陈翔公路站约900米,近嘉闵线南翔站(在建),4站即虹桥;沪嘉高速、嘉闵高架等,极速驰骋轻松切换。(数据来源:百度测距)

◐3条轨交线:11号线(链接徐汇、浦东、前滩等CBD)、嘉闵线(4站直达虹桥商务区,未来无缝换乘13/14/机场联络线)、22号线(规划中)

◐2条高速路:沪嘉高速-中内环、沪翔高速-长三角

◐1条高架线:嘉闵高架向南,速抵大虹桥枢纽

◐1条联络线:嘉闵-沪嘉联络线(在建),衔接嘉定新城-大虹桥-中心城区的核心枢纽

(信息来源:南翔生活网、上海嘉定官微)

商业配套方面:项目与沃尔玛山姆会员店,仅一路之隔;上海最大单体商业印象城商圈约34万方、五彩城商圈约4万方、中冶祥腾商圈18万方、南翔老街约14万方、太茂商业广场约5万方......

教育资源方面:项目紧邻惠亚路中学,加上最新消息复旦附中的落地!整个云翔国际社区规划16块教育用地(涵盖9个幼儿园+2所高中+2所中学+3所小学)。

嘉定世外图源网络

医疗资源方面:嘉定拥有「上海瑞金医院北部院区」三级综合医院、「南翔医院」二级甲等综合医院等。

[华润时代之城]

售楼处电话:400-1787-138(已认证)

营销中心热线:400-1787-138(欢迎致电)

售楼处预约电话:400-1787-138☎☎☎如有问题可来电咨询,预约销售专员,一对一为您服务!

全部

相关资讯

报名成功
稍后会有专业的置业顾问联系您
返回楼盘

频道导航

返回首页

看房小程序

APP下载

电话拨通后,请您手动拨打分机号

确定拨打电话

电话号码:

分机号:(可能需要拨分机号)