大虹桥人气王入市!市占率约60% 保利虹桥和颂 三期 1梯1户设计+地铁口500米! 一房一价首发!

搜狐焦点天门站

2026-03-13 10:09:46

购房群

买房如何避坑,加入购房群,看看他们怎么说

立即进群

保利虹桥和颂售楼处预约热线:400-1789-208

保利虹桥和颂·IN255揽获重固红盘榜首(数据来源:克而瑞 2024年2月-2025年1月成交数据),重固板块市占率约60%,青浦约12%火热认可(数据来源:克而瑞 2024年11月-2025年1月成交数据)。

为何项目能成为外环外的焦点?

✨【保利虹桥和颂·Park Side 】示范区样板间即将开放✨

保利虹桥和颂·Park Side公园生活示范区暨精奢样板间璀璨首映,我们诚邀莅临赏鉴,到访即赠公园野营大礼盒(数量有限先到先得),同时现场还有多重闯关游戏打卡及在地文化茶歇等您品鉴~

——————

三站虹桥芯 约91-139㎡国际居住示范区

我觉得离不开天时、地利、人和

地利上,保利虹桥和颂·IN255占位300万级鲜有的高能级轨交,是真轨交房,2站前湾、3站虹桥枢纽、5站华为基地;同时机场联络线试运营也让项目可以便捷通勤闵行、徐汇、浦东。人和上,保利发展真不愧是央企龙头,擅长做市中心高端住宅的保利,如今打造300多万的产品,就是比别的开发商产品力更先进。

尤其是项目的户型,看过的都赞不绝口,还有社区仪式感和功能性皆是同级佼佼者。

天时上,新政外环外社保/个税3改1,将释放大量购房力;首付降到15%,置业门槛大大降低,现在买房时机太好了。

当然,归根到底价格划算,300万级,首付约44万起就能上车保利品质轨交红盘,比周边700万级的前湾、650万级的徐泾、550万级的赵巷便宜太多了。

直线距离上海示范区线((赵重公路站,在建)约350米

保利虹桥和颂·IN255

首开建面约88/99/125㎡3-4房191套房源

二批次清盘啦

三期直接认购

前期一房一价表:

一房一价👇

«上下滑动查看»

从地块质素与出让条件看,代建市政公园已是确定性规划。作为成熟的住宅配套公园打造者,保利上海以“大城运营”战略思维重构片区发展格局,并非孤立开发此地块,而是站在保利虹桥和颂、保利虹桥和颂·IN255成熟基底之上,将国际都会住区理念与公园城市精神融合,迭代呈现一座面向未来、充满惊喜的公园大城。

三期地块公示:

(图片来源:西虹桥青浦生活)

过去到现在,再到未来,保利上海产品升级之路,从未满足于既有高度!即将登场的虹桥和颂全新作品,是2025保利上海写下进阶新篇。这一次和颂系迭代升级,其对区域价值格局的再塑造力,以及品质人居需求的颠覆性满足度,值得更高的期待。

保利虹桥和颂全新作品

双展厅璀璨将绽|恭迎莅临

手握300-600万预算购房人群

千万别错过这个

上海下半年最值得期待的作品!

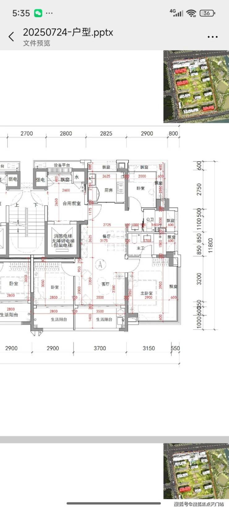
三期户型图公示如下:

102平尺寸图:

从地块质素与出让条件看,代建市政公园已是确定性规划。作为成熟的住宅配套公园打造者,保利上海以“大城运营”战略思维重构片区发展格局,并非孤立开发此地块,而是站在保利虹桥和颂、保利虹桥和颂·IN255成熟基底之上,将国际都会住区理念与公园城市精神融合,迭代呈现一座面向未来、充满惊喜的公园大城。

三期地块公示:

(图片来源:西虹桥青浦生活)

过去到现在,再到未来,保利上海产品升级之路,从未满足于既有高度!即将登场的虹桥和颂全新作品,是2025保利上海写下进阶新篇。这一次和颂系迭代升级,其对区域价值格局的再塑造力,以及品质人居需求的颠覆性满足度,值得更高的期待。

保利虹桥和颂全新作品

双展厅璀璨将绽|恭迎莅临

手握300-600万预算购房人群

千万别错过这个

上海下半年最值得期待的作品!

三期户型图公示如下:

102平尺寸图:

保利虹桥和颂售楼处预约热线:400-1789-208

全部

相关资讯

报名成功
稍后会有专业的置业顾问联系您
返回楼盘

频道导航

返回首页

看房小程序

APP下载

电话拨通后,请您手动拨打分机号

确定拨打电话

电话号码:

分机号:(可能需要拨分机号)