象屿天宸雅颂-象屿(天宸雅颂)最新详情-2025最新房价+楼盘详情+户型+配套

搜狐焦点天门站

2025-05-31 15:55:00

购房群

买房如何避坑,加入购房群,看看他们怎么说

立即进群

一脉前滩·8号线枢纽·全臻装公园墅区「象屿·天宸雅颂售楼处预约热线☎:400-1182-105√√」,将推高层&叠墅&宋风联排,展厅已开放,预计4月入市!

编辑

最新消息:象屿前滩南TOD项目——「象屿•天宸雅颂售楼处预约热线☎:400-1182-105√√」已开放展厅!建面约89-230㎡精装平层/叠墅/联排即将入市!预计3月开放示范区,预计4月取证入市!

编辑

编辑

编辑

象屿•天宸雅颂售楼处预约热线☎:400-1182-105√√

小高层预计为89/102/107/128/139平(89-107为3房,128-139为4房);

叠加预计145-156平,联排预计190-230平,(具体户型和面积以实际为准)。

户型图如下:(过程稿仅供参考,最终以实际为准)

「约89㎡ 3房2厅1卫」

编辑

象屿•天宸雅颂售楼处预约热线☎:400-1182-105√√

「约107㎡ 3房2厅2卫」

编辑

象屿•天宸雅颂售楼处预约热线☎:400-1182-105√√

「约107㎡ 3房2厅2卫」

编辑

象屿•天宸雅颂售楼处预约热线☎:400-1182-105√√

「约128㎡ 3房2厅2卫」

编辑

象屿•天宸雅颂售楼处预约热线☎:400-1182-105√√

「约140㎡ 4房2厅2卫」

编辑

象屿•天宸雅颂售楼处预约热线☎:400-1182-105√√

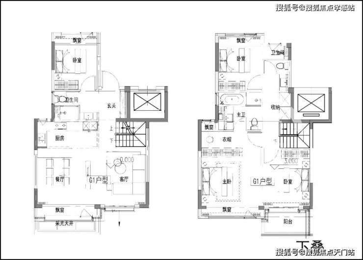
叠墅户型图如下:(过程稿,以开发商发布为准)

编辑

编辑

象屿•天宸雅颂售楼处预约热线☎:400-1182-105√√

编辑

象屿•天宸雅颂售楼处预约热线☎:400-1182-105√√项目优势如下:

1) 象屿•天宸雅颂售楼处预约热线☎:400-1182-105√√地段站位优:该盘位于8号线沈杜公路地铁站旁,算是 地铁上盖项目,距离该站点只有 约300米。8号线是上海城市中轴线,可达浦东前滩、世博、浦西老西门、人民广场等上海地标。

编辑

象屿•天宸雅颂售楼处预约热线☎:400-1182-105√√项目乘坐8号线到往人民广场用时只需约40分钟,地铁出行非常快捷!

同时, 该站点也可同站换乘浦江线,所以该盘地铁出行优势很大。

2) 象屿•天宸雅颂售楼处预约热线☎:400-1182-105√√附近或有越江隧道:近期东川路越江隧道又有新动态,这也是闵行第三条越江隧道。大概方案或有两种走向: 东川路-先新路& 东川路-鲁南路

编辑

无论如何走向, 这条隧道都在象屿浦江项目南侧不远处,未来到往浦西,出行上将更有更多选择,对于象屿浦江项目来说也是一大利好。

3) 象屿•天宸雅颂售楼处预约热线☎:400-1182-105√√房价占优:象屿•天宸雅颂项目 高层住宅预计均价5.5-6万左右,相比江月路近7万联动价新房,低出不少;地铁仅相差3站路,但价格却便宜1万多/平,具备很高性价比。

同时,象屿•天宸雅颂项目也是8号线沿线最便宜的项目,没有之一!

同时项目还有低密度的叠加&联排产品,价格相对也较为实惠。

4) 象屿•天宸雅颂售楼处预约热线☎:400-1182-105√√配套未来可期:8号线沈杜公路站目前暂无优质配套,但在 该项目东侧,规划一处约15万方的商业用地,未来落成也将成为8号线沈杜公路站附近的商业中心。

同时 浦锦街道经过多年发展已积蓄了众多配套商业设施,如浦江城市生活广场、绿地乐和城以及浦江镇南部片区的万达广场等,距离该盘都在约4公里范围内。

5) 象屿•天宸雅颂售楼处预约热线☎:400-1182-105√√社区设计较好:项目 地面无车位全人车分流高层地块内还规划有风雨连廊以及大量的架空层同时还打有会所,品质高端

6) 象屿•天宸雅颂售楼处预约热线☎:400-1182-105√√有小户型,总价可控:项目有 89平小3房产品, 预计总价400多万就能上车,相对宝山顾村价格大抵相当,但笔者更认为闵行浦锦街道预期更加充足。

8号线地铁盘

「象屿•天宸雅颂」

预计2025年4月首批房源入市

高层面积段预计89-139㎡3-4房

叠加预计145-156平,联排预计190-230平

高层预计均价5.5-6万/平

别墅预计均价6-7万/平

基本信息:

【开发商】象屿地产

【项目区位】一脉前滩·8号线枢纽

【占地面积】约69493㎡

【地上建筑面积】约14.9万㎡

【产品类别】高层、叠加、联排

【设计风格】海派+宋式美学

【总户数】约1254套(可售约1140套)

【容积率】01-02、01-03地块:2.4 | 03-02地块:1.2

【绿地率】约35%

【装修标准】集采价格不低于3000元/㎡

【车位比】01-02、01-03地块约1:13 | 03-02地块约1:2

01

大体量供应

高层&别墅产品均有

闵行浦江镇地铁8号线沈杜公路西侧—— 【象屿•天宸雅颂售楼处预约热线☎:400-1182-105√√】3幅宅地正式公示设计方案,总建筑面积约14.9万方,未来 预计将有约1254套住宅供应

编辑

象屿•天宸雅颂售楼处预约热线☎:400-1182-105√√项目作为新浦江中心首发项目,将 主动嵌入到新浦江中心的规划与建设中,打造灵感与森态共栖、快链与漫步一体、烟火与精致并蓄、艺术与人文浸润的PARK TOD样板。

外立面采用精致 铝板装饰+ 通透大窗的美学立面设计,打造 弧面窄框艺术之境。

编辑

园林方面将围绕中央景观,以 象屿•天宸雅颂售楼处预约热线☎:400-1182-105√√现代艺术手法,打造 森林岛屿景观。内部设置 特色水景,串联不同节点。同时以树木、水系与局部连廊体系融合,共同组建起社区与居所之间的联通介质。

编辑

象屿•天宸雅颂售楼处预约热线☎:400-1182-105√√项目还打造 约2500平会所涵盖泳池、健身房、童玩区、瑜伽室、水吧区、私宴厅等高端设施。

社区还有 约3000平架空层,打造全龄共享的生活志趣。

编辑

具体规划指标如下:

象屿•天宸雅颂售楼处预约热线☎:400-1182-105√√位于闵行浦江镇锦浦街道,8号线与浦江线沈杜公路站的西边。地块西侧就是浦江郊野公园,东侧则是保留的商办用地, 未来或将围绕地铁站打造TOD综合体

编辑

象屿•天宸雅颂售楼处预约热线☎:400-1182-105√√

编辑

地块信息

01-03:出让面积25684.46m²,容积率2.4

01-02:出让面积22014.96m²,容积率2.4

03-02:出让面积21793.14m²,容积率1.2

总建筑面积:140630.376m²

地块四至

01-03:东至南官路,南至沈杜公路,西至大寨河,北至昌林路

01-02:东至南官路,南至悦亭路,西至大寨河,北至昌林路

03-02:东至浦星公路,南至姚家浜,西至大寨河,北至沈杜公路

编辑

象屿•天宸雅颂售楼处预约热线☎:400-1182-105√√

01-02(最北面)规划8幢楼,总高17-18层,除了南面靠马路的二幢楼外,其余一楼采用架空层,南北楼间距30米。地块内全部为商品房。

规划可售住宅约524套,将推出建面约89-128㎡3-4房。

编辑

编辑

编辑

编辑

象屿•天宸雅颂售楼处预约热线☎:400-1182-105√√

01-03(中间),规划10幢楼,其中一幢为保障房,总高17-18-20层,小区中心位置的商品一楼为架空层,南北楼间距30米。

规划可售住宅约472套,将推出建面约89-139㎡3-4房。

01-03地块规划有下沉式庭院,地下会所,该地块距离地铁站也更近一些!

编辑

编辑

象屿•天宸雅颂售楼处预约热线☎:400-1182-105√√

03-02(最南面),规划13幢总高3-4-7层低密度住宅,3层(联排别墅)总高10米,4层(上下叠加)总高13米,7层(平层洋房)总高24米,南北楼间距12-15米。

该地块将推出叠墅以及联排产品,共计约182套!

02

地处浦江新中心

象屿•天宸雅颂售楼处预约热线☎:400-1182-105√√交通&配套基本成熟

作为上海中心城辐射区,闵行六大地区中心之一,前滩南门户,浦东四大城镇圈之一, 浦江地区中心占据特有的平台区位优势

编辑

象屿•天宸雅颂售楼处预约热线☎:400-1182-105√√

新浦江中心沿袭闵东文创中心定位,以蓝绿环绕为基底,历史人文为内涵,产业更新为驱动, 新浦江中心将街接闵行与浦东新区,打造黄浦江沿岸崭新的生态交织、文化自信、产城融合能量聚集地

编辑

象屿•天宸雅颂售楼处预约热线☎:400-1182-105√√

信息来源:上海市闵行区总体规划暨土地利用总体规划(2017-2035)

新浦江新中心 将围绕沈杜公路TOD打造创智总部湾、大型商业、艺术街区、文化展览、滨水码头、高端住宅等,以世界前沿Live-Work-PlayShop模式,为上海打造高度复合等职住平衡10分钟生活圈。

象屿•天宸雅颂售楼处预约热线☎:400-1182-105√√项目高层的东侧规划约15万方商业,按照正常逻辑来讲,该商业地块应于住宅一并打包出让,共同组成真正的TOD项目,但目前做了拆分,可能是因为连带商业一并出让,无开发商愿意接盘,因此住宅地块进行了单独出让!

编辑

象屿•天宸雅颂售楼处预约热线☎:400-1182-105√√

这种情况造成的局面就是商业规划落地的难度更大,同时存在不确定性,若此商业能落地,还是比较值得期待的,日常生活的便捷程度将能得到大大提升!

在交通方面, 东侧距8号线仅有一路之隔,随着项目及TOD商业综合体的落地, 未来应该会建过街天桥。建成以后,距离地铁站直线距离约200米。

通过8号线地铁,6站抵达前滩,15站直抵上海人民广场。

编辑

同时终边还有 浦星公路沈杜公路南北高架外环高速中环路S32申嘉湖高速等城市主干道,自驾出行便捷。

教育方面,项目北侧紧邻 上海戏剧学院(昌林校区)、周边还有 闵行区浦江第一第二中学浦江第二小学等多所优质学校。

在商业上,如 浦江城市生活广场绿地乐和城以及 浦江镇南部片区的万达广场等,距离该盘 都在约4公里范围内

在医疗上,靠的较近的是 仁济医院(南院区)复旦大学附属眼耳鼻喉科医院(浦江院区)

项目另有一个最大的优势就是——西侧的 浦江郊野公园,该公园面积很大,绿树环绕,环境优质,是不可多得的天然大氧吧。

当然,该盘也存在 几个不利因素

1) 距离项目直线距离约700米有福乐山庄(墓地),预计会有心里影响;

2)项目 东侧临近主干道浦星公路以及8号线地铁轨道,或存在噪音影响;

3)目前 周边几乎无商业配套,虽有规划,但至于何时落地,还是未知数, 等待时间或许较长

瑕不掩瑜,该盘的站位依旧可圈可点, 毕竟8号线走向良好,且距离站点较近,同时再配上5字头的单价,性价比非常高,同时加上象屿的产品品质加持,预计该盘会是8号线沿线刚需客户的首选,值得期待!

【象屿•天宸雅颂】

售楼处预约热线☎: 400-1182-105√√

案场预约制 看房需提前来电预约登记

请务必致电与销售确认时间

预约客户可优先进入销售现场,避免空跑,感谢您的支持

编辑

选房时需要考虑的几个关键因素包括地理位置、价格、生活环境、公共资源以及物业管理等。‌

1.‌地理位置‌:地理位置是选房的首要考虑因素。周边商业设施要充足,生活和出行方便。交通要发达,确保去哪里都很便捷‌。

2.‌价格‌:房价要适中,太贵的房子可能超出预算,而太便宜的房子可能存在问题‌。

3.‌生活环境‌:周边环境要舒适,避免嘈杂的噪音和污染。理想的居住环境应有绿树成荫、小河流水等自然景观‌。

4.‌公共资源‌:周边是否有幼儿园、学校、超市、便利店和菜市场等,这些设施能提高生活便利性和舒适度‌。

5.‌物业管理‌:好的物业管理能确保小区的安全、整洁和温馨,有助于房屋的保值增值‌。

全部

相关资讯

报名成功
稍后会有专业的置业顾问联系您
返回楼盘

频道导航

返回首页

看房小程序

APP下载

电话拨通后,请您手动拨打分机号

确定拨打电话

电话号码:

分机号:(可能需要拨分机号)