上海林曦水岸售楼处正式启幕,近享河岸生态与便捷生活圈,建面 80-125㎡高得房率精装房源,社区绿化优越,水岸旁理想居住场景!

搜狐焦点天门站

2025-09-23 09:22:49

购房群

买房如何避坑,加入购房群,看看他们怎么说

立即进群

售楼处预约热线电话:400-936-9938

川沙,作为上海城市副中心之一,肩负着重要的战略意义。

首先,川沙是花木副中心的延续,未来将代替花木成为浦东主城区和东南广阔腹地的枢纽,成为新的资源交换中心。

其次,川沙副中心毗邻浦东交通枢纽,也是空(浦东国际机场)+轨(上海东站)+铁(地铁2、11、21、机场联络线)三位一体的交通格局。类比大虹桥,可预见其未来发展的惊人能量。

最后,川沙还具备得天独厚的科创+旅游资源。依托川沙迪士尼的人群聚集效应,能促进川沙多方面的功能建设。再看科创,以2号线为轴,川沙一直是张江产业精英居住外溢的首选之地。

川沙正昂首迈向成为浦东主城区和东南腹地发展中心的时代。

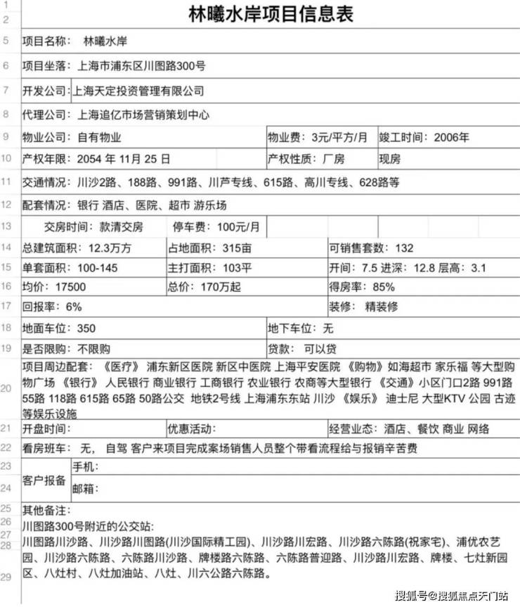
林曦水岸小区

建面约100-130m²

均价18000元/m²

总价185万起

林曦水岸超性价比

真地铁:2号线。11号线。21号线

真配套:主题酒店。沿街小吃。各种美食餐饮

真配套:迪士尼度假区

真配套:5层带电梯4层步梯+42%绿化

交通方面:据迪士尼仅10分钟车程,距地铁2号线1.8公里,5分钟车程,项目门口就是公交站。

教育资源方面:中心幼儿园,中心小学、高级中学,知名学校,六灶幼儿园、智源双语幼儿园中小学:上海市六灶中学、浦东新区民办智源小学、浦东新区六灶小学。

商业方面:世纪联华超市、农工商超市。

医疗方面:六灶社区卫生服务中心、上海市浦东人民医院,上海浦东中医医院等医疗资源,为您的健康保驾护航。

最新消息,「林曦水岸」最新房源正在销售中,推出建面约100-130㎡不限购公寓,毛坯/精装交付,均价约1.8-2.1万/㎡,总价约185万起,款清交付。

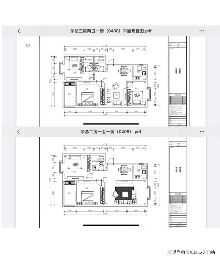
「林曦水岸」

户型图赏鉴

「林曦水岸」

样板间赏鉴

小区图实景拍摄

—— 品鉴热线 ——

售楼处预约热线电话:400-936-9938

全部

相关资讯

报名成功
稍后会有专业的置业顾问联系您
返回楼盘

频道导航

返回首页

看房小程序

APP下载

电话拨通后,请您手动拨打分机号

确定拨打电话

电话号码:

分机号:(可能需要拨分机号)