中環置地中心・望雲 (售楼处) 首页 - 欢迎莅临!楼盘详情、户型配套全知晓,最新价格、资讯不间断,售楼处位置快速找

搜狐焦点天门站

2025-09-29 18:20:00

购房群

买房如何避坑,加入购房群,看看他们怎么说

立即进群

华润中环置地中心望云售楼处电话:400-8669-938

编辑

中環置地中心·望雲

宝山·南大 全新盘

加推建面约108-188㎡3-4房

均价6.9万/㎡ 总价约670万起

中环旁双轨交地铁上盖 共300套房源

万象汇TOD综合体

售楼处线上预约中

编辑

样板房开放中

项目线上预约看房

进入“中環置地中心·望雲”官方预约通道

案场销售会第一时间与您联系

项目一房一价表

编辑

编辑

编辑

项目基本信息

上半年的上海楼市,有这样一个“神盘”,六开六捷,同时以住宅套数销售TOP1、销售面积TOP2的断层级领先优势,问鼎楼市天花板!

编辑

去年10月25日,上海第六批次土拍,华润置地以46亿总价拿下宝山南大W12-1301单元32-04 、11-01地块,打造润府二期!

效果图展示,实际以交付为准

编辑

迭代到二期,中環置地中心·望雲的审美又得到了再度突破和提升。

据悉将融入“华润·D-MONDE”的设计理念,呈现“秩序”和“经典”的建筑灵感,以框架感、构成感、群落感形成独特的城市天际线,为中环呈鉴极具美感的城市封面;融合“经典、华丽、松弛”的设计风格,借鉴新加坡高端住宅景观理念,引入度假式生活体验,实现建筑、生活和自然三者和谐共存。

效果图展示,实际以交付为准

编辑

项目本次的边套设计了大量的飘窗、转角飘窗、主卧270度落地窗等设计,所以整个立面运用了大量的玻璃,构建出了非常极致的窗墙比。

编辑

单看华润置地给出的资料和由GAD设计的外立面效果图,可以看到,是铜色铝板搭配浅白色陶瓷板,和超大比例类似玫瑰金色系的玻璃幕墙,这种海派雅奢的腔调和质感,一下就拿捏住上海人的心巴。

效果图展示,实际以交付为准

编辑

效果图展示,实际以交付为准 景观方面,

编辑

景观:城市中央的国际海派社区,归家即是度假!

项目由 翊象设计主创设计团队操刀设计。

整个社区 以主景花园 联动自然教室 、休闲交谊 与艺术空间 ,形成婉转游园的酒店式迎宾水院。

效果图仅供参考,具体以实际交付为准

编辑

编辑

效果图仅供参考,具体以实际交付为准

同时,以超奢戏水池 与尊享休闲会所 为核心,联动架 空层 ,串联休憩廊架 与横向端景 ,打造核心奢享场景。

编辑

效果图仅供参考,具体以实际交付为准

另外,整个项目拥有包 括泛会所 (戏水池、健身场所)、场景化网红架空层泛会所 等全维社交场景。

编辑

效果图仅供参考,具体以实际交付为准

该宗地块与华润置地中心润府相邻,将打造全新万象汇TOD综合体—— 中環置地中心·望雲

编辑

32-04地块,规划8幢住宅,总高8-26F,可售套数约580套左右。

编辑

2#、7#、8#有连廊,其中2#预估是3梯5户,7#、8#是3梯6户。其余楼栋无连廊,1梯2户;

5#、6#总高8层,无架空层,其余楼栋1层均有架空;9#、10#总高17F,其余楼栋总高22-26F;

该地块无保障房,地面无车位,人车分流。

11-01地块是商业、住宅混合地块。

编辑

规划3栋总高17-29层住宅,商业部分有2栋总高30F的酒店、23F的综合楼、以及2栋3F的商业;

住宅和商业部分通过公共通道分隔;

住宅部分人车分流,无地面车位。车行入口在西侧祁健路上。

编辑

「丰翔路站TOD!北上海商业旗舰曝光」

,时长

01:17

项目推售详情

据悉, 中環置地中心·望雲 将加推约108-188㎡3-4房,本次首开4号楼,户型建面约108-133㎡3-4房,望雲楼尊9# 建面约188㎡,即将点燃南大!现望雲实景示范区-雲境美学生活馆已全城开放,恭迎品鉴。

编辑

编辑

产品方面,相比一期润府,望雲的户型设计可谓一脉相承,切中购房者“痛点”;在室内装修上的品质呈现,其审美也得到了进一步提升。

编辑

加推房源全套户型图如下:

108㎡的入门级三房,起步门槛相比润府提高不少。

这个户型,入户玄关收纳、双开间的阳台、宽大的U型厨房,和套房主卧带步入式衣帽间+全景式飘窗,是比较突出的亮点;

编辑

中环置地中心望云约108㎡ 3房样板间实拍

编辑

编辑

编辑

编辑

编辑

编辑

编辑

编辑

编辑

编辑

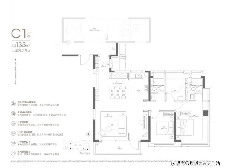
133㎡可以说是108㎡的进阶款,同样的三房两厅两卫,大面宽横厅、半开放式厨房设置岛台,加上主卧L型飘窗,再一次验证了华润置地豪宅化的产品思路。

编辑

中环置地中心望云约133㎡ 3房样板间实拍

编辑

编辑

编辑

编辑

编辑

编辑

编辑

编辑

编辑

编辑

编辑

来到165㎡个户型,已经上升到上海主流的大户型改善面积段,但看设计思路,可以看出是为满足多胎家庭成长而服务的。

近日中寰置地中心·望雲开放了165㎡样板间,楼典实地参观感受一番下来,整个户型动静分区的布局空间感很出众,人性化收纳设计细节很多,几乎每个房间都做了开窗面极大的飘窗,另外,装标也在润府的基础上升级了不少。

编辑

编辑

编辑

编辑

编辑

编辑

编辑

编辑

编辑

编辑

编辑

首先推开入户门,映入视线的是LDKB一体化客餐厅,家庭的核心活动区域,整个户型动静分区的布局一览无余,无走廊设计,空间利用率极高,走下来显得十分敞阔。

编辑

其次是收纳空间非常丰富,玄关、餐边柜、厨房、卫浴、主卧、阳台六大功能空间,随处可见。

比如,厨房配了珍珠白吊柜、三组抽屉式拉篮合理搭配,调料架收纳、大容量踢脚抽、清洁用品收纳区,米面粮油、碗碟刀叉都可完美隐身。

下图蓝色为收纳区域,绿色部分即飘窗区域:

编辑

入户门厅也非常讲究,定制级的玄关柜,包括鞋柜+收纳柜+卡座+衣帽区,整齐有序。

编辑

此外,像私享的入户梯厅可以做家庭小型储藏库;沙发后面的空间可以摆放大体量壁柜;大面宽阳台两侧也可作为定制储藏空间;

编辑

编辑

编辑

整个户型的飘窗面积总和达到了约14.3㎡。

其中主卧的270°转角飘窗就有约5.7m²,通过与外立面的结合,直接做了梳妆台和储物柜,拓展了飘窗的实用性。

编辑

编辑

同时室内精装交付标准上,也再度升级,从墙面、地板到厨卫品牌,都是国内外一线品牌。

编辑

编辑

188户型2梯2户,有独立的电梯厅。4房3卫设计,还是3明卫,这两点还是不错的。

客餐厅净面宽约5.45m、进深约6.85m左右。北侧是厨房和家政间,南侧是净面宽约5m的阳台。

南次卧也是套间设计,而且也是明卫,设计上还是用了心思的。卧室部分净面宽约2.9m、进深约3.7m。根据测算,可以放置6尺的床(宽度约1.8m)+2个床头柜(宽度约45cm/个)+衣柜(深约60cm)是可以的。

主卧转角落地窗+飘窗,也算是非常少见的了。净面宽约3.6m,不算进门的衣柜,进深大约5.7m左右。根据测算,可以放置宽约2m的床+2个床头柜(宽度约45cm/个)是可以的。

,时长

02:23

编辑

编辑

编辑

编辑

编辑

编辑

编辑

编辑

编辑

编辑

编辑

编辑

编辑

项目区位配套

中环置地中心地处宝山南大板块!作为宝山4个重点发展区域之一,南大同时也是上海北部最大的待开发区域之一。

待开发,也就意味着尚未建成!但不管是从规划还是位置来看,南大都是上海少有的能兼顾产业和居住的板块之一。

首先南大被称为中心城区一块不可多得的“大衣料子”,总开发体量约540万方,包含两大TOD及约250米天际地标,规划绿地面积占比高达43%(来源:上海宝山)!

编辑

和其他区域边拆边建式的零散开发不同,而是统一拆改后再集中规划,这样的开发形式,也决定了这里的规划从一开始就会相对完整且高能级。

比如它的产业先行,整个区域内分布了不少的科创产业。

编辑

而且,从2035总体规划中,其实也能看出来,南大定位很高,属于全市重点推进的整体转型区域,是宝山建设上海科创中心主阵地的核心载体。

编辑

所以不管是放在全上海还是宝山,这都是一块举足轻重的产业基地。

而除此之外,前面也提到,南大板块规划的绿地面积占比高达43%。特色公园40余个,人均绿色面积约39.38㎡,是上海人均绿地面积的约3倍。未来可能会是一个超越碧云的大型生态居住区。(数据来源:上海宝山区政府官网)

编辑

也就是说,在这个重点产业区域,其实早就考虑到了与生活相融的问题。

讲真,在环线外的空白区域这样规划不是难事,但在上海的中环附近,近乎预留了一半的土地给到绿化,给到生活,这算的上是一件吃力不讨好的事儿。

但南大有宜人的生态,而且还是高规格。

中环置地中心·望雲 位于南大智慧城C位,周边生活配套非常成熟且距离相对较近,未来随着板块规划逐步兑现,地段价值将会更加凸显。

编辑

交通配套方面:北侧丰翔路、西侧祁健路、东侧汇丰路已建成通车,07-01地块南侧丰皓路(祁健路-工学路)计划2024年开工建设。

项目距离15号线丰翔路站步行可达,日常出行非常方便。

编辑

商业配套方面:项目本身就是一个自带商业的TOD,华润置地规划以万象系列融汇轻奢时尚、休闲生活、运动潮流等多元业态,打造北中环“都市商业新旗舰。

除了未来的万象系商业(规划中),周边还有经纬汇、聚丰购物广场、上坤城市广场、山姆会员店等,购物还是比较方便的。

编辑

编辑

医疗资源方面:项目周边有两大三甲级医院为健康保驾护航,本别是:仁济医院宝山分院和华山医院(宝山院区)。

编辑

教育资源方面:周边荟萃南大实验幼儿园、宝山区南大实验学校、上大附小、上大附中、上海大学附属学校、上海大学等全龄化教育资源。

编辑

华润中环置地中心望云 售楼处电话:400-8669-938

编辑

全部

相关资讯

报名成功
稍后会有专业的置业顾问联系您
返回楼盘

频道导航

返回首页

看房小程序

APP下载

电话拨通后,请您手动拨打分机号

确定拨打电话

电话号码:

分机号:(可能需要拨分机号)