和樾长宁开发商售楼处电话最新发布:400-1182-105√√
上海长宁和樾长宁售楼处电话/售楼处地址☎400-1182-105√√(线上预约热线)
.招商&越秀长宁天山项目定名【和樾长宁】对接销售!预计推出120-143㎡3-4房!最快5月入市!
编辑

长宁内中环
2号线北新泾站约300米
「招商越秀长宁仙霞项目」
定名【和樾长宁】即将入市
推出约120-143㎡3-4房
售楼处线上提前预约中!
和樾长宁开发商售楼处电话:400-1182-105(预约热线√√)➨上海长宁和樾长宁售楼处电话地址☎:400-1182-105√√【官方最新发布:房价优惠折扣,楼盘测评,交房时间,交付标准,周边配套,学区配套,一房一价表,认筹时间,户型图,平面图,高层洋房大平层合院别墅,样板间,房型多样,地铁口距离,区域板块】◆郑重承诺:由开发商旗下销售团队全程营销策划,房源信息真实有效!(已认证)
在刚刚过去的2024年第八批次土拍首日,招商&越秀以总价21.82亿元竞得长宁区仙霞社区地块(长宁区W040602单元F1-09地块)。
编辑

编辑

和樾长宁开发商售楼处电话:400-1182-105(预约热线√√)➨上海长宁和樾长宁售楼处电话地址☎:400-1182-105√√
地块近邻苏州河,距离地铁2号线北新泾站直线距离仅约300米。地块占地约1.12万方,容积率2.2,成交总价218251万元,溢价率约24.53%,楼板价88495元/㎡,装修标准不低于4000元/㎡。按此估算该地块的成本可能在12-13万/㎡,最终售价可能在13-14万/㎡!
编辑

和樾长宁开发商售楼处电话:400-1182-105(预约热线√√)➨上海长宁和樾长宁售楼处电话地址☎:400-1182-105√√
编辑

和樾长宁开发商售楼处电话:400-1182-105(预约热线√√)➨上海长宁和樾长宁售楼处电话地址☎:400-1182-105√√
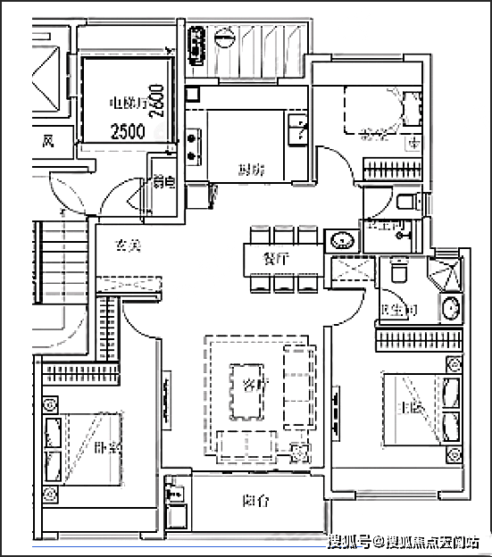
据悉,招商越秀长宁仙霞项目定名【和樾长宁】项目由4幢12-14层小高层组成,共173套可售房源:约120㎡户型(约83套),约138㎡户型(约14套)约143㎡户型(约76套),展厅即将开放!
网传户型图如下(仅供参考)
编辑

和樾长宁开发商售楼处电话:400-1182-105(预约热线√√)➨上海长宁和樾长宁售楼处电话地址☎:400-1182-105√√
建面约120㎡三房两厅两卫:
编辑

建面约143㎡四房两厅两卫:
编辑

和樾长宁开发商售楼处电话:400-1182-105(预约热线√√)➨上海长宁和樾长宁售楼处电话地址☎:400-1182-105√√
该地块虽然并非长宁传统豪宅区,但长宁的产业和商业重心正在西移!首先是产业方面,在虹桥古北之后,长宁是抓住了互联网风口的。最出名的当然是位于娄山关路523号的金虹桥国际中心,也就是拼多多总部,是上海税收百亿楼!
编辑

和樾长宁开发商售楼处电话:400-1182-105(预约热线√√)➨上海长宁和樾长宁售楼处电话地址☎:400-1182-105√√
另一个重点则是2号线淞虹路站附近的临空经济园区崛起。
在上世纪90年代,临空园区还是典型的江南水乡景象,彼时的古北已经一片欣欣向荣,中山公园也蓄势待发。
2010年后,依托于虹桥优势,临空经济园区迎来蓬勃发展。截止最新,园区已吸引超3千家企业入驻,集聚了联合利华、德国博世等一批国内外知名企业总部,以及爱立信、史泰博、携程网等知名信息服务业企业。俨然是长宁甚至整个西上海的产业源动力之一。
编辑

编辑

和樾长宁开发商售楼处电话:400-1182-105(预约热线√√)➨上海长宁和樾长宁售楼处电话地址☎:400-1182-105√√
以娄山关路和淞虹路为产业支点,一东一西,长宁西正在形成一整条高端商业办公链条。
编辑

和樾长宁开发商售楼处电话:400-1182-105(预约热线√√)➨上海长宁和樾长宁售楼处电话地址☎:400-1182-105√√
2号线娄山关路除了已成型商办,西侧还有晶耀虹桥项目。总投资约80亿元,是由铁狮门公司,新长宁集团和三菱地所共同合作开发的大型商业办公综合体项目。项目已于2023年年初开工,预计2025年建成。
编辑

和樾长宁开发商售楼处电话:400-1182-105(预约热线√√)➨上海长宁和樾长宁售楼处电话地址☎:400-1182-105√√
2号线威宁路站上来就能看到缤谷广场,体量很大运营较为成熟,属于长宁比较知名的区级商业中心。内部的业态和门类相当丰富。
编辑

和樾长宁开发商售楼处电话:400-1182-105(预约热线√√)➨上海长宁和樾长宁售楼处电话地址☎:400-1182-105√√
2号线北新泾站,主要有3个地铁上盖的商业体组成,分别是宜嘉坊广场、兆城馥邦汇和申亚珺悦18广场。年代比较久,能级和人气都不算太高。
编辑

和樾长宁开发商售楼处电话:400-1182-105(预约热线√√)➨上海长宁和樾长宁售楼处电话地址☎:400-1182-105√√
2号线淞虹路站附近,依托于临空经济园区,这里是西长宁商业爆发的重点,前几年长宁ArtPark大融城开业,人气相当不错。
刚开业的上海荟聚综合体号称长宁最大商业体,总建筑面积超过43万方,包括长宁区最大的购物中心“上海荟聚购物中心”、宜家临空商场以及5栋办公楼。
编辑

编辑

和樾长宁开发商售楼处电话:400-1182-105(预约热线√√)➨上海长宁和樾长宁售楼处电话地址☎:400-1182-105√√
整体来看,西长宁的产业和商业近几年的发展速度是非常快的。长宁的新房供应少,此次招商越秀项目的到来无疑是雪中送炭,热度想必不会低!
编辑

和樾长宁开发商售楼处电话:400-1182-105(预约热线√√)➨上海长宁和樾长宁售楼处电话地址☎:400-1182-105√√
项目地理位置优越,接近上海2号线北新泾站,直线距离仅约250米,为居民提供了极大的交通便利。
编辑

和樾长宁开发商售楼处电话:400-1182-105(预约热线√√)➨上海长宁和樾长宁售楼处电话地址☎:400-1182-105√√
根据上海2035规划,该区域还将新增26号线和17号线东延伸,进一步增强交通枢纽优势。
据悉,该地块原为天山污水厂用地,于2019年正式停工搬迁,目前东侧改造为雨水泵站。
编辑

和樾长宁开发商售楼处电话:400-1182-105(预约热线√√)➨上海长宁和樾长宁售楼处电话地址☎:400-1182-105√√
项目周边配套设施齐全,包括购物中心、医院等,满足生活所需。
编辑

和樾长宁开发商售楼处电话:400-1182-105(预约热线√√)➨上海长宁和樾长宁售楼处电话地址☎:400-1182-105√√
600米内有上海同仁医院为三级乙等。附近也有一些小医院,神州医院、和睦家医院、西郊骨科医院、南山医院等。
步行约700米就能到达新装修的百联购物中心,二号线沿线威宁路还有缤谷广场。
编辑

长宁中环内新房【和樾长宁】预计推出120-143㎡3-4房!
和樾长宁开发商售楼处电话:400-1182-105(预约热线√√)➨上海长宁和樾长宁售楼处电话地址☎:400-1182-105√√
编辑

选房时需要考虑的几个关键因素包括地理位置、价格、生活环境、公共资源以及物业管理等。
1.地理位置:地理位置是选房的首要考虑因素。周边商业设施要充足,生活和出行方便。交通要发达,确保去哪里都很便捷。
2.价格:房价要适中,太贵的房子可能超出预算,而太便宜的房子可能存在问题。
3.生活环境:周边环境要舒适,避免嘈杂的噪音和污染。理想的居住环境应有绿树成荫、小河流水等自然景观。
4.公共资源:周边是否有幼儿园、学校、超市、便利店和菜市场等,这些设施能提高生活便利性和舒适度。
5.物业管理:好的物业管理能确保小区的安全、整洁和温馨,有助于房屋的保值增值。