天潼里(天潼里)楼盘详情|上海天潼里房价-户型-容积率-小区环境

搜狐焦点天门站

2026-03-15 16:29:00

购房群

买房如何避坑,加入购房群,看看他们怎么说

立即进群

天潼里 售楼处电话:400-118-3159(已认证)

天潼里 营销中心热线:400-118-3159(欢迎致电)

天潼里 售楼处预约电话:400-118-3159☎☎☎如有问题可来电咨询,预约销售专员,一对一为您服务!

上海·外滩一手新房

外滩·距离外白渡桥260米

全新一手豪宅【天潼里】

建面约458-551㎡大平层

建面约320-349㎡叠加别墅

建面约500-900㎡合院别墅

全新551㎡大平层样板房

以及别墅样板房

正式开放预约

风貌小高层

建面约458-551㎡7800万起

叠加别墅24套

建面约270-330㎡5800万起

27套风貌合院别墅(天潼里)

地上建面约525-907㎡

(地上地下加起来约1500-2000㎡)

合院别墅总价1.5亿左右起

天潼里位于内环内北外滩核心,天潼路近乍浦路口,独占江(黄浦江)河(苏州河)交汇上佳钻石地段,距离外白渡桥仅200余米。

项目建造历史风貌高层、多层和里弄住宅,另有少量商业、美术馆和酒店式公寓。

天潼里住宅产品户型图特别多,达到42种。包含面积段约209-641㎡高层住宅,面积段约231-400㎡多层住宅,面积段约㎡高层住宅270-330㎡叠加别墅,面积段约525-907㎡合院别墅。

共124套住宅单元,从图示来看,全部是风貌住宅产品。以下为首开楼栋图示,73套小高层+27套合院别墅+24套叠加别墅:

让我们来看看部分户型图,先是小高层平墅:

(458-551平米超级大平层)

全新 551㎡样板房

01|通厅揽景,天幕如卷

三面全明贯通厅,接驳城市天际线的剧场式生活场景

约270度三面环幕式开窗,打通阳台、客厅、餐厅与厨房,形成约19.1米南向与22.1米东向的超宽视野面宽。空间如画轴展开,面朝陆家嘴天际线,营造如剧场般的奢阔视觉感受。

02|奢阔阳台,南得尺度

南向巨幕级双阳台布局,生活场景随光线延展

户型配置约10.8米客厅阳台与约8.3米主卧阳台,南向布局让自然光与景观最大化融入日常生活,在起居与私密空间中形成连续的舒展界面,真正实现自然与生活的双重联动。

03|套房满配,空间超凡

四卧三套房设计,约78㎡主卧套间奢享独立世界

配备四卧三套房与双公卫配置,主卧套房达约78㎡,配置殿堂级衣帽间与双台盆卫浴。三间套房均设独立衣帽间,其中两间配有阳台,全方位满足居者的尊贵私密与生活仪式感。

04|礼序归线,出入有界

主佣动线分流,服务与生活各循其道

采用主佣分线的专业布局,家政专属通道与主人动线分离,避免交叉与干扰,保障居住私密性与空间秩序,体现高端住宅应有的生活礼仪与尊崇体验。

05|双梯尊配,归家从容

8户2梯,远高于常规梯户比,提升进出效率

户型配置双梯双户门设计,形成4:1的低密梯户比,远优于市场平均,极大缩短候梯时间,让归家成为从容尊崇的第一步。

06|得房高标,实用领先

实得率达81%,在同类产品中处于领先水平

科学布局提升空间利用率,实现约81%的超高得房率,相比市场平均高出一截,为居者带来更多可使用空间与布局弹性,在同等总价下真正实现“多得多用”的使用价值。

叠加别墅介绍:(下叠和上叠)

下叠别墅,是城市别墅生活的隐奢表达。沿街独立门牌,不仅昭示归家仪式,更在迎宾会客之间,展露门第的从容与尊贵。

01|独立门牌,尽显门第风范

沿街独立门牌,构筑家族化的身份标识。归家有序,待客有仪,于出入之间尽呈居者品味。

02|南北双入户,兼顾礼仪与私密

南向礼仪门迎宾,北向私密入户,动静有序,便捷自如,彰显居者从容气度。

03|近30㎡私家庭院,阳光与私密兼得

约2.2m围墙设计,既保留私密,又引光入室,于内外之间构建生活的层次感。

04|约10.5米南向面宽,开阔横向尺度

南向宽幕引光入室,赋予居住以通透的仪式感。

05|单层超160㎡,空间奢阔有度

客餐厅约60㎡,配有约60㎡超大贯通式主卧,生活场景自成体系,优雅而张弛有度。

全套房布局,让家人各得其所,舒适与私密兼得。

06|郎阔格局,空间随心定义

约3.5m与3.6m层高递进延展,纵深之中蕴含尊崇尺度。

基本无承重墙设计,空间可自由定义,生活随心铺陈。

超1:1实得赠送比,让空间更丰盈、体验更进阶。

07|地下空间,功能无限延展

地下层均配采光井,舒适度保障;约6.7m层高可容纳酒窖、会所等多元功能,承载生活的更多想象。

上叠别墅,是一种生活姿态。居于更高一隅,揽尽城市的光影流转。在喧嚣之上,自成一方私域天地。

01|双露台·一阳台,延展自然的呼吸

南北双向开阔布局,北向露台近10米,城市景观与自然相融。

休闲露台对话城市天际线,于阳光与风景之间,重拾生活的轻盈。

02|约10.5米南向面宽,采光极佳

横向展开的空间尺度,让阳光洒满每一处生活场景,晨昏之间皆是风景。

03|单层约160㎡,全套房设计

以约160㎡单层空间承载家庭生活的仪式感,约60㎡客餐厅贯通休闲阳台,空间通透、气度非凡。全套房设计,保证每位居者的私密与舒适,礼序有致、功能齐备。

04|自由改动,基本无承重

内部结构灵动,可根据家庭需求自由规划,空间使用无界。

赠送约3.2米层高地下室,生活可能由此倍增。

05|奢阔层高,演绎空间的尊崇感

三层约3.5m、四层约3.6m层高,纵向空间感更显阔绰,舒居尺度跃然呈现。

外滩之上 · 大师联袂 · 国际恒产

叠墅 建面约 320-349㎡

大平层 建面约 458-551m²

全新作品 敬请期待

| 外滩正核板块唯一在售新房

| 苏州河黄浦江「一江一河」交汇原点

| 距外白渡桥约200米,步行约5分钟至外滩万国建筑群

| 与陆家嘴三件套隔江对望,坐享丰盈配套

接下来介绍 525平合院别墅:

近年来,上海在城市更新方面既注重保护原有城市肌理,又着重发展历史风貌建筑。这一方式虽然创造了一个多元且尊重历史的城市景观,但这些新开发的风貌住宅项目也代表着一种有别于中国传统房地产市场的新方向。

Lilong Living

里弄生活

江南绞圈房与西式联排住宅

Jiangnan Courtyard House & Western Townhouse

里弄房屋,也称为石库门,是中国传统四合院与西方联排住宅的独特融合,体现了海派建筑的跨文化特色传统。中国传统四合院强调内向的水平空间,而西方联排住宅则以外向的垂直空间为特色。这种建筑设计的融合反映了十九世纪至二十世纪初上海开放进取的国际精神。

Return to the Courtyard

栖息院落

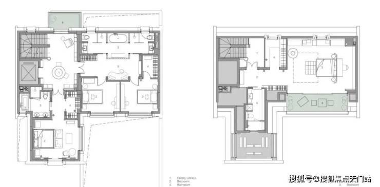
1层设计平面

1F Floor plan

入户体验始于私家庭院。在高密度的城市环境中,庭院为住宅提供了一处解压之地,一缕新鲜空气。因此,在平面布局上,我们将所有重要空间布置在庭院周边,以充分利用庭院空间。

庭院

Courtyard

从庭院地面层,可以看到客厅和餐厅的内部空间。客厅在立面上向内凹陷,形成了一条有遮盖的走廊,通向房屋定制的深铜色入户大门。

入户门

Entry Door

入户空间由一个简约的门厅和楼梯厅组成,门厅配有控制台和嵌入式衣柜。以多功能圆桌为中心的楼梯厅连接着楼梯、电梯、客用卫生间和客厅。空间采用白色洞石搭配特制染色的胡桃木,其浅色调与洞石和谐呼应,同时保留了胡桃木独特的纹理特征。

楼梯厅

Stair Hall

在客厅中,两个展示架巧妙地将空间分隔成主客厅区和休闲室,营造出一个与建筑尺度交相辉映的层次空间。

这样的布局提供了多样的就座选择——主客厅区保持其开阔大气,与庭院浑然一体;而配备了吧台并可俯瞰北侧小庭院的休闲室,则营造出温馨私密的氛围。

正式客厅

Formal Living Room

餐厅四角以高光烤漆板为基准,营造出庄重感。空间一侧临近中庭,另一侧毗邻西侧小庭院。

餐厅

Dining Room

一面贯穿地下室至阁楼七层的整体白色洞石墙体构成建筑主轴。楼梯采用纯净简约的设计,作为连接整个住宅的核心元素,与每层的风格相得益彰。

1-4层楼梯间

1-4F Staircase

深铜色的栏杆和扶手融合传统与现代语汇,演变出一种当代型态,与现代白色洞石相映成趣,营造出优雅纯粹的意境。

Master of the Courtyard

大隐隐于市

整个三层都属于主卧套间。我们非常重视这一层空间的秩序感和流线,并尝试了多种方案。最终我们没有将主卧室空间直接紧贴面向庭院的窗户,而是借鉴上海老洋房的做法,在中间增加了一个过渡空间——‘阳光房’。

这个空间不仅解决了整层的交通动线,更重要的是,考虑到里弄建筑之间的紧密距离,通过将最私密的卧室区域与大窗户分开来确保居住者的隐私。同时为了确保主卧室区域能获得充足的自然光,我们使用折叠百叶门来分隔主空间和阳光房。

3层设计平面

3F Floor plan

主卧入口

Master Bedroom Entrance

主卧室空间

Main Bedroom Space

床边的读书角落

Reading Corner

“阳光房“

“Sunroom“

深色烟熏橡木搭配Eric Morris 定制的黄铜五金件,将上海石库门的韵味和气质在精致的细节中得到完美诠释。

主卫

Master Bathroom

Courtyard Living

庭院生活

2&4层设计平面

2&4F Floor plan

二层设有儿童区和父母房间。所有房间都围绕庭院布置,以充分利用景观视野。我们还将楼梯厅空间改造成家庭图书馆——在这个原本私密的楼层创造了一个公共空间。这为家庭成员增加了除客厅和地下室之外的又一互动空间,强化了我们对现代上海家庭——更多交通和爱的理念。

家庭书房

Family Library

父母卧房&儿童卧房

Parents’and Kid’s Bedrooms

儿童卫生间

Kid’s Bathroom

四层阁楼是大女儿的卧室。这里的斜顶启发我们在空间内打造了一个木质小屋;配备私人浴室和衣帽间,还有一个露天阳台,仿佛这充满阳光的一层就是个独立公寓。

Endless Interior

室内的"室内"

地下室层是娱乐和家庭聚会的主要空间,因此,我们将空间设计得更现代和随意。也正是在这里,我们突破了室内空间中跨文化对话的界限。

地下设计平面

Basement Floor plan

尽管有明确的结构分区和限制,我们还是将地下室视为一个整体空间。我们的方法是在空间中植入一个“町屋”(日本传统商住建筑)。

“町屋”概念图

“Machiya” Concept Diagram

木屋

Wooden House

这个木质建筑统一了地下室空间,同时分隔出不同的功能区域。在木质建筑内部,夹层设有榻榻米茶室,下层则是影音娱乐室。大型推拉门让空间在举办派对和接待客人时能够自由流动。

茶室

Tea Room

在“木屋”的南侧还有一个无固定方向的休闲接待空间,其中布置多组座椅区域,满足不同使用需求。一面蓝色烤漆墙锚定角落,简约现代的空间与木质建筑结构形成鲜明对比。

地下客厅

Basement Living Room

在对角,我们开辟了一面落地窗展示酒窖,展现主人的收藏。温暖的酒窖灯光和壁炉光线映照在白橡木酒架上,为客厅带来温暖舒适的氛围。

在“木屋”后方,是一个墙面和天花板都覆盖金箔的“水吧”。在这里,我们重新引入了一些当代西方设计语言——大理石地面图案、蛋形吧台和墙面护板细节。这些元素与醒目的红色高光烤漆柜相互平衡。

水吧

Gold Bar

项目风格复古、隽永,典型的海派风味建造。

天潼里打造约3.3万㎡的新石库门里弄洋房、海派叠墅和联排等产品。在寸土寸金的传统市中心,大尺度的别墅和花园,着实难能可贵。

项目由GOA大象设计创始人陆皓先生操刀,汲取外滩西式古典建筑风格,以红砖为主材,复刻老石库门的浪漫风貌,力求打造为一处“新时代里弄住宅”。

项目效果图

天潼198位于内环内北外滩核心,天潼路近乍浦路口,独占江(黄浦江)河(苏州河)交汇上佳钻石地段。

项目建造历史风貌高层、多层和里弄住宅,另有少量商业、美术馆和酒店式公寓。

汲取外滩风貌建筑精髓——折衷主义风格,辅以现代化比例与线条勾勒,最终形成富有 ART DECO美学的建筑封面,令历久弥新的质感形成与万国建筑群的美妙对景。

项目风格复古、隽永,典型的海派风味建造。

天潼198将打造约3.3万㎡的新石库门里弄洋房、海派叠墅和联排等产品。在寸土寸金的传统市中心,大尺度的别墅和花园,着实难能可贵。

项目由GOA大象设计创始人陆皓先生操刀,汲取外滩西式古典建筑风格,以红砖为主材,复刻老石库门的浪漫风貌,力求打造为一处“新时代里弄住宅”。

项目效果图

「天潼198」位于北外滩核心区,距离外白渡桥非常近,外滩可以步行达,享受外滩的顶级配套。

右下地块即为项目位置

「天潼198」地处乍浦路天潼路,周边城市界面非常不错。

新湖地块位置

作为虹口北外滩的上佳地段,「天潼」坐享北外滩4平方公里的城市规划,更是成为了媲美陆家嘴的中央活动区, 直面黄浦江+外滩,拥有特别的优势!

其实,说豪宅,我们经常提到陆家嘴,因为上海已经有一个成熟的可供模仿与超越的全球规划模板。但实际上,到目前为止,真正可以 称为世界级规划的在上海只有三个:苏河湾、外滩和北外滩!

世界级规划区域

要知道,相比于其他版块, 北外滩发展后劲尤其强势, 特别在2021年7月份上海市人民政府发布“北外滩4平方公里热土开发机制”后,规划从纸上走向落地, 未来的北外滩,更将成为规划承诺兑现的高地。

白玉兰广场

国际金融航运新中心

苏宁宝丽嘉

提篮桥中心商业休闲区

而在它的周边,也是产业能级的至高点, 北外滩沿线的甲级写字楼现状大约是200万㎡; 3年内再建成100万㎡,规划中预计增添200万㎡,总计相当于约500万㎡甲级写字楼,或将提供约50万个高收入岗位。

示意图

再看项目的位置,选址于黄浦江与苏州河交汇处, 距离上海著名的外白渡桥仅约260米,家门巷口的这道湾就是黄浦江精华之所在,从这里可以直接步行至外滩。这里是上海市中心真正核心的优质地段!

距离外白渡桥约260米

预约看房

上海·外滩一手新房

外滩·距离外白渡桥260米

全新一手豪宅【天潼里】

风貌小高层

建面约458-551㎡7800万起

叠加别墅24套

建面约270-330㎡5800万起

27套风貌合院别墅(天潼里)

地上建面约525-907㎡

(地上地下加起来约1500-2000㎡)

合院别墅总价1.5亿左右起

全新样板房 正式开放预约

天潼里 售楼处电话:400-118-3159(已认证)

天潼里 营销中心热线:400-118-3159(欢迎致电)

天潼里 售楼处预约电话:400-118-3159☎☎☎如有问题可来电咨询,预约销售专员,一对一为您服务!

全部

相关资讯

报名成功
稍后会有专业的置业顾问联系您
返回楼盘

频道导航

返回首页

看房小程序

APP下载

电话拨通后,请您手动拨打分机号

确定拨打电话

电话号码:

分机号:(可能需要拨分机号)