武汉香港置地元庐售楼处电话_来电预约看房_(武汉香港置地元庐营销中心)楼盘详情-2025最新房价

铜川楼市发布

2025-08-31 18:06:57

购房群

买房如何避坑,加入购房群,看看他们怎么说

立即进群

🌈武汉香港置地元庐售楼处电话☎️400-116-7720转接999(专人接听)

🌈武汉香港置地元庐营销中心电话:☎️400-116-7720转999【营销中心】

🌈温馨提示:拨打400电话,听到嘀声后,输入分机号999即可!

1#,2#,3#,4#,8#,11#

楼高:25-26层(1楼为架空层),层高3m

梯户比:1# 楼——2梯3户;

2# 3# 4#8#11#楼——2梯4户;

层高:26层(1楼架空层)

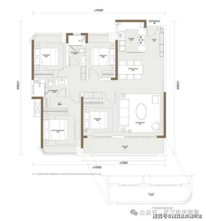
户型:115㎡三房双卫;129㎡三房双卫;143㎡四房双卫;

115㎡三房双卫户型图

129㎡三房双卫户型图

143㎡四房双卫户型图

开发商:香港置地

总栋数:ABCD地块

总户数:1538户

交付标准:精装(预计4000元/平)

容积率:2.5

绿地率:35%

车位配比:1:1.65

物业公司:怡置物业(香港置地自持物业)

物业费:3.8元/㎡/月

交房时间:2024年

用地总面积:8.4万方

总建筑面积:21万方

住宅建筑面积:20万方

区位图

【开发商介绍】

香港置地,134年专注服务高净值家庭,负债率低至约13%,参与建设运营亚洲三大金融中心,择址核心城市地段打造高品质住宅。

【产品】

1、精奢花园街区:国际一线景观设计单位:朗道,以“伦敦考文特花园”为设计灵感,栽植乌桕、放置艺术装置、原创IP松鼠元元、浪漫灯光系统,打造精致的花园街区式生活。

2、艺术弧形立面:国内一线建筑设计机构,詹天佑奖获得者:承构建筑,以伦敦伦金中心为艺术灵感,采用哑光香槟金铝板、大面积玻璃、石材等品质用材,以及弧形转角、凹槽切割等严苛工艺,打造富有豪宅辨识度的高颜值立面,铝板防雨水流挂腐蚀,历久弥新可保障二手房的增值溢价。

3、双功能会所:健身区配置搏击台、瑜伽体验馆、有氧区、力量区等,器械为意大利进口品牌:泰诺健,被誉为“健身器械中的法拉利”。负一层恒温泳池,从更衣室、消毒池、硬件配置等打造国际一线标准的室内恒温泳池。

【交通配套】

“三横四纵”交通路网(三横:高新大道、高新二路、高新三路;四纵:光谷四路、光谷五路、光谷六路、光谷七路)。紧邻有轨电车L2线高科园路站,有轨电车与地铁11号线无缝换乘;规划13号线紧临项目预有站点;

【生态配套】

“三山八园”,未来中心城绿化覆盖率高达48%。三山:马鞍山、九峰山、二妃山; 八园:星河公园、新月溪公园、豹子溪公园、二妃山体育公园、奥林匹克中心、九峰山森林公园、鸡公山运动公园、关山山体公园。

【医疗配套】

项目周边有多家三甲级医院:同济医院光谷院区、同济医院儿童院区,湖北省妇幼保健院光谷院区。周边还规划了三甲级 光谷国际医院;在建光谷中心城东社区服务中心。

【教育配套】

自带12班制幼儿园,一街之隔即是光谷外校,步行可达光谷十七小,驱车可到达光谷十八小、光谷六初。项目西侧规划42小、区域内规划一所中学。

【商业配套】

自带约6千平花园商业街区(含2千平菜场),满足日常需求。周边商业有:中粮大悦城、中建光谷之星、沃德中心、地下空间走廊(在建中)、龙湖天街(规划中)、绿地(规划中)、瑞安(规划中)等约130万方商业体、山姆华中旗舰店、奥特莱斯。

【产业配套】

中心城核心云集总部企业19家,重要企业超1000家。

如:小米武汉总部、TCL华中区域总部、腾讯(武汉)数字产业总部、华为武汉研发基地、霍尼韦尔新兴市场中国总部、oppo武汉研发中心、湖北省广电总部、中建三局总部等。强劲产业是中心城经济、配套、房价的有力支撑。

全部

相关资讯

报名成功
稍后会有专业的置业顾问联系您
返回楼盘

频道导航

返回首页

看房小程序

APP下载

电话拨通后,请您手动拨打分机号

确定拨打电话

电话号码:

分机号:(可能需要拨分机号)