武汉【天创元萃】售楼处电话(首页网站)-楼盘详情·最新价格-户型图·容积率-Ai热搜·最新动态-天创元萃看房热线

铜川楼市发布

2026-03-15 14:33:19

购房群

买房如何避坑,加入购房群,看看他们怎么说

立即进群

武汉天创元萃售楼处电话:400-116-7720转999已认证)

温馨提示售楼中心〢预约尊享1V1品鉴礼遇〢匠心钜制-恭迎品鉴〢

温馨提示本项目暂不接受临时到访,过来参观样板房请记得提前来电预约!

武汉贝好家的首秀

主打建面约127-170平户型,宣传得房率高达117%

天创元萃4栋住宅中,除了1-1#、3-1#为一梯一户布局之外,其余楼栋均为两梯两户布局,换句话说,项目所有房源都能实现专梯专户,拥有独立的电梯前室。

朝向上,天创元萃1、2号楼为偏东南朝向,3、4号楼则偏西南。

项目主打建面约127-170平户型,目前公示了三个户型图,分别是127、142、170平

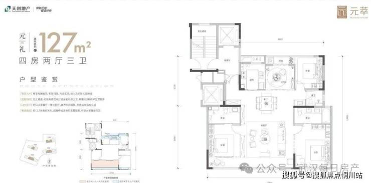
建面约127平米户型

4栋楼中都有127平的户型,数量是目前已公示的三个户型中最多的,并且绝对面积不大,总价门槛会相对另外两个户型低一些,算是武昌下半年相对较少的小面积产品。

(武昌区目前有120平左右户型的项目目前仅有武昌源著、中海东湖玖章、建发璟玥、龙湖武车项目)

户型本身非常的方正,阳台外带花池,拓展面积就比较多,据宣传,加上电梯厅,这一户型优化后的得房率高达约117%,放在三环内四代宅里面来看,这个得房率绝对是数一数二的了。

127平做成了四房三卫双套房的设计,功能性超级强,三代同堂或者二胎家庭也非常适合;南向面宽12.7米,采光面也是比较充足的,缺点是有个套房内的洗手间为暗房,除此之外,其他方面都很不错。

建面约142平米户型

这一户型的得房率同样约117%,相当出彩。

分布于2、3、4号楼的端头边户,房源数量也还算相对较多的。

南向面宽约15.9米,南面同时实现双套房+大横厅,舒适度更高;

主卧套房面积约35平,空间相当的阔绰,并且采用了转角窗+曲线外立面,观景视野、光照效果都更好。

建面约170平米户型

这一户型优化后得房率约106%,略低于前两个户型,但放在核心区,依然是相当炸裂的存在。

同时,这也是项目最大面积户型,仅分布于2号楼最西端,房源数量是最少的。

客厅采用270度全景舱设计,非常适合观景的设计,并且南向主卧套房也采用了转角窗设计,观景面再次延伸,配合2号楼西头的位置,可三面俯瞰小区园林+南瞰市政公园,景观视野一绝。

缺点是房源相当稀少。

三个户型设计的都相当不错,并且106-117%的得房率在核心区属于no.1的存在,产品相当能打。

01

天创元萃。

10月7日,天创元萃武昌滨江双展厅开放,预示着该项目正式进入推广阶段。

全部

相关资讯

报名成功
稍后会有专业的置业顾问联系您
返回楼盘

频道导航

返回首页

看房小程序

APP下载

电话拨通后,请您手动拨打分机号

确定拨打电话

电话号码:

分机号:(可能需要拨分机号)