武汉城建·江南岸
武汉城建·江南岸售楼处电话:400-116-7720转888(已认证)
武汉城建·江南岸售楼中心电话400-116-7720拨通输入888即可咨询楼盘详情_房价、户型、周边配套及交通地址
武汉城建・江南岸。这个项目被不少人称为武昌滨江「中产江景天花板」,到底有何过人之处?咱们今天就来一探究竟~ 🏙️
🌟一、项目核心亮点:为何备受关注?
1.溢价的地块:2024年12月24日,武汉市举办国有建设用地使用权公开出让活动。 国企 武汉地产集团有限责任公司(武汉城建集团) 以 总价 78140万元竞得P(2024)118号地块(也就是目前的武汉城建江南岸项目),溢价率8.32%,成交 楼面价 12171.34元/㎡。
P(2024)118号地块,位于武汉市武昌区铁机路与临江大道交汇处 ,住宅、公园与绿地用地。 土地面积 25776㎡, 建筑面积64200㎡, 起始价 72140万元 。
2. 黄金区位:武昌滨江稀缺地段
📍 地理位置优越:落子武昌滨江商务区杨园片,与二七滨江商务区隔江相望,直面长江,属于二环内 1.5 环稀缺地段,地理位置十分优越。
🚇 交通出行便捷:坐拥 “一隧两桥三地铁” 超级路网,距离地铁 5 号线余家头站步行约 1100 米,(地铁还是略远)未来还可换乘 10 号线;自驾依托临江大道和过江隧道,出行方便。
🌊 临江零距离:与江岸仅 200 米之隔,推窗即可欣赏 270° 无界江域,一线无遮挡瞰江,这样的江景资源在武昌滨江十分稀缺。

3. 极致视野与产品设计:准四代住宅革新
⚡️ 布局巧妙:采用 V 形折线布局 + 错位排布,6 栋住宅(4 栋高层 + 2 栋超高层)全部无遮挡直面长江,打破传统对视限制,实现户户看江。
🌅 全景舱户型:全系标配 Low-E 全景落地幕墙,7.4-9 米瞰江横厅,视野开阔;184㎡主卧三面环幕设计,将长江美景尽收眼底;圆弧转角玻璃消除结构柱,让视野更加通透。
💯 超高得房率:作为准四代住宅,灵动阳台 + 飘窗全赠送,得房率超高,143 平得房率达 103%,183 平更是达到 113%,实现 “零公摊” 甚至 “负公摊”,性价比凸显。
4. 城建高端线突围:品质有保障
🔝 单方建安成本 6195 元/㎡,超过华润等不少项目,封窗交付 + 铝板玻璃幕,打破了 “城建无豪宅” 的偏见。
🏊 配备双层会所恒温泳池、全风雨连廊归家、智慧物业系统等奢配体系,直面华润长江中心等竞品。
🏠二、户型分析:满足不同改善需求
1. 143㎡四房三卫
✅ 布局特点:四开间朝江,6 米横厅 + 3.9 米主卧,飘窗全赠;南面厨房带生活阳台,可做洗烘晾晒,也能保证南面采光。
✅ 优势:得房率 103%,空间利用率高,四房设计满足多人口家庭需求。
⚠️ 争议点:单暗卫,次卧与电梯井共墙,可能存在噪音问题,需依赖工程质控。
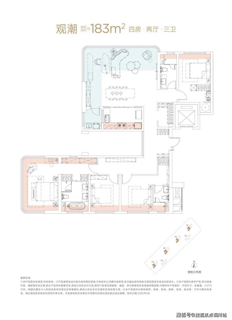
2. 183㎡四房三卫
✅ 布局特点:餐客厅一体,看江面无承重柱;主卧套房环幕落地窗瞰江,7.6 米 IMAX 环幕厅,对标华润长江中心 230㎡格局。
✅ 优势:三面采光主卧(南向日照 + 北向瞰江),开间达 3.9 米;得房率 113%,压缩 50㎡面积却实现 “零公摊”。
⚠️ 争议点:厨房尺度有所压缩,中部墙体封闭(需样板间验证);西晒问题显著,夏季需做好遮光优化。
🌇三、配套设施:生活便利与品质兼具
1. 国际级公建立面与社区配套
✨ 外立面:采用银灰渐变 Low-E 玻璃 + 阳极氧化铝板,呼应江面晨昏光影;超高层折型穿孔板打造 “流动光影”,弧形幕墙模拟江水柔美曲线,颜值在线。
🌿 社区配套:2500㎡双层会所包含恒温泳池、私宴厅、SPA 秘境、瑜伽空间等;4000㎡风雨连廊 + 架空层,让归家之路四季绿意相伴;800㎡滨江商街有咖啡轻食、艺术策展等,下楼即可享受慢生活。
📱 智慧生态:配备人脸识别无感通行 + 云端物业管家,地下车库充电桩全覆盖,无缝接驳武昌生态文化长廊。
2. 周边生活配套
🛒 商业氛围:周边融侨楼下有商业街,菜场等生活配套齐全,生活氛围浓厚。
🌳 休闲环境:临近武昌的江滩公园,已经打造完成,为业主提供了休闲散步的好去处。
📚 教育资源:学校目前不确定,有说读橡树湾小学、余家头小学,也有说读武昌首府规划的 9 年制学校,现在还没有明确消息。大宏个人判断,读新学校的概率会大一点,如果孩子近两年要读书的,可多做考量。
武汉城建·江南岸
武汉城建·江南岸售楼处电话:400-116-7720转888(已认证)
武汉城建·江南岸售楼中心电话400-116-7720拨通输入888即可咨询楼盘详情_房价、户型、周边配套及交通地址