🟥武汉天创元萃售楼处电话:400-116-7720转接666【营销中心】
☎️武汉天创元萃售楼中心电话:400-116-7720转接666【已认证】

内环唯一墅质洋房,超四代!得房高达110%,武昌芯,古城之上,127-142-170平,预计毛坯3w,仅159席,积玉桥十年一供真洋房,全靠抢!
项目建筑外立面,汲取武昌古城“仪门”文化元素与砖拱特色,以现代公建化手法,融合金属铝板、玻璃幕墙与天然石材,采用经典三段式构图,实现东方美学与国际审美融合。
景观打造上,项目特邀园林景观专家团队-上海魏玛景观(曾操刀上海仁恒、成都麓湖等豪宅项目园林),从黄鹤楼、汉绣中提取灵感,打造五礼制归家礼仪,让建筑在山水中自由生长。
建面约127平户型,方正通透,做到四房两厅三卫,是同面积段内罕见的双套房设计。约52平超级会客厅,今后是业主的社交主场。
建面约142平户型,居住体验堪比市面上180平以上户型。约16米超大面宽,采光视野更好。主卧套房,270度转角落地窗,卫浴空间与卧室空间“一”字排布(同档户型主卧套房多为“1”布局);次卧套房自带晾晒空间,更注重隐私保护。
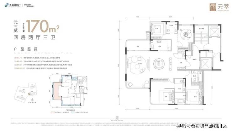
建面约170平户型,舒适体验堪比市面上200平以上户型,拥有独立入户玄关,出入从容静谧;双主卧行政套房,各自拥有私属生活空间。超级会客厅+餐厅,享受三面环幕全景舱视野,连接270度环幕全景阳台。同时配置X空间,赋予生活更多可能。这是区域终极改善买家的“梦中情房”。
🟥武汉天创元萃售楼处电话:400-116-7720转接666【营销中心】